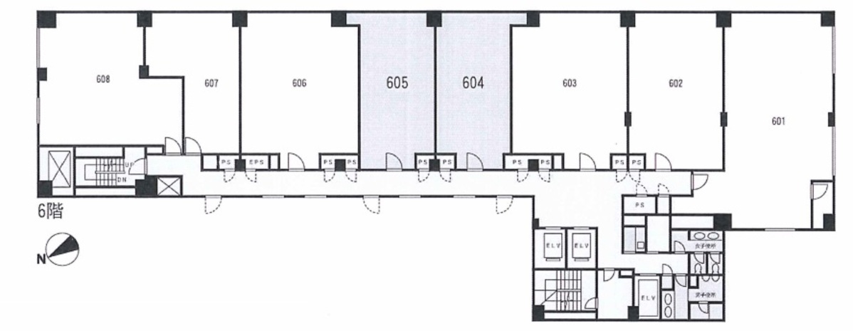
虎ノ門法曹ビル6階の賃貸情報
17.98 坪 (59.45m²)
※このサイトに記載がある賃貸条件は、敷金・保証金などの預かり金を除き、別途消費税がかかります。
虎ノ門法曹ビルの建物概要
設備詳細
| 空調 | - |
|---|---|
| トイレ | - |
| 床仕様 | OA対応床(フリーアクセス) |
| エレベータ | 2 基 |
| 駐車場設備 | 空有 |
| その他 | オートロック / 機械警備 / 24時間利用可 / 管理人常駐 / 光ファイバー / クリニック |
虎ノ門法曹ビル6階の賃貸オフィス・事務所に関するお問い合わせ
虎ノ門法曹ビルについて
この文書では、法律業界のプロフェッショナルに特化した、一流のオフィスビルをご紹介いたします。このビルは、高度なセキュリティ管理と専門的な機能を備え、弁護士の皆様が効率的かつ快適に業務を遂行できる環境を提供します。 **立地** 本ビルは、東京都内の交通の要所に位置し、三田線「内幸町駅」から徒歩3分、銀座線「虎ノ門駅」から徒歩5分、そして山手線「新橋駅」から徒歩7分という、アクセス至便な立地にあります。新橋仲通り角地に立地するため、視認性が高く、クライアントやビジネスパートナーの訪問にも最適です。周辺は中小規模のオフィスビルが多く、比較的静かな環境で、集中して業務に取り組むことができます。 **設備と特徴** 本ビルは、弁護士専用のオフィスビルであり、法律業界のニーズに合わせた設備を完備しています。地下には専用の書庫室を設けており、大量の文書や資料の保管にも対応します。さらに、地下1階には会議室スペースがあり、プライバシーを確保しつつクライアントやチームメンバーとの打ち合わせが可能です。 管理体制も特筆すべき点で、管理人が常駐し、ビルの安全性や清潔さを常に保っています。セキュリティ面でも高い水準を維持しており、弁護士の皆様が安心して業務に専念できる環境を提供します。 **ビジネスへの利点** このビルは、弁護士の業務に特化した設計となっており、効率的な業務遂行をサポートします。立地の良さは、クライアントとの面談や裁判所へのアクセスのしやすさに直結し、時間を有効に活用することができます。また、専門性に特化した設備は、業務の質を高め、プロフェッショナルとしての信頼性をクライアントに伝えることができます。 このビルは、法律業界で活躍するプロフェッショナルにとって、ビジネスとキャリアを加速させるための最適な場所です。弁護士の皆様が求める機能性と快適さ、そしてプロフェッショナリズムを兼ね備えたこのオフィスビルで、次なる成功への一歩を踏み出しましょう。
虎ノ門法曹ビルのこだわり
自分で探すより問い合わせる方が早いことがあります
WEB非公開物件があるから
オーナー様のご希望により「WEBでは非公開」にしている物件があります。 それらはWEBでいくら検索しても見つかりません。 先ずは条件などお知らせ頂けましたら非公開物件含め ピッタリのオフィスをご提案させて頂きます。 無理なお勧めはしておりませんので、お気軽にお問い合わせください。
対面でのご相談も受け付けております
ご来店も歓迎です
オフィス移転は社内・社外ともに非公開に行われることが殆どです。そのためアットオフィスでは、基本的に訪問によるコンサルティングを行っておりますが、ご来店の相談も歓迎です。お一人おひとりに親身にご対応させて頂きたい為、要予約とさせて頂いております。ご来店の際は先ずは下記よりご予約下さい。
近くのエリアで探してみる
新橋/虎ノ門/神谷町エリアで虎ノ門法曹ビルに似た条件の物件
読込中...
虎ノ門法曹ビルと同じ最寄駅の物件
読込中...
| 取扱様態 | 仲介 |
|---|---|
| 取扱会社 | 株式会社 アットオフィス |