ヴァンテアンビル3階の賃貸情報
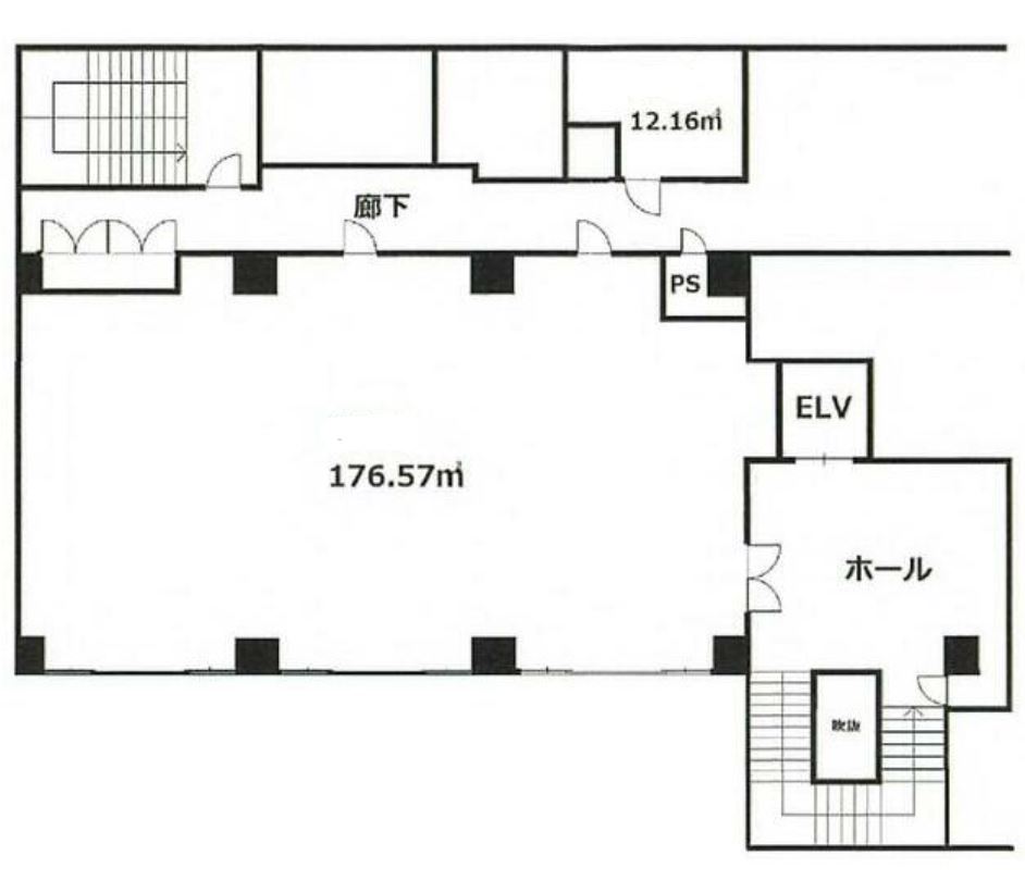
57.08 坪 (188.69m²)
※このサイトに記載がある賃貸条件は、敷金・保証金などの預かり金を除き、別途消費税がかかります。
設備詳細
| 空調 | - |
|---|---|
| トイレ | - |
| 床仕様 | - |
| エレベータ | 2 基 |
| 駐車場設備 | - |
| その他 | 機械警備 / 大型ビル / 光ファイバー / 新耐震基準 / クリニック |
ヴァンテアンビル3階の賃貸オフィス・事務所に関するお問い合わせ
ヴァンテアンビルについて
ヴァンテアンは、船堀3丁目にあるオフィスビルです。船堀駅から徒歩1分の駅近物件です。1996年に竣工しました。エレベーターが2基あります。鉄骨鉄筋コンクリート造により耐震性に優れています。光ファイバーに対応しています。セキュリティ設備があります。店舗やクリニックとして利用できます。周辺には飲食店やクリニック、三菱UFJ銀行があります。近隣にはオフィスビルや店舗ビルが立ち並んでいます。交通量の穏やかな広い通りに面しています。専門店が集まる駅前付近に位置するため、駅利用者や買い物客が利用しやすいエリアです。
自分で探すより問い合わせる方が早いことがあります
WEB非公開物件があるから
オーナー様のご希望により「WEBでは非公開」にしている物件があります。 それらはWEBでいくら検索しても見つかりません。 先ずは条件などお知らせ頂けましたら非公開物件含め ピッタリのオフィスをご提案させて頂きます。 無理なお勧めはしておりませんので、お気軽にお問い合わせください。
対面でのご相談も受け付けております
ご来店も歓迎です
オフィス移転は社内・社外ともに非公開に行われることが殆どです。そのためアットオフィスでは、基本的に訪問によるコンサルティングを行っておりますが、ご来店の相談も歓迎です。お一人おひとりに親身にご対応させて頂きたい為、要予約とさせて頂いております。ご来店の際は先ずは下記よりご予約下さい。
江戸川区エリアでヴァンテアンビルに似た条件の物件
読込中...
ヴァンテアンビルと同じ最寄駅の物件
読込中...
| 取扱様態 | 仲介 |
|---|---|
| 取扱会社 | 株式会社 アットオフィス |