ヴィラ・ハセの賃料条件
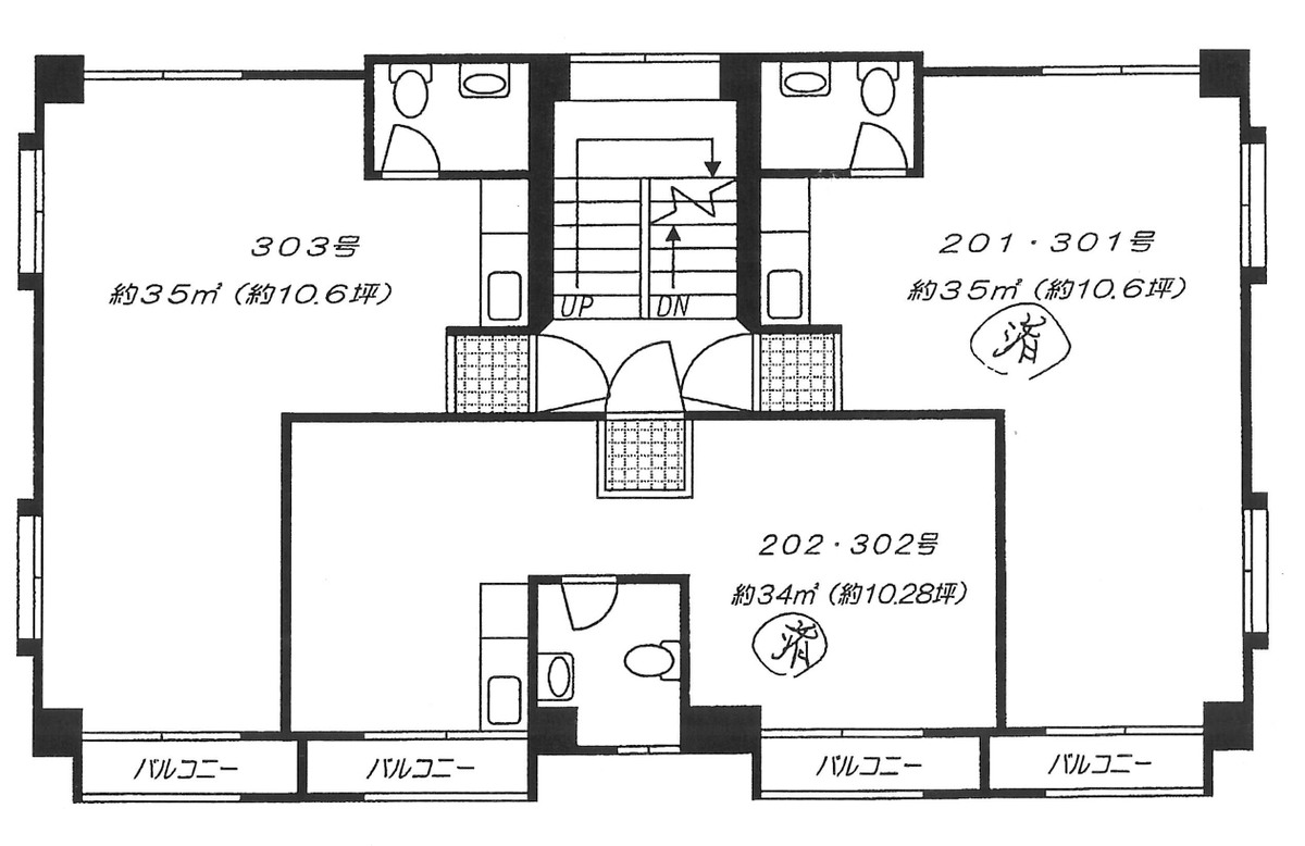
| 階数 | 坪数 | 賃料 + 共益費 | 敷金/礼金敷金 礼金 | 検討 |
|---|---|---|---|---|
| 2階 | 10.58坪 (34.98m²) | 317,400円 (坪:30,000 円) | 12ヶ月 無12ヶ月/無 | |
| 2階 | 10.29坪 (34m²) | 308,700円 (坪:30,000 円) | 12ヶ月 無12ヶ月/無 |
※このサイトに記載がある賃貸条件は、敷金・保証金などの預かり金を除き、別途消費税がかかります。
物件情報
設備詳細
| 空調 | - |
|---|---|
| トイレ | - |
| 床仕様 | - |
| エレベータ | 1 基 |
| 駐車場設備 | - |
| その他 | 店舗可(飲食不可) / スケルトン |
ヴィラ・ハセの賃貸オフィス・事務所に関するお問い合わせ
ヴィラ・ハセについて
ヴィラハセビル、神宮前6丁目に位置するこの壮大なオフィスビルは、ビジネスの中心地でありながら、歴史と静けさを兼ね備えた渋谷区の隠れた宝石です。このビルは1971年に鉄筋コンクリート造で竣工され、耐震性に優れた構造でありながら、時代を超えた魅力を保ち続けています。1基のエレベーターがあり、効率的に各フロアにアクセスできます。 立地においては、原宿駅からわずか徒歩5分、さらに明治神宮前駅からは徒歩2分という驚異的な駅近物件であり、アクセスの良さはビジネスにとっての大きな利点です。この地域の活気あふれる雰囲気の中で、毎日数多くの駅利用者や買い物客で賑わっており、ビジネスの成長に欠かせない視認性と利便性を提供します。 ヴィラハセビルは、スケルトン物件として内装を自由にアレンジできる柔軟性を持っており、テナントのニーズに応じたカスタマイズが可能です。店舗、飲食店、クリニックなど、さまざまな業態への対応が可能であり、ビジネスの可能性を広げます。周辺には飲食店や専門店、美容サロンが充実しており、ビジネスパートナーや顧客との交流の場としても最適です。 このビルが立ち並ぶコンパクトな裏通りは、交通量が穏やかでありながら、専門店が集まる駅前付近に位置しています。この理想的なバランスが、静かで落ち着いた環境の中でビジネスを行いたい企業にとって魅力的な選択肢となります。 ヴィラハセビルは、その歴史的な魅力と現代的なニーズを満たす設備、そして抜群の立地により、ビジネスの成功を後押しする理想的な環境を提供します。ここにオフィスを構えることで、ビジネスの可能性を最大限に引き伸ばし、成功への道を切り開くことができるでしょう。
ヴィラ・ハセのこだわり
自分で探すより問い合わせる方が早いことがあります
WEB非公開物件があるから
オーナー様のご希望により「WEBでは非公開」にしている物件があります。 それらはWEBでいくら検索しても見つかりません。 先ずは条件などお知らせ頂けましたら非公開物件含め ピッタリのオフィスをご提案させて頂きます。 無理なお勧めはしておりませんので、お気軽にお問い合わせください。
対面でのご相談も受け付けております
ご来店も歓迎です
オフィス移転は社内・社外ともに非公開に行われることが殆どです。そのためアットオフィスでは、基本的に訪問によるコンサルティングを行っておりますが、ご来店の相談も歓迎です。お一人おひとりに親身にご対応させて頂きたい為、要予約とさせて頂いております。ご来店の際は先ずは下記よりご予約下さい。
募集終了のテナント区画
| 階数 | 坪数 | 賃料 + 共益費 | 敷金/礼金敷金 礼金 | 検討 |
|---|---|---|---|---|
| 1階 | 36坪 (119.01m²) | 募集終了 | - | - |
| 1階 | 28.77坪 (95.13m²) | 募集終了 | - | - |
| 3階 | 10.6坪 (35m²) | 募集終了 | - | - |
| 4階 | 9坪 (29.75m²) | 募集終了 | - | - |
読込中...
表参道/外苑前エリアでヴィラ・ハセに似た条件の物件
読込中...
| 取扱様態 | 仲介 |
|---|---|
| 取扱会社 | 株式会社 アットオフィス |