Aフロント神田須田町ビルの賃料条件
| 階数 | 坪数 | 賃料 + 共益費 | 敷金/礼金敷金 礼金 | 検討 |
|---|---|---|---|---|
| 1階 | 14.33坪 (47.37m²) | 429,900円 (坪:30,000 円) | 10ヶ月 無10ヶ月/無 | |
| 7階 | 80.73坪 (266.88m²) | 2,018,250円 (坪:25,000 円) | 6ヶ月 無6ヶ月/無 |
※このサイトに記載がある賃貸条件は、敷金・保証金などの預かり金を除き、別途消費税がかかります。
物件情報
設備詳細
| 空調 | 個別空調 |
|---|---|
| トイレ | 男女共用トイレ・室外 |
| 床仕様 | - |
| エレベータ | 2 基 |
| 駐車場設備 | - |
| その他 | 機械警備 / 24時間利用可 / 新耐震基準 / 1階の物件 |
Aフロント神田須田町ビルの賃貸オフィス・事務所に関するお問い合わせ
Aフロント神田須田町ビルについて
ヒューリック神田須田町ビルは、千代田区神田須田町1丁目に位置しており、その立地はビジネスの中心地にあることから、アクセスの利便性は抜群です。このビルは、靖国通りと中央通りが交差する角地にあるため、どちらの通りからも簡単にアクセス可能で、ビジネスの様々な機会への接続性を強化します。また、神田駅、小川町駅、岩本町駅から徒歩5分という駅近の立地は、従業員や来訪者にとって大きな利点となります。更に、新御茶ノ水駅や秋葉原駅も徒歩圏内にあるため、都内各所へのアクセスも容易です。 ビルの外観は、スタイリッシュなガラスウォールで構成されており、モダンで洗練された印象を与えます。この特徴的なデザインは、企業のイメージやブランドの向上にも貢献するでしょう。内部には、最新の設備が整っており、オフィス環境を快適に保つための機能が充実しています。これにより、従業員の生産性の向上や働きやすい環境づくりに繋がります。 ヒューリック神田須田町ビルは、ビジネスの拠点としてだけでなく、企業のイメージアップにも寄与する理想的なオフィススペースです。その立地、設備、デザインのすべてが、ビジネス成功のための重要な要素を兼ね備えています。このビルでは、働きやすさとアクセスの良さを重視する企業に最適な環境が提供されています。
Aフロント神田須田町ビルのこだわり
自分で探すより問い合わせる方が早いことがあります
WEB非公開物件があるから
オーナー様のご希望により「WEBでは非公開」にしている物件があります。 それらはWEBでいくら検索しても見つかりません。 先ずは条件などお知らせ頂けましたら非公開物件含め ピッタリのオフィスをご提案させて頂きます。 無理なお勧めはしておりませんので、お気軽にお問い合わせください。
対面でのご相談も受け付けております
ご来店も歓迎です
オフィス移転は社内・社外ともに非公開に行われることが殆どです。そのためアットオフィスでは、基本的に訪問によるコンサルティングを行っておりますが、ご来店の相談も歓迎です。お一人おひとりに親身にご対応させて頂きたい為、要予約とさせて頂いております。ご来店の際は先ずは下記よりご予約下さい。
募集終了のテナント区画
| 階数 | 坪数 | 賃料 + 共益費 | 敷金/礼金敷金 礼金 | 検討 |
|---|---|---|---|---|
| B1階 | 35.97坪 (118.93m²) | 募集終了 | - | - |
| 1階 | 31.75坪 (104.99m²) | 募集終了 | - | - |
| 2階 | 86.2坪 (284.97m²) | 募集終了 | - | - |
| 3階 | 76.5坪 (252.92m²) | 募集終了 | - | - |
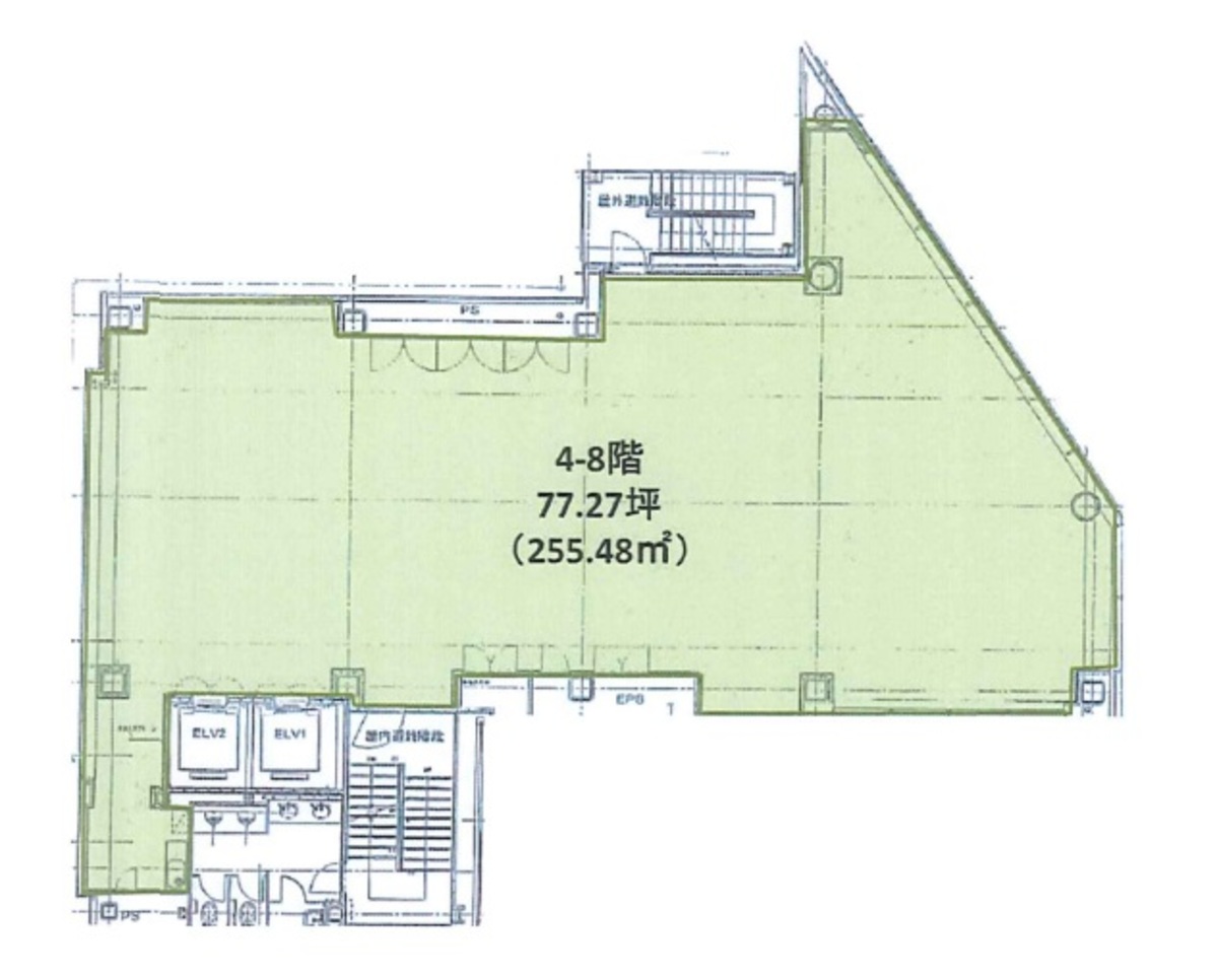
| 4階 | 77.27坪 (255.48m²) | 募集終了 | - | - |
| 5階 | 80.73坪 (266.89m²) | 募集終了 | - | - |
| 6階 | 77.27坪 (255.48m²) | 募集終了 | - | - |
| 6階 | 28.26坪 (93.42m²) | 募集終了 | - | - |
| 8階 | 80.73坪 (266.88m²) | 募集終了 | - | - |
| 9階 | 63.52坪 (209.98m²) | 募集終了 | - | - |
| 10階 | 60.63坪 (200.43m²) | 募集終了 | - | - |
| 10階 | 13.7坪 (45.29m²) | 募集終了 | - | - |
| 10階 | 12.5坪 (41.32m²) | 募集終了 | - | - |
読込中...
神田/秋葉原エリアでAフロント神田須田町ビルに似た条件の物件
読込中...
| 取扱様態 | 仲介 |
|---|---|
| 取扱会社 | 株式会社 アットオフィス |