※このサイトに記載がある賃貸条件は、敷金・保証金などの預かり金を除き、別途消費税がかかります。
物件情報
設備詳細
| 空調 | - |
|---|---|
| トイレ | - |
| 床仕様 | - |
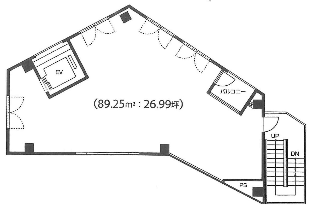
| エレベータ | 1 基 |
| 駐車場設備 | - |
| その他 | 新耐震基準 / 美容系店舗 / 店舗可(飲食不可) / 居抜き |
J.S神宮前PROPERTYの賃貸オフィス・事務所に関するお問い合わせ
J.S神宮前PROPERTYについて
あなたのビジネスの次なる舞台を、渋谷区神宮前6丁目に位置する「JS神宮前プロパティビル」で見つけませんか?2004年に誕生したこの耐震性に優れたオフィスビルは、あらゆる企業が求める機能性と快適さを兼ね備え、ビジネスの成功を後押しします。 立地としては、まさにビジネスチャンスに満ち溢れた環境です。明治通り沿いに構え、渋谷、原宿、表参道という3つの主要駅を利用できるこの場所は、アクセスの良さで群を抜いています。多様な交通網を駆使して、ビジネスの可能性を広げましょう。また、このエリアは流行の発信地としても知られ、若者文化や最新のトレンドに触れることができるため、クリエイティブな業種にとっては刺激的な環境と言えるでしょう。 ビル自体の特長として、耐震性に優れた構造は安心して働ける環境を提供します。自然災害が発生しても、ビルの安全性がビジネスの継続性を守ります。また、エレベーターは1機設置されており、スムーズな移動をサポート。効率的なオフィス運営を実現します。 内装についても、機能性とデザイン性を兼ね備えた空間が特徴です。心地よいオフィス環境は、働く人々の創造性と生産性を高め、ビジネスの成功を後押しします。このビルで、あなたの企業文化を体現し、従業員にとって最高の働く場所を提供してください。 「JS神宮前プロパティビル」は、ビジネスの拠点としてだけでなく、成長と成功を目指す企業にとってのパートナーです。立地の利便性、安全性、そして快適なオフィス環境が、あなたのビジネスを次のレベルへと導くでしょう。さあ、ここから新たなビジネスの歴史を始めませんか?
J.S神宮前PROPERTYのこだわり
自分で探すより問い合わせる方が早いことがあります
WEB非公開物件があるから
オーナー様のご希望により「WEBでは非公開」にしている物件があります。 それらはWEBでいくら検索しても見つかりません。 先ずは条件などお知らせ頂けましたら非公開物件含め ピッタリのオフィスをご提案させて頂きます。 無理なお勧めはしておりませんので、お気軽にお問い合わせください。
対面でのご相談も受け付けております
ご来店も歓迎です
オフィス移転は社内・社外ともに非公開に行われることが殆どです。そのためアットオフィスでは、基本的に訪問によるコンサルティングを行っておりますが、ご来店の相談も歓迎です。お一人おひとりに親身にご対応させて頂きたい為、要予約とさせて頂いております。ご来店の際は先ずは下記よりご予約下さい。
募集終了のテナント区画
| 階数 | 坪数 | 賃料 + 共益費 | 敷金/礼金敷金 礼金 | 検討 |
|---|---|---|---|---|
| B1-1階 | 52.25坪 (172.73m²) | 募集終了 | - | - |
| B1階 | 78.57坪 (259.74m²) | 募集終了 | - | - |
| 1階 | 50坪 (165.29m²) | 募集終了 | - | - |
| 2階 | 50坪 (165.29m²) | 募集終了 | - | - |
| 2階 | 26.32坪 (87.01m²) | 募集終了 | - | - |
| 3階 | 50坪 (165.29m²) | 募集終了 | - | - |
| 4階 | 50坪 (165.29m²) | 募集終了 | - | - |
| 4階 | 26.13坪 (86.38m²) | 募集終了 | - | - |
| 5階 | 50坪 (165.29m²) | 募集終了 | - | - |
| 5階 | 26.13坪 (86.37m²) | 募集終了 | - | - |
| 6階 | 50坪 (165.29m²) | 募集終了 | - | - |
| 7階 | 50坪 (165.29m²) | 募集終了 | - | - |
読込中...
表参道/外苑前エリアでJ.S神宮前PROPERTYに似た条件の物件
読込中...
| 取扱様態 | 仲介 |
|---|---|
| 取扱会社 | 株式会社 アットオフィス |