※このサイトに記載がある賃貸条件は、敷金・保証金などの預かり金を除き、別途消費税がかかります。
物件情報
設備詳細
| 空調 | - |
|---|---|
| トイレ | 男女共用トイレ・室内 |
| 床仕様 | - |
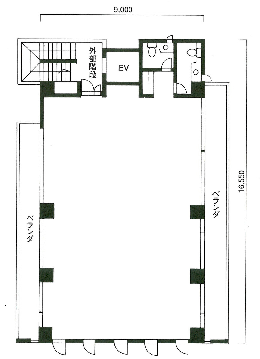
| エレベータ | 1 基 |
| 駐車場設備 | - |
| その他 | 機械警備 / 24時間利用可 / 新耐震基準 / 居抜き |
白川ビルの賃貸オフィス・事務所に関するお問い合わせ
白川ビルについて
# 白川ビルの魅力: 文京区湯島に位置するモダンで利便性の高いオフィスビル 白川ビルは、東京都文京区湯島に位置する賃貸オフィスビルで、その外観はグレーとホワイトを基調とした石造りで、都市の中の洗練された美しさを象徴しています。春日通りに近接しているため、アクセスの利便性が非常に高く、湯島駅をはじめとする複数の鉄道駅からも短時間で到着できます。ビルの立地と機能性が、ビジネスの中心地として最適な環境を提供しています。 ## 設備と利便性 ビル内には快適なエレベーターが1基設置されており、日々の業務での移動をスムーズにサポートします。エレベーターホールは清潔感溢れる白を基調にしており、訪れるクライアントにも好印象を与えることでしょう。また、1階には活気ある焼酎居酒屋が入居しており、ビジネスアフター5の憩いの場としても最適です。夜には外階段に設置されたフットランプがやさしく照らし出し、安全かつ心地良い帰宅を助けます。 ## ビジネス環境としての魅力 白川ビルは、その位置が提供する圧倒的な利便性により、多様なビジネスチャンスを生み出します。ビルの向かいには歯科医院があり、従業員の健康管理も容易です。周辺には多数の飲食店があり、ビジネスランチや接待にも困りません。また、徒歩圏内にドン・キホーテ・上野店があるため、急な買い出しも問題なく対応可能です。 ## 総合評価 白川ビルは、その優れた設備、アクセスの良さ、そしてビジネスに必要なすべての要素を兼ね備えたオフィスビルです。文京区という文教地区に位置しながら、商業的な活動にも最適なこのビルは、多くの企業にとって魅力的な選択肢となることでしょう。どのような業種にも対応可能な柔軟性と、日々の業務を支える充実した設備が、皆様のビジネスをさらに発展させる一助となることをお約束します。白川ビルで、新たなビジネスのステージを始めませんか?
白川ビルのこだわり
自分で探すより問い合わせる方が早いことがあります
WEB非公開物件があるから
オーナー様のご希望により「WEBでは非公開」にしている物件があります。 それらはWEBでいくら検索しても見つかりません。 先ずは条件などお知らせ頂けましたら非公開物件含め ピッタリのオフィスをご提案させて頂きます。 無理なお勧めはしておりませんので、お気軽にお問い合わせください。
対面でのご相談も受け付けております
ご来店も歓迎です
オフィス移転は社内・社外ともに非公開に行われることが殆どです。そのためアットオフィスでは、基本的に訪問によるコンサルティングを行っておりますが、ご来店の相談も歓迎です。お一人おひとりに親身にご対応させて頂きたい為、要予約とさせて頂いております。ご来店の際は先ずは下記よりご予約下さい。
募集終了のテナント区画
| 階数 | 坪数 | 賃料 + 共益費 | 敷金/礼金敷金 礼金 | 検討 |
|---|---|---|---|---|
| 1階 | 34.9坪 (115.37m²) | 募集終了 | - | - |
| 2階 | 20坪 (66.11m²) | 募集終了 | - | - |
| 3階 | 41.14坪 (136m²) | 募集終了 | - | - |
読込中...
湯島/本郷/後楽園エリアで白川ビルに似た条件の物件
読込中...
| 取扱様態 | 仲介 |
|---|---|
| 取扱会社 | 株式会社 アットオフィス |