※このサイトに記載がある賃貸条件は、敷金・保証金などの預かり金を除き、別途消費税がかかります。
物件情報
設備詳細
| 空調 | - |
|---|---|
| トイレ | 男女別トイレ室内 |
| 床仕様 | - |
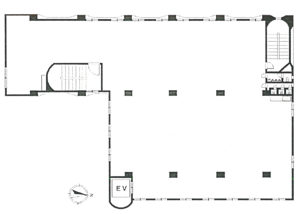
| エレベータ | 1 基 |
| 駐車場設備 | - |
| その他 | 東京賃料が坪11000円以下 / 天井高3m以上 |
市川製本所ビルの賃貸オフィス・事務所に関するお問い合わせ
市川製本所ビルについて
市川製本所ビルは、新宿区東榎町に位置し、東京地下鉄東西線「神楽坂駅」から徒歩5分、同じく東西線「早稲田駅」からは徒歩8分、さらに東京地下鉄有楽町線「江戸川橋駅」からも徒歩9分の距離にあります。複数路線・複数駅が利用可能な環境にあり、東西線と有楽町線の双方を利用することができるため、都内各方面へのアクセスが可能です。 当ビルは地上6階建てで、エレベーターを1基備えています。用途や規模に応じて、各フロアの活用方法を検討できる造りとなっています。企業のオフィスをはじめ、事業活動に求められるさまざまな利用シーンを想定しやすい建物です。 周辺は落ち着いた新宿区東榎町エリアでありながら、駅から徒歩圏内に位置しています。複数の駅から徒歩でアクセスできるため、来訪者や従業員の通勤動線も確保しやすい立地です。事業用賃貸物件として新たな拠点をご検討される際は、詳細はお問い合わせください。
市川製本所ビルのこだわり
自分で探すより問い合わせる方が早いことがあります
WEB非公開物件があるから
オーナー様のご希望により「WEBでは非公開」にしている物件があります。 それらはWEBでいくら検索しても見つかりません。 先ずは条件などお知らせ頂けましたら非公開物件含め ピッタリのオフィスをご提案させて頂きます。 無理なお勧めはしておりませんので、お気軽にお問い合わせください。
対面でのご相談も受け付けております
ご来店も歓迎です
オフィス移転は社内・社外ともに非公開に行われることが殆どです。そのためアットオフィスでは、基本的に訪問によるコンサルティングを行っておりますが、ご来店の相談も歓迎です。お一人おひとりに親身にご対応させて頂きたい為、要予約とさせて頂いております。ご来店の際は先ずは下記よりご予約下さい。
読込中...
近くのエリアで探してみる
市ヶ谷/神楽坂/飯田橋エリアで市川製本所ビルに似た条件の物件
読込中...
| 取扱様態 | 仲介 |
|---|---|
| 取扱会社 | 株式会社 アットオフィス |