三菱ビル11階の賃貸情報
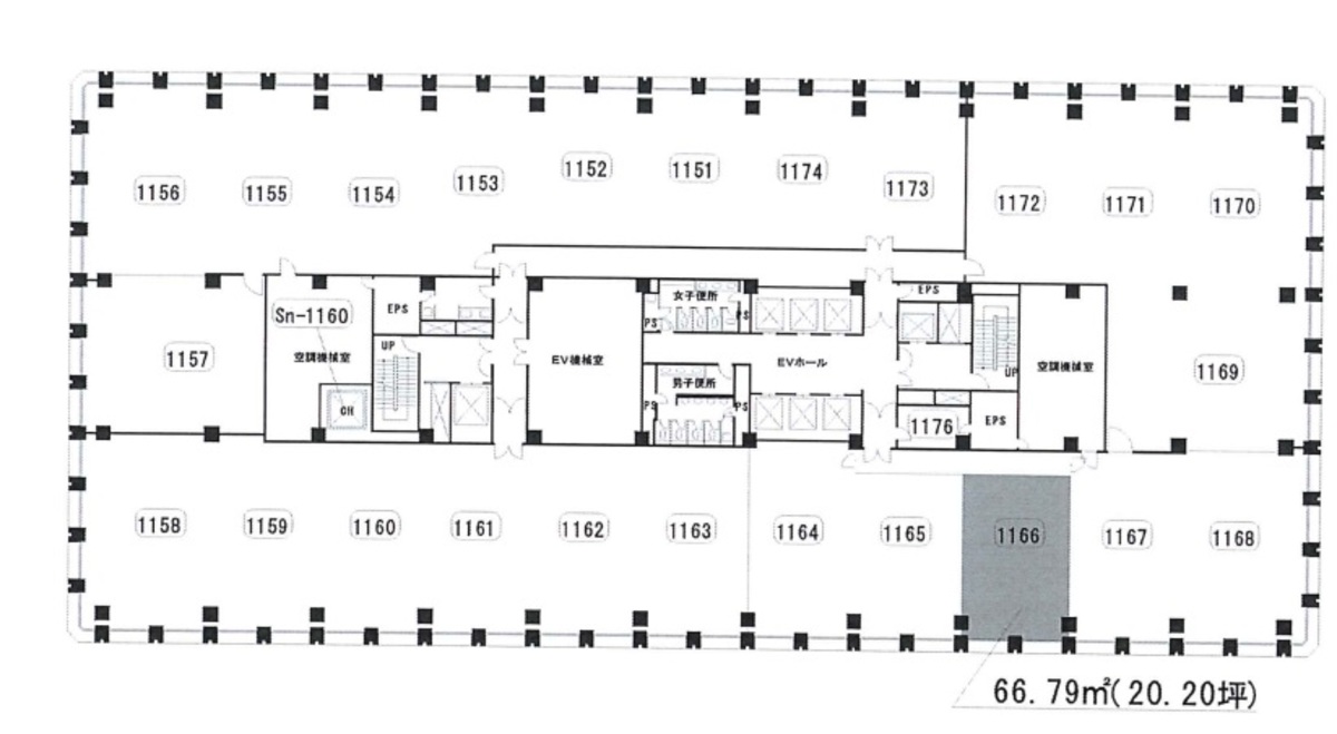
20.2 坪 (66.79m²)
※このサイトに記載がある賃貸条件は、敷金・保証金などの預かり金を除き、別途消費税がかかります。
三菱ビルの建物概要
設備詳細
| 空調 | - |
|---|---|
| トイレ | - |
| 床仕様 | OA対応床(フリーアクセス) |
| エレベータ | 15 基 |
| 駐車場設備 | 空有 |
| その他 | 大型ビル |
三菱ビル11階の賃貸オフィス・事務所に関するお問い合わせ
三菱ビルについて
三菱ビルは、東京都千代田区丸の内二丁目、東京駅直結という卓越した立地に位置する賃貸オフィスビルです。1973年に竣工したこの15階建のオフィスビルは、大型でありながら、その年代特有の堅牢な構造と、現代的な快適さを兼ね備えています。基準階の面積は約635坪で、非常に広々としたオフィススペースを提供しております。 立地の優位性は、特に強調すべき点です。地下1階からは東京駅に直結しており、大手町駅や有楽町方面へも雨に濡れずにアクセス可能です。この立地は、通勤の利便性だけでなく、ビジネスの機会を広げる上で大きなアドバンテージとなります。加えて、向かいには商業施設「KITTE丸の内」があり、周辺環境も非常に充実しています。 ビル内の設備も魅力的です。貸会議室やリフレッシュルームが併設されており、テナントのビジネスをサポートする施設が充実しています。これらの設備は、働く従業員の満足度を高めるだけでなく、来客に対する印象も良くします。また、エレベーターは15基(乗用14基)設置されており、ビル内の移動もスムーズです。 セキュリティ面では、24時間有人管理が行われており、安全性も高く保たれています。ビルの構造としては、1973年の新耐震基準以前に竣工しているものの、堅牢な作りで知られており、長期的な安心感を提供します。 三菱ビルは、丸ビル・新丸ビルと共に東京駅を取り囲む一角に位置し、ビジネスの中心地としての地位を確立しています。このビルが提供する豊富な設備、優れた立地、そして快適なオフィス環境は、あらゆる業種の企業にとって、最適なビジネス拠点となるでしょう。三菱ビルで、東京の中心地におけるビジネスの機会を最大限に引き出しましょう。
三菱ビルのこだわり
自分で探すより問い合わせる方が早いことがあります
WEB非公開物件があるから
オーナー様のご希望により「WEBでは非公開」にしている物件があります。 それらはWEBでいくら検索しても見つかりません。 先ずは条件などお知らせ頂けましたら非公開物件含め ピッタリのオフィスをご提案させて頂きます。 無理なお勧めはしておりませんので、お気軽にお問い合わせください。
対面でのご相談も受け付けております
ご来店も歓迎です
オフィス移転は社内・社外ともに非公開に行われることが殆どです。そのためアットオフィスでは、基本的に訪問によるコンサルティングを行っておりますが、ご来店の相談も歓迎です。お一人おひとりに親身にご対応させて頂きたい為、要予約とさせて頂いております。ご来店の際は先ずは下記よりご予約下さい。
近くのエリアで探してみる
大手町/丸の内/有楽町エリアで三菱ビルに似た条件の物件
読込中...
三菱ビルと同じ最寄駅の物件
読込中...
| 取扱様態 | 仲介 |
|---|---|
| 取扱会社 | 株式会社 アットオフィス |