※このサイトに記載がある賃貸条件は、敷金・保証金などの預かり金を除き、別途消費税がかかります。
物件情報
設備詳細
| 空調 | 個別空調 |
|---|---|
| トイレ | - |
| 床仕様 | - |
| エレベータ | 1 基 |
| 駐車場設備 | - |
| その他 | 新耐震基準 |
住友生命茅場町ビルの賃貸オフィス・事務所に関するお問い合わせ
住友生命茅場町ビルについて
住友生命茅場町ビルは、東京の中央区日本橋茅場町2丁目に位置する、1989年に竣工された耐震性に優れたオフィスビルです。このビルは、茅場町駅から徒歩わずか1分という非常に便利な立地にあり、ビジネスの中心地である東京の中心部へのアクセスが容易です。さらに、3つ以上の駅を利用できる好立地に位置しており、都内各地への移動がスムーズに行えるため、ビジネスの機動性を高めてくれることでしょう。 ビルの構造においては、耐震性に配慮されており、1989年の竣工時から安全性に対するこだわりを持って設計されています。このため、テナント企業は安心してオフィス環境を確保することができます。また、ビル内にはエレベーターが1機設置されており、スムーズな垂直移動をサポートしています。このエレベーターは、ビル内の移動効率を高めるための重要な設備の一つです。 視認性に優れた大型オフィスビルとしての魅力も住友生命茅場町ビルの大きな特徴の一つです。茅場町駅からのアクセスが非常に良いため、来客の方々にとっても分かりやすく、企業イメージを高める要素となり得ます。また、周辺地域はビジネス環境が整っており、多くの企業が集まるエリアであるため、ビジネスチャンスの創出にも非常に有利です。 住友生命茅場町ビルは、その立地、設備、耐震性を兼ね備え、ビジネスの成長に寄与するオフィス環境を提供します。ビジネスの拠点としての機能性はもちろん、安全性やアクセスの良さを求める企業にとって、最適な選択肢となるでしょう。企業が求める多様なニーズに応えることができる、住友生命茅場町ビルは、ビジネスの成功を支える強固なパートナーとなることでしょう。
住友生命茅場町ビルのこだわり
自分で探すより問い合わせる方が早いことがあります
WEB非公開物件があるから
オーナー様のご希望により「WEBでは非公開」にしている物件があります。 それらはWEBでいくら検索しても見つかりません。 先ずは条件などお知らせ頂けましたら非公開物件含め ピッタリのオフィスをご提案させて頂きます。 無理なお勧めはしておりませんので、お気軽にお問い合わせください。
対面でのご相談も受け付けております
ご来店も歓迎です
オフィス移転は社内・社外ともに非公開に行われることが殆どです。そのためアットオフィスでは、基本的に訪問によるコンサルティングを行っておりますが、ご来店の相談も歓迎です。お一人おひとりに親身にご対応させて頂きたい為、要予約とさせて頂いております。ご来店の際は先ずは下記よりご予約下さい。
募集終了のテナント区画
| 階数 | 坪数 | 賃料 + 共益費 | 敷金/礼金敷金 礼金 | 検討 |
|---|---|---|---|---|
| 1階 | 131.68坪 (435.31m²) | 募集終了 | - | - |
| 3階 | 151.94坪 (502.27m²) | 募集終了 | - | - |
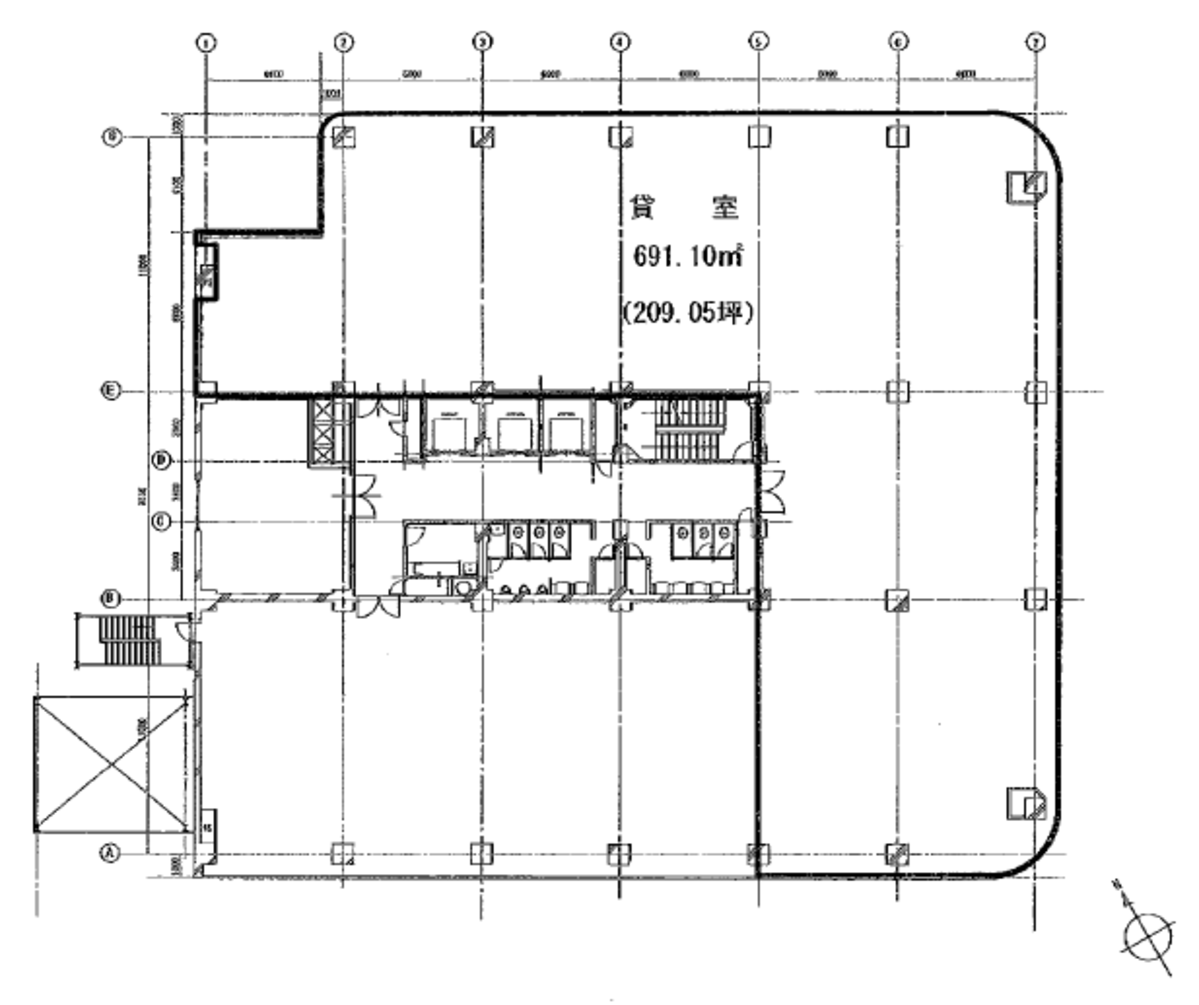
| 6階 | 209.06坪 (691.11m²) | 募集終了 | - | - |
| 6階 | 128.31坪 (424.17m²) | 募集終了 | - | - |
| 6階 | 80.74坪 (266.93m²) | 募集終了 | - | - |
| 7階 | 295.41坪 (976.58m²) | 募集終了 | - | - |
読込中...
近くのエリアで探してみる
茅場町/新川/八丁堀エリアで住友生命茅場町ビルに似た条件の物件
読込中...
| 取扱様態 | 仲介 |
|---|---|
| 取扱会社 | 株式会社 アットオフィス |