K・B東池袋ビル5階の賃貸情報
17.17 坪 (56.76m²)
※このサイトに記載がある賃貸条件は、敷金・保証金などの預かり金を除き、別途消費税がかかります。
K・B東池袋ビルの建物概要
設備詳細
| 空調 | - |
|---|---|
| トイレ | - |
| 床仕様 | - |
| エレベータ | 1 基 |
| 駐車場設備 | - |
| その他 | 24時間利用可 / オートロック / 機械警備 / 新耐震基準 / 東京賃料が坪11000円以下 / クリニック |
K・B東池袋ビル5階の賃貸オフィス・事務所に関するお問い合わせ
K・B東池袋ビルについて
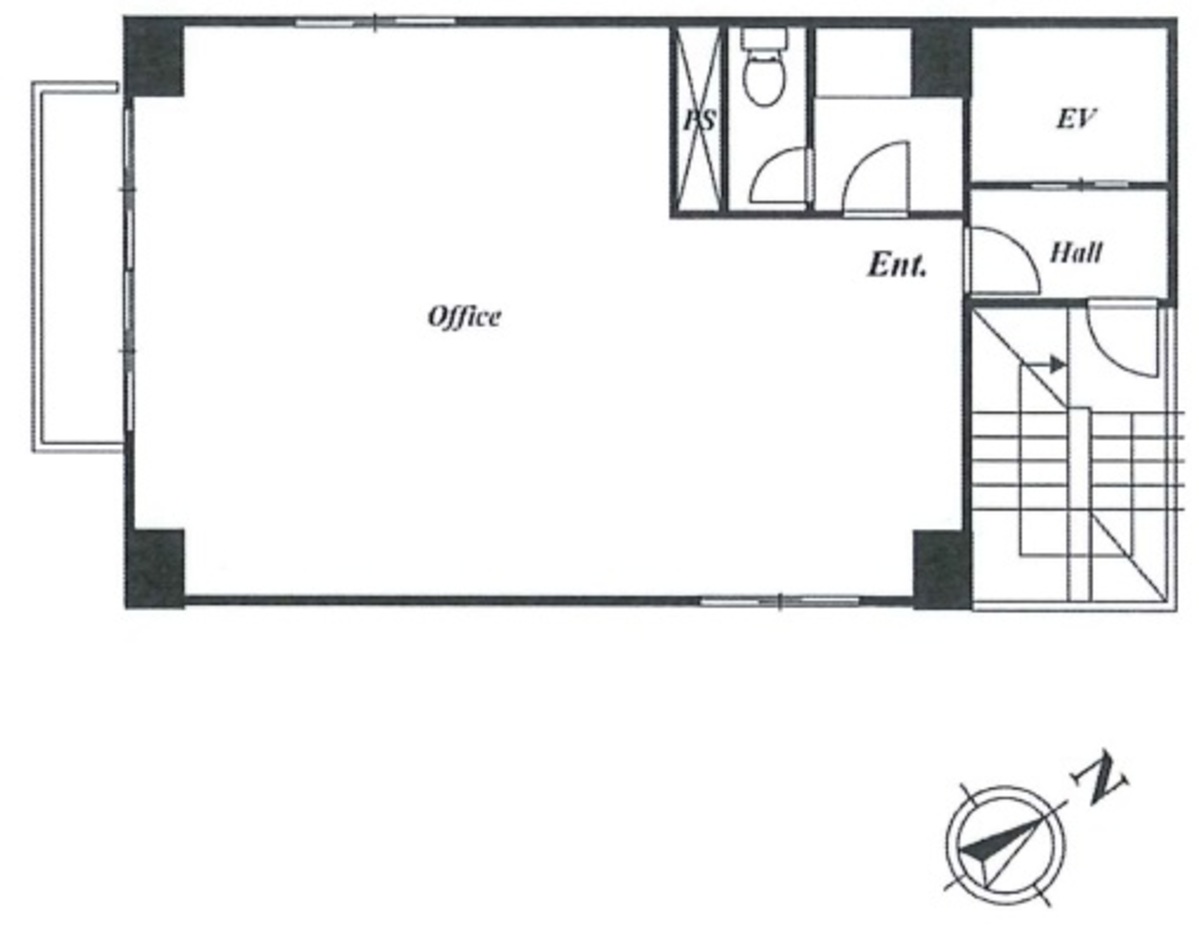
K・B東池袋ビルは、豊島区東池袋2-7-4に位置し、最寄りの大塚駅から徒歩7分というアクセスの良さがあります。春日通りに面しており、新耐震基準を満たしたこのビルは、安全性が非常に高いことが特徴です。ワンフロア・ワンテナント制で提供されるオフィススペースは、プライバシーが保たれやすく、集中して仕事をする環境が整っています。 K・B東池袋ビルの特徴の一つは、その間取りの正方形に近い形状です。これにより、オフィスレイアウトが非常に効率的に行え、作業スペースを最大限に活用することが可能です。また、エントランスは管理が行き届いており、来客時も安心して迎えることができます。
自分で探すより問い合わせる方が早いことがあります
WEB非公開物件があるから
オーナー様のご希望により「WEBでは非公開」にしている物件があります。 それらはWEBでいくら検索しても見つかりません。 先ずは条件などお知らせ頂けましたら非公開物件含め ピッタリのオフィスをご提案させて頂きます。 無理なお勧めはしておりませんので、お気軽にお問い合わせください。
対面でのご相談も受け付けております
ご来店も歓迎です
オフィス移転は社内・社外ともに非公開に行われることが殆どです。そのためアットオフィスでは、基本的に訪問によるコンサルティングを行っておりますが、ご来店の相談も歓迎です。お一人おひとりに親身にご対応させて頂きたい為、要予約とさせて頂いております。ご来店の際は先ずは下記よりご予約下さい。
池袋/大塚/目白エリアでK・B東池袋ビルに似た条件の物件
読込中...
K・B東池袋ビルと同じ最寄駅の物件
読込中...
| 取扱様態 | 仲介 |
|---|---|
| 取扱会社 | 株式会社 アットオフィス |