新宿サンハイム4階の賃貸情報
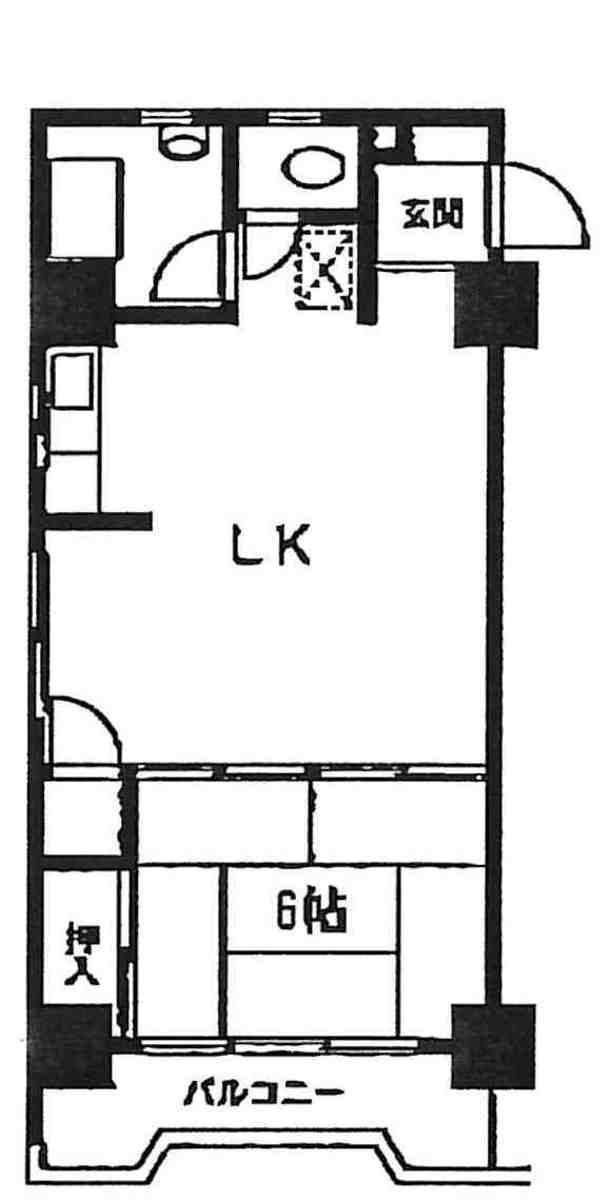
13.86 坪 (45.82m²)
※このサイトに記載がある賃貸条件は、敷金・保証金などの預かり金を除き、別途消費税がかかります。
新宿サンハイムの建物概要
設備詳細
| 空調 | 個別空調 |
|---|---|
| トイレ | - |
| 床仕様 | - |
| エレベータ | - |
| 駐車場設備 | - |
| その他 | 24時間利用可 / SOHO/マンション / 東京賃料が坪11000円以下 / 保証金・敷金+礼金が3か月以下 |
新宿サンハイム4階の賃貸オフィス・事務所に関するお問い合わせ
新宿サンハイムについて
新宿サンハイムビルは、東京都新宿区新宿2丁目に位置する、SOHOや事務所利用に適したマンションです。このエリアは、ビジネスと文化の中心地として知られ、さまざまな業種の企業が集まる活気あふれる地域です。新宿サンハイムビルは、基準階面積が約176.608坪の大型ビルで、広々としたオフィススペースを提供しています。このビルは、SOHO利用相談可能という点が特に魅力的で、起業家やクリエイター、フリーランサーにとって理想的な環境を提供します。 ビルの立地は、新宿駅から徒歩圏内という絶好のロケーションにあります。新宿駅は、JR線をはじめ、私鉄や地下鉄が乗り入れる交通の要所であり、都内各地はもちろん、関東圏外へのアクセスも優れています。また、新宿駅周辺には、商業施設、飲食店、エンターテイメント施設が豊富にあり、仕事後のリラックスやビジネスミーティングにも最適な環境です。 設備面では、新宿サンハイムビルは最新のセキュリティシステムを導入しており、24時間体制で安全が保障されています。また、高速インターネット環境も完備しており、ビジネスに必要不可欠な通信環境を提供します。ビル内には、会議室や休憩スペースも設けられており、快適なビジネスライフをサポートします。 新宿サンハイムビルの最大の魅力は、その立地と設備、そしてSOHO利用が相談可能という柔軟性にあります。個人事業主やスタートアップ企業にとって、ビジネスの成長に合わせた柔軟なオフィス運営が可能です。また、新宿というビジネスと文化の中心地にオフィスを構えることで、企業のブランディングにも大きく貢献します。 新宿サンハイムビルは、これからも多くのビジネスパーソンにとって理想的なオフィススペースとなるでしょう。あなたのビジネスを次のレベルへと引き上げるための最高の選択肢です。
新宿サンハイムのこだわり
自分で探すより問い合わせる方が早いことがあります
WEB非公開物件があるから
オーナー様のご希望により「WEBでは非公開」にしている物件があります。 それらはWEBでいくら検索しても見つかりません。 先ずは条件などお知らせ頂けましたら非公開物件含め ピッタリのオフィスをご提案させて頂きます。 無理なお勧めはしておりませんので、お気軽にお問い合わせください。
対面でのご相談も受け付けております
ご来店も歓迎です
オフィス移転は社内・社外ともに非公開に行われることが殆どです。そのためアットオフィスでは、基本的に訪問によるコンサルティングを行っておりますが、ご来店の相談も歓迎です。お一人おひとりに親身にご対応させて頂きたい為、要予約とさせて頂いております。ご来店の際は先ずは下記よりご予約下さい。
新宿/西新宿エリアで新宿サンハイムに似た条件の物件
読込中...
新宿サンハイムと同じ最寄駅の物件
読込中...
| 取扱様態 | 仲介 |
|---|---|
| 取扱会社 | 株式会社 アットオフィス |