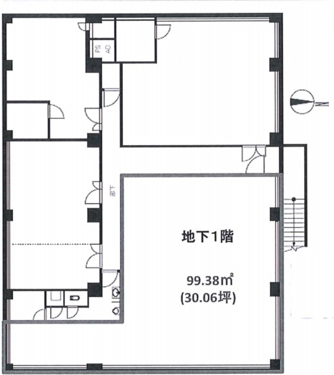
ニューローレルビルB1階の賃貸情報
30.06 坪 (99.38m²)
※このサイトに記載がある賃貸条件は、敷金・保証金などの預かり金を除き、別途消費税がかかります。
ニューローレルビルの建物概要
設備詳細
| 空調 | - |
|---|---|
| トイレ | - |
| 床仕様 | - |
| エレベータ | 1 基 |
| 駐車場設備 | - |
| その他 | SOHO/マンション / クリニック / スケルトン |
ニューローレルビルについて
ニューローレルビルの魅力についてご紹介します!このビルは、ビジネスと住居の両方のニーズに応える、新宿区新宿1丁目に位置する大型のマンションです。新宿御苑前駅からすぐの立地にあり、新宿三丁目駅へも徒歩5分強と、2線2駅を利用可能で交通の便が非常に良いです。靖国通りに面しており、周りには飲食店が豊富にあるため、ビジネスランチやアフター5の利用にも困りません。 ニューローレルビルは基準階面積が約251.947坪の大型ビルで、1フロア約75坪の賃貸オフィス物件を提供しています。上層階は住居区画となっており、オフィスとしても住居としても利用可能な柔軟性がポイントです。正方形に近い間取りで、トイレと給湯スペースが各貸室内に完備されているため、快適なオフィスライフを送れます。 さらに、各階には個別空調が完備されており、快適な室温を保つことができます。ビル内には1機のエレベーターがあり、上層階の居住者専用となっています。竣工は1970年で、地上10階建てのため、多くのオフィスや住居に対応可能です。 ニューローレルビルのエントランスは、オフィスビルとしての品格を感じさせるデザインで、来訪者を迎えます。1階には便利な薬局もあり、オフィスワーカーや居住者の日常生活をサポートします。さらに、ビルの前面にはバス停があり、公共交通機関の利用も容易です。 このビルの独自の魅力は、ビジネスと住居の両方のニーズに応えるその柔軟性にあります。また、優れた立地と豊富な周辺施設、快適なオフィス環境を提供することで、ビジネスの成功をサポートします。ニューローレルビルは、新しいビジネスの拠点として、また、新宿での快適な住居として、あなたの期待を超える価値を提供します。お問い合わせはお早めに!
ニューローレルビルのこだわり
その他の区画
| 階数 | 坪数 | 賃料 + 共益費 | 敷金/礼金敷金 礼金 | 検討 |
|---|---|---|---|---|
| 3階 | 73.84坪 (244.11m²) | 1,258,000円 (坪:17,036 円) | 6ヶ月 無6ヶ月/無 |
自分で探すより問い合わせる方が早いことがあります
WEB非公開物件があるから
オーナー様のご希望により「WEBでは非公開」にしている物件があります。 それらはWEBでいくら検索しても見つかりません。 先ずは条件などお知らせ頂けましたら非公開物件含め ピッタリのオフィスをご提案させて頂きます。 無理なお勧めはしておりませんので、お気軽にお問い合わせください。
対面でのご相談も受け付けております
ご来店も歓迎です
オフィス移転は社内・社外ともに非公開に行われることが殆どです。そのためアットオフィスでは、基本的に訪問によるコンサルティングを行っておりますが、ご来店の相談も歓迎です。お一人おひとりに親身にご対応させて頂きたい為、要予約とさせて頂いております。ご来店の際は先ずは下記よりご予約下さい。
新宿/西新宿エリアでニューローレルビルに似た条件の物件
読込中...
ニューローレルビルと同じ最寄駅の物件
読込中...
| 取扱様態 | 仲介 |
|---|---|
| 取扱会社 | 株式会社 アットオフィス |