※このサイトに記載がある賃貸条件は、敷金・保証金などの預かり金を除き、別途消費税がかかります。
物件情報
設備詳細
| 空調 | - |
|---|---|
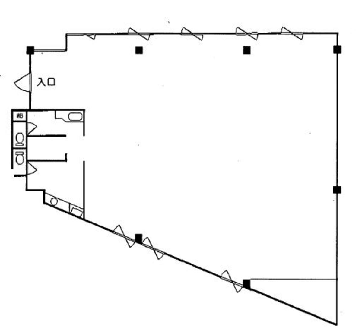
| トイレ | 男女共用トイレ・室内 |
| 床仕様 | - |
| エレベータ | 1 基 |
| 駐車場設備 | - |
| その他 | 新耐震基準 / 居抜き |
ヨシザワ10ビルの賃貸オフィス・事務所に関するお問い合わせ
ヨシザワ10ビルについて
ヨシザワ10は、川崎市多摩区登戸に位置する地上6階建ての建物です。小田急電鉄小田原線の「向ヶ丘遊園駅」から徒歩4分、同線および南武線の「登戸駅」からもいずれも徒歩6分という、複数の駅が利用可能な立地となっております。複数路線の活用ができるため、オフィスや事業拠点としても移動の選択肢が広がります。 建物にはエレベーターが1基設置されています。各フロアへの移動もスムーズに行え、来訪者や従業員の方の動線計画にも配慮しやすい設計です。また、新耐震基準を満たしており、建物構造面にも一定の基準が設けられています。 周辺は住宅や商業施設が混在し、事業活動の拠点として多様なニーズに対応できるロケーションです。事務所のほか、店舗やサービス業の展開などさまざまな用途での利用イメージが考えられます。 現地の詳細や、空室状況、契約条件等につきましては、詳細はお問い合わせください。
ヨシザワ10ビルのこだわり
自分で探すより問い合わせる方が早いことがあります
WEB非公開物件があるから
オーナー様のご希望により「WEBでは非公開」にしている物件があります。 それらはWEBでいくら検索しても見つかりません。 先ずは条件などお知らせ頂けましたら非公開物件含め ピッタリのオフィスをご提案させて頂きます。 無理なお勧めはしておりませんので、お気軽にお問い合わせください。
対面でのご相談も受け付けております
ご来店も歓迎です
オフィス移転は社内・社外ともに非公開に行われることが殆どです。そのためアットオフィスでは、基本的に訪問によるコンサルティングを行っておりますが、ご来店の相談も歓迎です。お一人おひとりに親身にご対応させて頂きたい為、要予約とさせて頂いております。ご来店の際は先ずは下記よりご予約下さい。
募集終了のテナント区画
| 階数 | 坪数 | 賃料 + 共益費 | 敷金/礼金敷金 礼金 | 検討 |
|---|---|---|---|---|
| 2階 | 50.31坪 (166.31m²) | 募集終了 | - | - |
| 4階 | 48.43坪 (160.1m²) | 募集終了 | - | - |
読込中...
多摩区エリアでヨシザワ10ビルに似た条件の物件
読込中...
| 取扱様態 | 仲介 |
|---|---|
| 取扱会社 | 株式会社 アットオフィス |