二葉ビル9階の賃貸情報
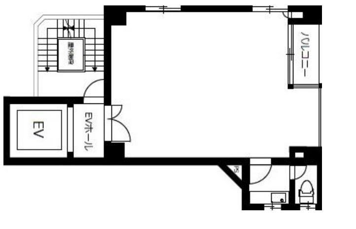
13.67 坪 (45.19m²)
※このサイトに記載がある賃貸条件は、敷金・保証金などの預かり金を除き、別途消費税がかかります。
二葉ビルの建物概要
設備詳細
| 空調 | - |
|---|---|
| トイレ | 男女共用トイレ・室内 |
| 床仕様 | - |
| エレベータ | 1 基 |
| 駐車場設備 | - |
| その他 | 機械警備 / 光ファイバー |
二葉ビル9階の賃貸オフィス・事務所に関するお問い合わせ
二葉ビルについて
本日は、南青山5丁目、港区に位置する隠れた宝石、「二葉ビル」のご紹介をさせていただきます。このエリアは、洗練されたショップ、レストラン、アートギャラリーが立ち並び、ビジネスとカルチャーが息づく場所として知られています。その中心に誇りを持って佇むのが、二葉ビルです。 1979年の新耐震基準が施行される前に建設されたこの物件は、歴史と伝統を感じさせる外観と、現代のニーズに合わせた内装が見事に融合しています。オフィスとしての利用を想定して設計されたこのビルは、様々な業種の企業にとって最適な環境を提供します。 ビル内には駐車場が完備されており、都心でのビジネスを行う上で非常に重要なポイントです。空き状況についてはお問い合わせくださいが、この地域での駐車スペースは非常に貴重であり、ビジネスの機動性を高める大きな利点となります。 また、ビルは1機のエレベーターを備えており、快適な移動を保証します。小規模から中規模の企業にとっては、効率的なビル内の移動が、日々の業務の生産性を高める鍵となります。 立地に関しても特筆すべき点が数多くあります。南青山5丁目は、多くのクリエイティブ産業が集まるエリアであり、ビジネスの可能性を広げる絶好の機会がここにはあります。周囲には、様々な企業、アートスペース、高級レストランがあり、ビジネスだけでなく、クライアントを招待する場所としても最適です。 このビルは、ただのオフィススペース以上の価値を持っています。二葉ビルを拠点にすることで、ビジネスのイメージを高め、様々なシナジー効果を生み出すことができるでしょう。ビジネスの構築、拡大、そして成功への第一歩を、この二葉ビルで踏み出しませんか? 興味を持たれた方は、ぜひ一度、二葉ビルを訪れてみてください。あなたのビジネスの未来が、ここにはあります。
二葉ビルのこだわり
自分で探すより問い合わせる方が早いことがあります
WEB非公開物件があるから
オーナー様のご希望により「WEBでは非公開」にしている物件があります。 それらはWEBでいくら検索しても見つかりません。 先ずは条件などお知らせ頂けましたら非公開物件含め ピッタリのオフィスをご提案させて頂きます。 無理なお勧めはしておりませんので、お気軽にお問い合わせください。
対面でのご相談も受け付けております
ご来店も歓迎です
オフィス移転は社内・社外ともに非公開に行われることが殆どです。そのためアットオフィスでは、基本的に訪問によるコンサルティングを行っておりますが、ご来店の相談も歓迎です。お一人おひとりに親身にご対応させて頂きたい為、要予約とさせて頂いております。ご来店の際は先ずは下記よりご予約下さい。
青山エリアで二葉ビルに似た条件の物件
読込中...
二葉ビルと同じ最寄駅の物件
読込中...
| 取扱様態 | 仲介 |
|---|---|
| 取扱会社 | 株式会社 アットオフィス |