※このサイトに記載がある賃貸条件は、敷金・保証金などの預かり金を除き、別途消費税がかかります。
物件情報
設備詳細
| 空調 | 個別空調 |
|---|---|
| トイレ | 男女別トイレ室内 |
| 床仕様 | - |
| エレベータ | 1 基 |
| 駐車場設備 | - |
| その他 | 機械警備 / 24時間利用可 / 光ファイバー / 新耐震基準 / 東京賃料が坪11000円以下 / クリニック |
PAL音羽ビルの賃貸オフィス・事務所に関するお問い合わせ
PAL音羽ビルについて
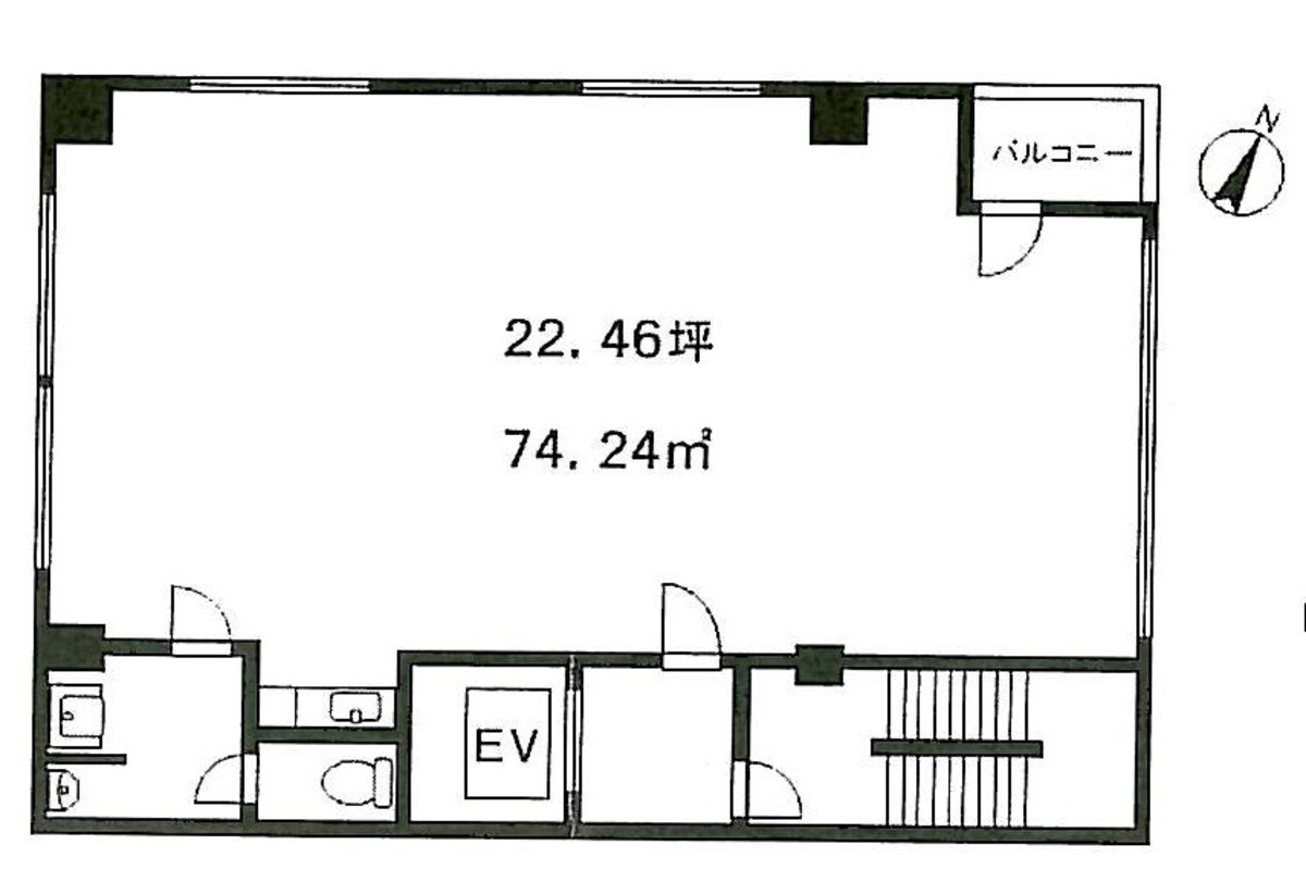
**PAL音羽ビル:文京区の静かな環境と便利なアクセスを兼ね備えた理想的なオフィススペース** 文京区音羽に位置するPAL音羽ビルは、1986年に竣工し、その後全面リニューアルを経て現代のオフィスニーズに対応した賃貸オフィス物件です。このビルは8階建てで、一階あたり約20坪の広さを誇ります。長方形に近い形状のフロアは、柱のない開放的な空間が特徴で、オフィスのレイアウトを自由に設計できる点が魅力的です。各室内にはトイレと給湯スペースが完備されており、快適な職場環境を提供します。 ビルの立地においても、PAL音羽ビルは非常に恵まれています。護国寺駅から徒歩3分という近さは、日々の通勤に便利なだけでなく、ビジネスのアクセスポイントとしても優れています。さらに、周辺には郵便局やコンビニ、飲食店が充実しており、オフィス周辺の生活インフラも整っています。このような環境は、働く人々の日常の利便性を高め、ビジネスの効率も向上させるでしょう。 セキュリティ面でも、PAL音羽ビルは高い安心感を提供します。機械警備システムが24時間稼働しており、安全に配慮されたオフィス環境が整っています。また、ビルは24時間利用可能で、夜間や休日も業務を行う企業にとっては大きなメリットです。 天井高は2570mmとゆとりがあり、個別空調システムにより一年中快適な室温が保たれます。これにより、働くスタッフの快適性が保たれるだけでなく、クリエイティブな思考や生産性の向上にも寄与します。 文京区という文教地区に位置するPAL音羽ビルは、その歴史と落ち着いた環境が、一流のビジネスイメージを高めるのに一役買っています。また、ワンフロア・ワンテナントの形式は、プライバシーと専門性を重視する企業には特に適しています。 結論として、PAL音羽ビルは、優れた立地、充実した設備、安全性、そして快適な環境を求めるビジネスに最適なオフィススペースです。文京区で新たなビジネスの拠点を設ける企業にとって、このビルは間違いなく魅力的な選択肢となるでしょう。
PAL音羽ビルのこだわり
自分で探すより問い合わせる方が早いことがあります
WEB非公開物件があるから
オーナー様のご希望により「WEBでは非公開」にしている物件があります。 それらはWEBでいくら検索しても見つかりません。 先ずは条件などお知らせ頂けましたら非公開物件含め ピッタリのオフィスをご提案させて頂きます。 無理なお勧めはしておりませんので、お気軽にお問い合わせください。
対面でのご相談も受け付けております
ご来店も歓迎です
オフィス移転は社内・社外ともに非公開に行われることが殆どです。そのためアットオフィスでは、基本的に訪問によるコンサルティングを行っておりますが、ご来店の相談も歓迎です。お一人おひとりに親身にご対応させて頂きたい為、要予約とさせて頂いております。ご来店の際は先ずは下記よりご予約下さい。
募集終了のテナント区画
| 階数 | 坪数 | 賃料 + 共益費 | 敷金/礼金敷金 礼金 | 検討 |
|---|---|---|---|---|
| 2階 | 22.46坪 (74.24m²) | 募集終了 | - | - |
| 3階 | 22.46坪 (74.25m²) | 募集終了 | - | - |
| 4階 | 22.46坪 (74.24m²) | 募集終了 | - | - |
| 5階 | 22.46坪 (74.25m²) | 募集終了 | - | - |
| 6階 | 22.46坪 (74.24m²) | 募集終了 | - | - |
読込中...
湯島/本郷/後楽園エリアでPAL音羽ビルに似た条件の物件
読込中...
| 取扱様態 | 仲介 |
|---|---|
| 取扱会社 | 株式会社 アットオフィス |