Daiwa銀座ビル6階の賃貸情報
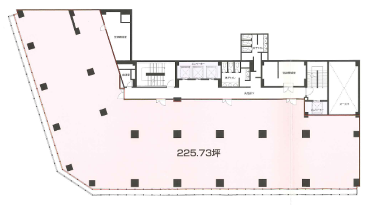
104.97 坪 (347.01m²)
※このサイトに記載がある賃貸条件は、敷金・保証金などの預かり金を除き、別途消費税がかかります。
Daiwa銀座ビルの建物概要
設備詳細
| 空調 | 個別空調 |
|---|---|
| トイレ | - |
| 床仕様 | - |
| エレベータ | 3 基 |
| 駐車場設備 | 空有 |
| その他 | 機械警備 / 24時間利用可 / 大型ビル |
Daiwa銀座ビル6階の賃貸オフィス・事務所に関するお問い合わせ
Daiwa銀座ビルについて
Daiwa銀座ビルは、中央区銀座6丁目に位置し、その輝かしい存在感で銀座のオフィスビルの中でも一際目を引く物件です。このビルは、銀座駅からわずか徒歩4分というアクセスの便利さを誇り、ビジネスの中心地としては最適の立地条件を備えています。ビルの周辺は、商業施設や飲食店が豊富にあり、ビジネスだけでなく、生活の利便性も高い地域です。 1963年の新耐震基準施行以前に竣工されたこのビルは、最新の環境配慮型デザインによる大規模リニューアルを経て、現代のオフィスニーズに応える施設へと生まれ変わりました。リニューアルにより、省エネルギー性能や快適な室内環境を実現し、企業のCSR活動や環境配慮への取り組みをサポートします。 ビル内には、3機のエレベーターが設置されており、スムーズな人の流れを確保。待ち時間のストレスを軽減し、ビジネスの効率化に寄与します。また、ビル内には駐車場も完備されており、来客や社員の車でのアクセスも容易です。空き状況などの詳細はお問い合わせいただくことで、ニーズに合わせたサポートを提供いたします。 一階にはカフェが入居しており、ビジネスの合間のリフレッシュや打ち合わせの場としても最適です。このように、Daiwa銀座ビルは、ビジネスの効率化を図るための設備が整っているだけでなく、働く人々の快適性や利便性も追求した、現代ビジネスに最適化されたオフィスビルです。 立地の良さ、最新の設備、そしてビジネスと生活の利便性を併せ持つDaiwa銀座ビルは、企業のブランドイメージ向上にも貢献します。ビジネスの成長を加速させるための理想的なオフィススペースをお探しの企業に、ぜひDaiwa銀座ビルをお勧めいたします。
Daiwa銀座ビルのこだわり
自分で探すより問い合わせる方が早いことがあります
WEB非公開物件があるから
オーナー様のご希望により「WEBでは非公開」にしている物件があります。 それらはWEBでいくら検索しても見つかりません。 先ずは条件などお知らせ頂けましたら非公開物件含め ピッタリのオフィスをご提案させて頂きます。 無理なお勧めはしておりませんので、お気軽にお問い合わせください。
対面でのご相談も受け付けております
ご来店も歓迎です
オフィス移転は社内・社外ともに非公開に行われることが殆どです。そのためアットオフィスでは、基本的に訪問によるコンサルティングを行っておりますが、ご来店の相談も歓迎です。お一人おひとりに親身にご対応させて頂きたい為、要予約とさせて頂いております。ご来店の際は先ずは下記よりご予約下さい。
銀座エリアでDaiwa銀座ビルに似た条件の物件
読込中...
Daiwa銀座ビルと同じ最寄駅の物件
読込中...
| 取扱様態 | 仲介 |
|---|---|
| 取扱会社 | 株式会社 アットオフィス |