※このサイトに記載がある賃貸条件は、敷金・保証金などの預かり金を除き、別途消費税がかかります。
物件情報
設備詳細
| 空調 | - |
|---|---|
| トイレ | - |
| 床仕様 | - |
| エレベータ | 3 基 |
| 駐車場設備 | 空有 |
| その他 | 大型ビル / 管理人常駐 / 光ファイバー / 新耐震基準 / 24時間利用可 / 機械警備 |
イーストスクエア大森の賃貸オフィス・事務所に関するお問い合わせ
イーストスクエア大森について
イーストスクエア大森ビルは、東京都品川区南大井6丁目に位置し、JR京浜東北線の大森駅から徒歩5分、大森海岸駅からも徒歩4分というアクセスの良さが魅力のオフィス賃貸物件です。1993年に竣工し、新耐震基準に基づき施工されたこの大型オフィスビルは、地上7階、地下1階建てで、基準階の賃貸オフィス面積は約350坪となっております。この物件の設備面では、エレベーターが3基設置されており、入居企業の利便性を高めています。また、ビル内に駐車場も完備されており、入居企業の来客や従業員にとっても便利な環境を提供しています。 外観は、ブラウンのタイル張りで構成され、グレード感のある賃貸オフィスビルとなっております。広々としたエントランスホールは、来客時の印象を良くするだけでなく、入居企業のブランドイメージ向上にも寄与します。オフィス空間は柱がほとんどなく、レイアウトの自由度が非常に高いのが特徴です。これにより、応接室や会議スペースなど、効率的なオフィスレイアウトが可能となります。 立地に関しては、大森駅や大森海岸駅の近くに位置しているため、通勤の利便性が高く、周辺には飲食店や商業施設が豊富にあります。特に、大森ベルポートが至近にあるため、ランチタイムやアフター5の食事、買い物にも便利です。また、近隣にはアートホテルズ大森や公園、コンビニエンスストアなど、ビジネス環境に必要な施設が充実しています。 セキュリティ面では、常駐の管理人と機械式警備を併用し、入居企業及び従業員の安全を守っています。このように、イーストスクエア大森ビルは、その立地、設備、セキュリティ面において、入居企業にとって魅力的なオプションを多数提供している賃貸オフィスビルです。南大井エリアにおけるビジネスの拠点として、または新たなオフィスの立地として、非常に魅力的な選択肢の一つと言えるでしょう。
自分で探すより問い合わせる方が早いことがあります
WEB非公開物件があるから
オーナー様のご希望により「WEBでは非公開」にしている物件があります。 それらはWEBでいくら検索しても見つかりません。 先ずは条件などお知らせ頂けましたら非公開物件含め ピッタリのオフィスをご提案させて頂きます。 無理なお勧めはしておりませんので、お気軽にお問い合わせください。
対面でのご相談も受け付けております
ご来店も歓迎です
オフィス移転は社内・社外ともに非公開に行われることが殆どです。そのためアットオフィスでは、基本的に訪問によるコンサルティングを行っておりますが、ご来店の相談も歓迎です。お一人おひとりに親身にご対応させて頂きたい為、要予約とさせて頂いております。ご来店の際は先ずは下記よりご予約下さい。
募集終了のテナント区画
| 階数 | 坪数 | 賃料 + 共益費 | 敷金/礼金敷金 礼金 | 検討 |
|---|---|---|---|---|
| 1階 | 158.41坪 (523.7m²) | 募集終了 | - | - |
| 1階 | 79.97坪 (264.37m²) | 募集終了 | - | - |
| 4階 | 348.57坪 (1152.3m²) | 募集終了 | - | - |
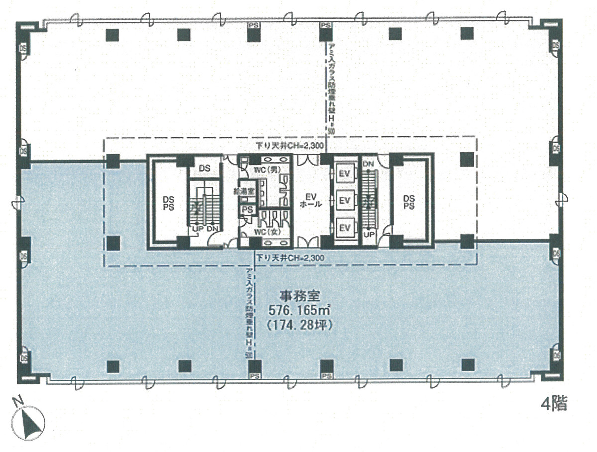
| 4階 | 174.28坪 (576.17m²) | 募集終了 | - | - |
| 5階 | 348.57坪 (1152.33m²) | 募集終了 | - | - |
| 5階 | 86.29坪 (285.28m²) | 募集終了 | - | - |
| 5階 | 174.29坪 (576.17m²) | 募集終了 | - | - |
| 6階 | 348.57坪 (1152.33m²) | 募集終了 | - | - |
| 7階 | 178.87坪 (591.3m²) | 募集終了 | - | - |
読込中...
品川/大崎/大井エリアでイーストスクエア大森に似た条件の物件
読込中...
| 取扱様態 | 仲介 |
|---|---|
| 取扱会社 | 株式会社 アットオフィス |