彦本第3ビル4階の賃貸情報
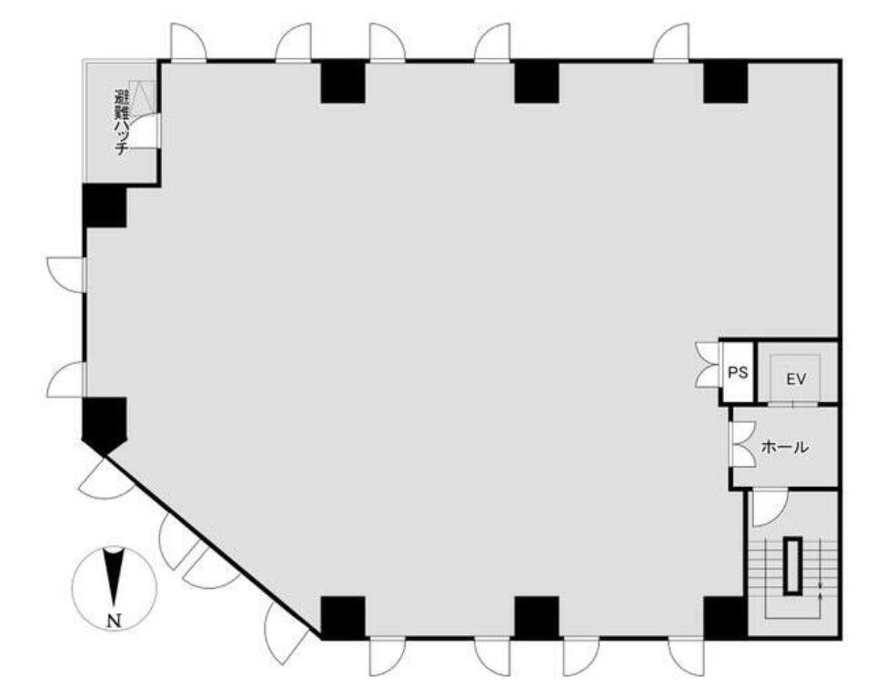
74.56 坪 (246.5m²)
※このサイトに記載がある賃貸条件は、敷金・保証金などの預かり金を除き、別途消費税がかかります。
設備詳細
| 空調 | - |
|---|---|
| トイレ | - |
| 床仕様 | - |
| エレベータ | 1 基 |
| 駐車場設備 | - |
| その他 | 24時間利用可 / 新耐震基準 / スケルトン / クリニック / 天井高3m以上 |
彦本第3ビル4階の賃貸オフィス・事務所に関するお問い合わせ
彦本第3ビルについて
彦本第3ビルは、東京都の活気あふれるエリアに位置し、特に葛西駅から徒歩2分という極めて便利な立地が魅力です。この利便性の高いロケーションは、通勤時間を短縮し、効率的な業務活動を可能にします。また、西葛西駅からも徒歩17分と、複数のアクセス手段があるため、訪問者にも優しい環境です。 1989年4月に竣工した彦本第3ビルは、時代を超えて堅固な鉄骨造の建物として、その存在感を放っています。地上7階建ての規模を持ち、オフィススペースとして十分な広さを提供します。鉄骨造の構造は耐久性があり、長期にわたり安心して使用できる信頼性を兼ね備えています。 ビルにはエレベーターが1基設置されており、フロア間の移動もスムーズです。また、個別空調システムを採用しているため、各テナントが自身のニーズに合わせた快適な室温管理を可能にし、作業環境の向上に役立ちます。 駐車場は設置されていないものの、公共交通機関の利便性が高いため、車を使用せずとも十分にアクセス可能です。周辺には飲食店や商業施設も多く、ランチタイムやアフターファイブの時間にリフレッシュできる環境が整っています。 彦本第3ビルは、その立地、構造、設備のすべてにおいて、効率性と快適さを兼ね備えた物件です。各種業務活動において、最適な環境を提供することでしょう。
自分で探すより問い合わせる方が早いことがあります
WEB非公開物件があるから
オーナー様のご希望により「WEBでは非公開」にしている物件があります。 それらはWEBでいくら検索しても見つかりません。 先ずは条件などお知らせ頂けましたら非公開物件含め ピッタリのオフィスをご提案させて頂きます。 無理なお勧めはしておりませんので、お気軽にお問い合わせください。
対面でのご相談も受け付けております
ご来店も歓迎です
オフィス移転は社内・社外ともに非公開に行われることが殆どです。そのためアットオフィスでは、基本的に訪問によるコンサルティングを行っておりますが、ご来店の相談も歓迎です。お一人おひとりに親身にご対応させて頂きたい為、要予約とさせて頂いております。ご来店の際は先ずは下記よりご予約下さい。
江戸川区エリアで彦本第3ビルに似た条件の物件
読込中...
彦本第3ビルと同じ最寄駅の物件
読込中...
| 取扱様態 | 仲介 |
|---|---|
| 取扱会社 | 株式会社 アットオフィス |