加藤ビル2階の賃貸情報
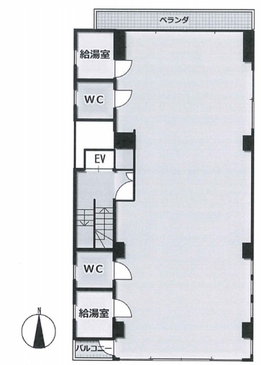
44.91 坪 (148.46m²)
※このサイトに記載がある賃貸条件は、敷金・保証金などの預かり金を除き、別途消費税がかかります。
加藤ビルの建物概要
設備詳細
| 空調 | 個別空調 |
|---|---|
| トイレ | - |
| 床仕様 | - |
| エレベータ | 1 基 |
| 駐車場設備 | - |
| その他 | 新耐震基準 / 保証金・敷金+礼金が3か月以下 / 東京賃料が坪11000円以下 |
加藤ビル2階の賃貸オフィス・事務所に関するお問い合わせ
加藤ビルについて
加藤は、上落合3丁目にあるオフィスビルです。落合駅から徒歩1分の駅近物件です。中井駅からは徒歩6分です。1991年に竣工しました。鉄筋コンクリート造により耐震性に優れています。エレベーターが1基あります。男女別トイレがあります。クリニックとして利用できます。周辺には飲食店やコンビニ、クリニックがあります。近隣には店舗ビルやマンションが立ち並んでいます。大通りに面しているため、見通しの良い場所です。専門店が並ぶ通りのため、車や自転車が利用しやすいエリアです。
加藤ビルのこだわり
自分で探すより問い合わせる方が早いことがあります
WEB非公開物件があるから
オーナー様のご希望により「WEBでは非公開」にしている物件があります。 それらはWEBでいくら検索しても見つかりません。 先ずは条件などお知らせ頂けましたら非公開物件含め ピッタリのオフィスをご提案させて頂きます。 無理なお勧めはしておりませんので、お気軽にお問い合わせください。
対面でのご相談も受け付けております
ご来店も歓迎です
オフィス移転は社内・社外ともに非公開に行われることが殆どです。そのためアットオフィスでは、基本的に訪問によるコンサルティングを行っておりますが、ご来店の相談も歓迎です。お一人おひとりに親身にご対応させて頂きたい為、要予約とさせて頂いております。ご来店の際は先ずは下記よりご予約下さい。
大久保/高田馬場エリアで加藤ビルに似た条件の物件
読込中...
加藤ビルと同じ最寄駅の物件
読込中...
| 取扱様態 | 仲介 |
|---|---|
| 取扱会社 | 株式会社 アットオフィス |