ブライトコアビルの賃料条件
| 階数 | 坪数 | 賃料 + 共益費 | 敷金/礼金敷金 礼金 | 検討 |
|---|---|---|---|---|
| 4階 | 95.31坪 (315.07m²) | 1,176,840円 (坪:12,000 円) | 10ヶ月 1ヶ月10ヶ月/1ヶ月 |
※このサイトに記載がある賃貸条件は、敷金・保証金などの預かり金を除き、別途消費税がかかります。
物件情報
設備詳細
| 空調 | - |
|---|---|
| トイレ | 男女別トイレ室外 |
| 床仕様 | - |
| エレベータ | 1 基 |
| 駐車場設備 | - |
| その他 | 機械警備 / 24時間利用可 / 新耐震基準 / クリニック |
ブライトコアビルの賃貸オフィス・事務所に関するお問い合わせ
ブライトコアビルについて
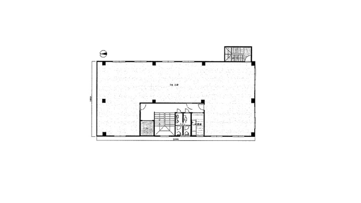
ブライトコアは、上高井戸1丁目にあるオフィスビルです。八幡山駅から徒歩2分の駅近物件です。芦花公園駅からは徒歩8分です。1978年に竣工しました。鉄筋コンクリート造により耐震性に優れています。エレベーターが1基あります。個別空調付きです。男女別トイレがあります。セキュリティ設備があります。24時間利用が可能です。周辺には飲食店やコンビニ、パーキングがあるため、急用時も慌てずに済みます。大通りに面しており、見通しの良い場所です。バス停に近い駅前付近のため、利便性の良いエリアです。
ブライトコアビルのこだわり
自分で探すより問い合わせる方が早いことがあります
WEB非公開物件があるから
オーナー様のご希望により「WEBでは非公開」にしている物件があります。 それらはWEBでいくら検索しても見つかりません。 先ずは条件などお知らせ頂けましたら非公開物件含め ピッタリのオフィスをご提案させて頂きます。 無理なお勧めはしておりませんので、お気軽にお問い合わせください。
対面でのご相談も受け付けております
ご来店も歓迎です
オフィス移転は社内・社外ともに非公開に行われることが殆どです。そのためアットオフィスでは、基本的に訪問によるコンサルティングを行っておりますが、ご来店の相談も歓迎です。お一人おひとりに親身にご対応させて頂きたい為、要予約とさせて頂いております。ご来店の際は先ずは下記よりご予約下さい。
募集終了のテナント区画
| 階数 | 坪数 | 賃料 + 共益費 | 敷金/礼金敷金 礼金 | 検討 |
|---|---|---|---|---|
| 2階 | 70.59坪 (233.35m²) | 募集終了 | - | - |
| 2階 | 27.6坪 (91.24m²) | 募集終了 | - | - |
| 3階 | 70.6坪 (233.39m²) | 募集終了 | - | - |
| 3階 | 93.6坪 (309.42m²) | 募集終了 | - | - |
| 4階 | 41.7坪 (137.85m²) | 募集終了 | - | - |
| 5階 | 70.65坪 (233.55m²) | 募集終了 | - | - |
| 6階 | 70.65坪 (233.55m²) | 募集終了 | - | - |
| 6階 | 93.6坪 (309.42m²) | 募集終了 | - | - |
読込中...
杉並区エリアでブライトコアビルに似た条件の物件
読込中...
| 取扱様態 | 仲介 |
|---|---|
| 取扱会社 | 株式会社 アットオフィス |