ホワイトハウスビル4階の賃貸情報
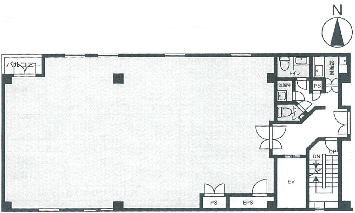
41.95 坪 (138.68m²)
※このサイトに記載がある賃貸条件は、敷金・保証金などの預かり金を除き、別途消費税がかかります。
ホワイトハウスビルの建物概要
設備詳細
| 空調 | - |
|---|---|
| トイレ | 男女別トイレ室内 / 男女別トイレ室外 |
| 床仕様 | - |
| エレベータ | 1 基 |
| 駐車場設備 | - |
| その他 | スケルトン |
ホワイトハウスビル4階の賃貸オフィス・事務所に関するお問い合わせ
ホワイトハウスビルについて
ホワイトハウスビルは、武蔵野市吉祥寺本町1丁目に位置しています。中央本線および京王電鉄井の頭線「吉祥寺駅」から徒歩でアクセス可能な建物です。周辺には多様な商業施設や事業拠点が点在しており、吉祥寺駅から至近という立地のため、駅周辺の人の流れや地域の環境を活かした事業展開が検討できます。建物は地上5階・地下1階構造で、エレベーターを1基備えています。分かりやすい住所表示や駅からの導線の良さが、来訪者や従業員の動線設計において配慮しやすい条件となっています。拠点としての使用や、来客のある事業にも利用しやすい立地が特徴です。建物構成や交通利便を重視した事業空間をお求めの法人様にご検討いただけます。詳細はお問い合わせください。
ホワイトハウスビルのこだわり
自分で探すより問い合わせる方が早いことがあります
WEB非公開物件があるから
オーナー様のご希望により「WEBでは非公開」にしている物件があります。 それらはWEBでいくら検索しても見つかりません。 先ずは条件などお知らせ頂けましたら非公開物件含め ピッタリのオフィスをご提案させて頂きます。 無理なお勧めはしておりませんので、お気軽にお問い合わせください。
対面でのご相談も受け付けております
ご来店も歓迎です
オフィス移転は社内・社外ともに非公開に行われることが殆どです。そのためアットオフィスでは、基本的に訪問によるコンサルティングを行っておりますが、ご来店の相談も歓迎です。お一人おひとりに親身にご対応させて頂きたい為、要予約とさせて頂いております。ご来店の際は先ずは下記よりご予約下さい。
近くのエリアで探してみる
エリアでホワイトハウスビルに似た条件の物件
読込中...
ホワイトハウスビルと同じ最寄駅の物件
読込中...
| 取扱様態 | 仲介 |
|---|---|
| 取扱会社 | 株式会社 アットオフィス |