※このサイトに記載がある賃貸条件は、敷金・保証金などの預かり金を除き、別途消費税がかかります。
物件情報
設備詳細
| 空調 | 個別空調 |
|---|---|
| トイレ | 男女別トイレ室内 |
| 床仕様 | OA対応床(フリーアクセス) |
| エレベータ | 2 基 |
| 駐車場設備 | 機械式駐車場 |
| その他 | 大型ビル / 光ファイバー / 新耐震基準 / 24時間利用可 / クリニック |
クアトロ室町ビルの賃貸オフィス・事務所に関するお問い合わせ
クアトロ室町ビルについて
クアトロ室町ビルは、中央区日本橋室町に鎮座する、2003年竣工のモダンかつ機能的なオフィスビルです。このビルは、耐震性に優れた構造で建てられ、地上9階建ての堂々たる姿は、ビジネスシーンにおける信頼と安定感を象徴します。また、基準階面積約210坪の広々としたオフィススペースは、様々なビジネスニーズに応える柔軟性と快適性を提供します。 特筆すべきは、クアトロ室町ビルの立地の良さです。JR神田駅から徒歩3分、新日本橋駅からも徒歩3分と、複数の鉄道路線が利用可能で、東京の主要ビジネスエリアへのアクセスが非常に便利です。周辺には飲食店が豊富にあり、ビジネスランチやアフター5の利用にも困りません。また、「コレド室町」や「日本橋三越本店」が徒歩圏内にあるため、仕事の合間や仕事後のショッピングやエンターテイメントも楽しめます。 ビルの設備面でも、クアトロ室町ビルは高いスペックを誇ります。全フロアに個別空調システムとOAフロアを完備し、24時間利用可能で、ビジネスの多様な要求に柔軟に対応します。加えて、機械警備システムと2018年に改修された屋上庭園があり、安全性と快適性を同時に提供します。駐車場も完備されており、都心でのビジネス運営に必要なすべてが揃っています。 クアトロ室町ビルは、その高い耐震性、広々としたオフィス空間、抜群の立地、そして充実した設備により、ビジネスの成功をサポートする理想的なオフィス環境を提供します。ここでは、ビジネスの可能性が広がり、日々の業務がよりスムーズで快適になることでしょう。お探しの企業様にとって、クアトロ室町ビルは、ただのオフィススペースを超えた、ビジネスの成長と発展を促進する貴重な場所になるはずです。
自分で探すより問い合わせる方が早いことがあります
WEB非公開物件があるから
オーナー様のご希望により「WEBでは非公開」にしている物件があります。 それらはWEBでいくら検索しても見つかりません。 先ずは条件などお知らせ頂けましたら非公開物件含め ピッタリのオフィスをご提案させて頂きます。 無理なお勧めはしておりませんので、お気軽にお問い合わせください。
対面でのご相談も受け付けております
ご来店も歓迎です
オフィス移転は社内・社外ともに非公開に行われることが殆どです。そのためアットオフィスでは、基本的に訪問によるコンサルティングを行っておりますが、ご来店の相談も歓迎です。お一人おひとりに親身にご対応させて頂きたい為、要予約とさせて頂いております。ご来店の際は先ずは下記よりご予約下さい。
募集終了のテナント区画
| 階数 | 坪数 | 賃料 + 共益費 | 敷金/礼金敷金 礼金 | 検討 |
|---|---|---|---|---|
| 1階 | 27坪 (89.26m²) | 募集終了 | - | - |
| 1階 | 27坪 (89.26m²) | 募集終了 | - | - |
| 1階 | 22.11坪 (73.09m²) | 募集終了 | - | - |
| 1階 | 38.75坪 (128.1m²) | 募集終了 | - | - |
| 1階 | 38.75坪 (128.1m²) | 募集終了 | - | - |
| 2階 | 132.49坪 (437.98m²) | 募集終了 | - | - |
| 3階 | 191.26坪 (632.26m²) | 募集終了 | - | - |
| 4階 | 212.35坪 (701.98m²) | 募集終了 | - | - |
| 4階 | 206.55坪 (682.8m²) | 募集終了 | - | - |
| 5階 | 206.55坪 (682.8m²) | 募集終了 | - | - |
| 7階 | 212.35坪 (701.99m²) | 募集終了 | - | - |
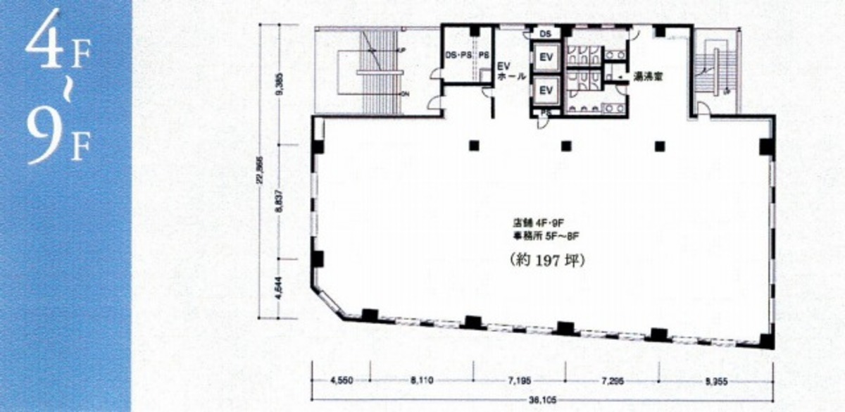
| 8階 | 196.46坪 (649.45m²) | 募集終了 | - | - |
| 9階 | 196.46坪 (649.45m²) | 募集終了 | - | - |
読込中...
近くのエリアで探してみる
八重洲/日本橋/三越前エリアでクアトロ室町ビルに似た条件の物件
読込中...
| 取扱様態 | 仲介 |
|---|---|
| 取扱会社 | 株式会社 アットオフィス |