※このサイトに記載がある賃貸条件は、敷金・保証金などの預かり金を除き、別途消費税がかかります。
物件情報
設備詳細
| 空調 | 個別空調 |
|---|---|
| トイレ | 男女共用トイレ・室内 |
| 床仕様 | - |
| エレベータ | 1 基 |
| 駐車場設備 | - |
| その他 | 光ファイバー / 新耐震基準 |
明昌KSビルの賃貸オフィス・事務所に関するお問い合わせ
明昌KSビルについて
明昌KSビルは東京都豊島区東池袋に位置する、昭和62年竣工の現代的オフィスビルです。地上10階建てのこのビルは、新耐震基準に適合しており、安心してビジネスを行うことができます。ビルの基準階坪数は約20坪で、各フロアがコンパクトながらも効率的な空間を提供しています。 ビル内の主な設備には、ウォシュレット付きトイレ、エアコン、ミニキッチンが完備されており、快適なオフィス環境が整っています。また、光回線の導入により、高速インターネット接続が可能で、ビジネスの効率も大いに向上します。 立地においても、明昌KSビルは非常に恵まれています。最寄りの向原駅から徒歩9分、さらにアクセスの良い池袋駅からは徒歩12分と、複数の交通網を利用することができるため、従業員やクライアントの通勤、訪問が非常に便利です。ビルが春日通りに面していることから、周辺には飲食店やコンビニなどの便利な施設も充実しており、日常的なニーズにも容易に対応可能です。 ビルの外観は、都市的でモダンなデザインが特徴で、企業イメージを高める要素としても優れています。1階にはエレベーターが1基設置されており、ビル内の移動もスムーズです。 このオフィスビルは、新規事業を立ち上げる企業や、規模を拡大したい中小企業に最適な空間を提供します。また、光回線の整備や耐震性の高さなど、テクノロジーと安全性を重視する企業にとっても魅力的な選択肢となるでしょう。 総じて、明昌KSビルは機能性、アクセスの良さ、安全性を兼ね備えた賃貸オフィスビルとして、多岐にわたるビジネスニーズに応えることができる優れた環境です。あなたのビジネスを次のレベルに引き上げるための理想的な場所になり得ることでしょう。
明昌KSビルのこだわり
自分で探すより問い合わせる方が早いことがあります
WEB非公開物件があるから
オーナー様のご希望により「WEBでは非公開」にしている物件があります。 それらはWEBでいくら検索しても見つかりません。 先ずは条件などお知らせ頂けましたら非公開物件含め ピッタリのオフィスをご提案させて頂きます。 無理なお勧めはしておりませんので、お気軽にお問い合わせください。
対面でのご相談も受け付けております
ご来店も歓迎です
オフィス移転は社内・社外ともに非公開に行われることが殆どです。そのためアットオフィスでは、基本的に訪問によるコンサルティングを行っておりますが、ご来店の相談も歓迎です。お一人おひとりに親身にご対応させて頂きたい為、要予約とさせて頂いております。ご来店の際は先ずは下記よりご予約下さい。
募集終了のテナント区画
| 階数 | 坪数 | 賃料 + 共益費 | 敷金/礼金敷金 礼金 | 検討 |
|---|---|---|---|---|
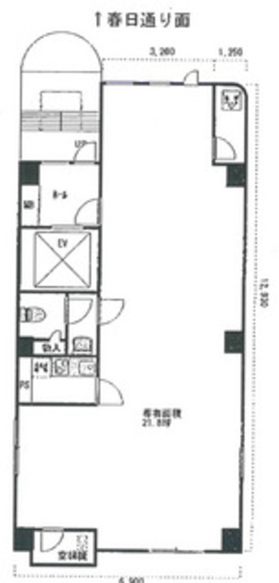
| 3階 | 21.8坪 (72.04m²) | 募集終了 | - | - |
| 5階 | 21.8坪 (72.04m²) | 募集終了 | - | - |
| 6階 | 21.8坪 (72.04m²) | 募集終了 | - | - |
| 8階 | 21.8坪 (72.04m²) | 募集終了 | - | - |
| 9階 | 21.8坪 (72.06m²) | 募集終了 | - | - |
読込中...
池袋/大塚/目白エリアで明昌KSビルに似た条件の物件
読込中...
| 取扱様態 | 仲介 |
|---|---|
| 取扱会社 | 株式会社 アットオフィス |