北原ビル8階の賃貸情報
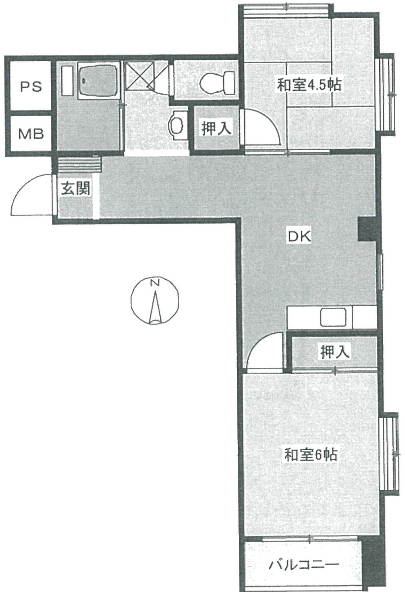
12.41 坪 (41.04m²)
※このサイトに記載がある賃貸条件は、敷金・保証金などの預かり金を除き、別途消費税がかかります。
北原ビルの建物概要
設備詳細
| 空調 | 個別空調 |
|---|---|
| トイレ | - |
| 床仕様 | - |
| エレベータ | 1 基 |
| 駐車場設備 | - |
| その他 | オートロック / 機械警備 / 24時間利用可 / 東京賃料が坪11000円以下 / 保証金・敷金+礼金が3か月以下 |
北原ビル8階の賃貸オフィス・事務所に関するお問い合わせ
北原ビルについて
「北原」は、新宿区大久保2丁目に所在する地上10階建ての建物です。副都心線「東新宿駅」から徒歩3分、大江戸線「東新宿駅」から徒歩5分、山手線「新大久保駅」から徒歩7分の位置にあり、複数路線の利用が可能です。 基準階面積は68.05㎡で、エレベーターが1基設置されています。オートロックや機械警備を備え、24時間の利用が可能です。建物は10階建てで、各階ともにフロア単位での利用計画が立てやすい構造となっています。 新宿エリアの業務拠点として、またはアクセス範囲の広い立地を活かしたオフィス利用が想定されます。複数の駅が徒歩圏内に位置し、移動や来客の際の経路選択が可能です。建物は機械警備やオートロックといったセキュリティ設備が導入されており、24時間体制での運用にも対応しています。 詳細はお問い合わせください。
北原ビルのこだわり
自分で探すより問い合わせる方が早いことがあります
WEB非公開物件があるから
オーナー様のご希望により「WEBでは非公開」にしている物件があります。 それらはWEBでいくら検索しても見つかりません。 先ずは条件などお知らせ頂けましたら非公開物件含め ピッタリのオフィスをご提案させて頂きます。 無理なお勧めはしておりませんので、お気軽にお問い合わせください。
対面でのご相談も受け付けております
ご来店も歓迎です
オフィス移転は社内・社外ともに非公開に行われることが殆どです。そのためアットオフィスでは、基本的に訪問によるコンサルティングを行っておりますが、ご来店の相談も歓迎です。お一人おひとりに親身にご対応させて頂きたい為、要予約とさせて頂いております。ご来店の際は先ずは下記よりご予約下さい。
大久保/高田馬場エリアで北原ビルに似た条件の物件
読込中...
北原ビルと同じ最寄駅の物件
読込中...
| 取扱様態 | 仲介 |
|---|---|
| 取扱会社 | 株式会社 アットオフィス |