VORT麻布maxim3階の賃貸情報
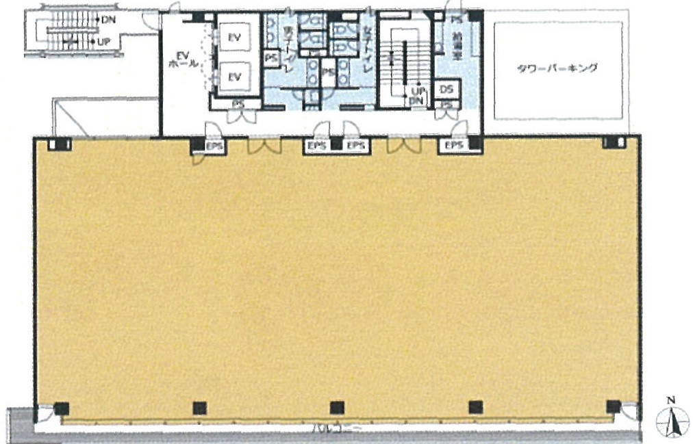
164.36 坪 (543.36m²)
※このサイトに記載がある賃貸条件は、敷金・保証金などの預かり金を除き、別途消費税がかかります。
VORT麻布maximの建物概要
設備詳細
| 空調 | 個別空調 |
|---|---|
| トイレ | 男女別トイレ室外 |
| 床仕様 | - |
| エレベータ | 2 基 |
| 駐車場設備 | - |
| その他 | 機械警備 / 大型ビル / 新耐震基準 |
VORT麻布maximについて
東京都港区東麻布に位置するVORT麻布maximは、2002年に竣工した、現代ビジネスニーズに応える賃貸オフィスビルです。このビルは、基準階約164坪の広々としたオフィススペースを提供し、企業が求める柔軟性と快適性を兼ね備えています。VORT麻布maximの最大の魅力は、その高スペックな設備にあります。個別空調システムを完備しており、各テナントは自社のニーズに応じて温度管理が可能。これにより、従業員が最適な環境下で作業でき、生産性の向上に直結します。 8階建てのこのビルは、2基のエレベーターを備え、スムーズな移動を保証。また、入念に管理されたセキュリティシステムにより、テナント企業と従業員の安全が確保されています。機械警備という形で24時間体制の安全管理を実現し、ビジネスの安心安全をサポートします。 立地においても、VORT麻布maximは非常に魅力的。都営大江戸線の赤羽橋駅から徒歩1分というアクセスの良さは、従業員やビジネスパートナーにとって大きな利点です。また、環状3号線沿いに立地しており、車でのアクセスも抜群。周辺にはコンビニや飲食店が豊富にあり、ビジネスの利便性をさらに高めています。 ビルの設備面、立地、セキュリティの三点において高い基準を満たすVORT麻布maximは、テナント企業にとって最適なオフィス環境を提供します。新耐震基準に適合した構造で、天然災害に対する安全性も確保。24時間使用可能なフレキシブルな環境は、多様なビジネススタイルに対応し、従業員のワークライフバランスの向上に寄与します。 このように、VORT麻布maximは、その高いスペックと利便性により、ビジネスの成長を支える理想的なオフィススペースを提供します。ビジネスの本拠地として、また新しい可能性を追求する場として、VORT麻布maximは、企業にとっての最高の選択となることでしょう。
自分で探すより問い合わせる方が早いことがあります
WEB非公開物件があるから
オーナー様のご希望により「WEBでは非公開」にしている物件があります。 それらはWEBでいくら検索しても見つかりません。 先ずは条件などお知らせ頂けましたら非公開物件含め ピッタリのオフィスをご提案させて頂きます。 無理なお勧めはしておりませんので、お気軽にお問い合わせください。
対面でのご相談も受け付けております
ご来店も歓迎です
オフィス移転は社内・社外ともに非公開に行われることが殆どです。そのためアットオフィスでは、基本的に訪問によるコンサルティングを行っておりますが、ご来店の相談も歓迎です。お一人おひとりに親身にご対応させて頂きたい為、要予約とさせて頂いております。ご来店の際は先ずは下記よりご予約下さい。
赤坂/六本木/麻布エリアでVORT麻布maximに似た条件の物件
読込中...
VORT麻布maximと同じ最寄駅の物件
読込中...
| 取扱様態 | 仲介 |
|---|---|
| 取扱会社 | 株式会社 アットオフィス |