※このサイトに記載がある賃貸条件は、敷金・保証金などの預かり金を除き、別途消費税がかかります。
物件情報
設備詳細
| 空調 | 個別空調 |
|---|---|
| トイレ | 男女別トイレ室内 |
| 床仕様 | OA対応床(フリーアクセス) |
| エレベータ | 1 基 |
| 駐車場設備 | - |
| その他 | 機械警備 / 大型ビル / 光ファイバー / 新耐震基準 / セットアップ / 保証金・敷金+礼金が3か月以下 |
水道橋外堀通ビルの賃貸オフィス・事務所に関するお問い合わせ
水道橋外堀通ビルについて
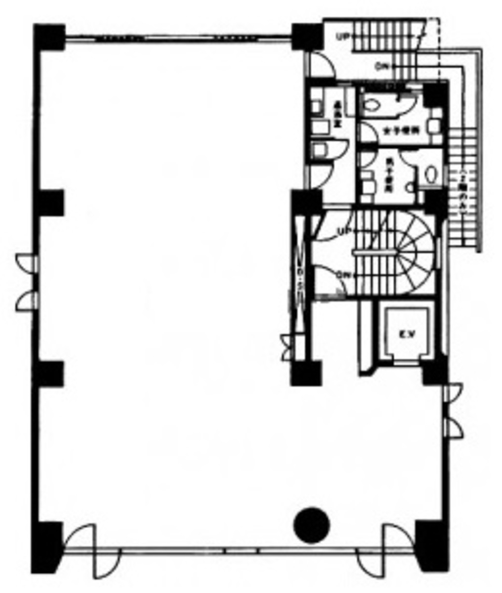
東京のビジネス中心地に位置する水道橋外堀通ビルは、1986年に竣工された9階建てのオフィス賃貸ビルです。このビルは文京区後楽に位置し、その設計は効率的な空間利用を考慮して造られています。基準階は約60坪で、L字型の間取りが特徴です。柱のない設計は、テナントにとってレイアウトの自由度を大きく高めるものであり、多様なオフィススタイルに対応可能です。 ビル内の設備は、個別空調システムにより快適な職場環境を提供します。また、床はOAフロア仕様となっており、高い配線柔軟性とアクセスの容易さが保証されています。セキュリティ面では、機械警備システムを採用しており、ビルの安全性は万全です。 立地においても水道橋外堀通ビルは魅力的です。外堀通りに面しており、向かいには東京ドームシティが位置しています。この地域はビジネスとエンターテイメントの中心地であり、日々多くの人々で賑わっています。さらに、周辺には飲食店が豊富にあり、ビジネスアフターの憩いの場としても最適です。 アクセス面では、最寄り駅の水道橋駅から徒歩数分という利便性を誇ります。また、後楽園駅も利用可能で、都内各地への移動が容易です。このように、水道橋外堀通ビルは交通の利便性と立地の良さを兼ね備えており、ビジネスの拠点としては非常に魅力的な選択肢と言えるでしょう。 ビルのエントランスは、訪れる人々に清潔感と安心感を与えるデザインであり、1階には時間貸駐車場も完備されています。このように、水道橋外堀通ビルは機能性と利便性を追求したビジネス環境を提供しており、多くの企業から高い評価を受けています。 総じて、水道橋外堀通ビルはその立地の優位性、高度な設備、そして快適なオフィス環境を提供することで、テナント企業の成功を支える理想的なビジネススペースと言えるでしょう。多様なニーズに対応するこのビルは、今後も多くのビジネスマンにとって、活動の中心地となることでしょう。
自分で探すより問い合わせる方が早いことがあります
WEB非公開物件があるから
オーナー様のご希望により「WEBでは非公開」にしている物件があります。 それらはWEBでいくら検索しても見つかりません。 先ずは条件などお知らせ頂けましたら非公開物件含め ピッタリのオフィスをご提案させて頂きます。 無理なお勧めはしておりませんので、お気軽にお問い合わせください。
対面でのご相談も受け付けております
ご来店も歓迎です
オフィス移転は社内・社外ともに非公開に行われることが殆どです。そのためアットオフィスでは、基本的に訪問によるコンサルティングを行っておりますが、ご来店の相談も歓迎です。お一人おひとりに親身にご対応させて頂きたい為、要予約とさせて頂いております。ご来店の際は先ずは下記よりご予約下さい。
募集終了のテナント区画
| 階数 | 坪数 | 賃料 + 共益費 | 敷金/礼金敷金 礼金 | 検討 |
|---|---|---|---|---|
| 7階 | 60坪 (198.35m²) | 募集終了 | - | - |
| 8階 | 60坪 (198.35m²) | 募集終了 | - | - |
読込中...
湯島/本郷/後楽園エリアで水道橋外堀通ビルに似た条件の物件
読込中...
| 取扱様態 | 仲介 |
|---|---|
| 取扱会社 | 株式会社 アットオフィス |