第7小池ビルの賃料条件
| 階数 | 坪数 | 賃料 + 共益費 | 敷金/礼金敷金 礼金 | 検討 |
|---|---|---|---|---|
| 6階 | 151坪 (499.17m²) | 2,114,000円 (坪:14,000 円) | 6ヶ月 無6ヶ月/無 |
※このサイトに記載がある賃貸条件は、敷金・保証金などの預かり金を除き、別途消費税がかかります。
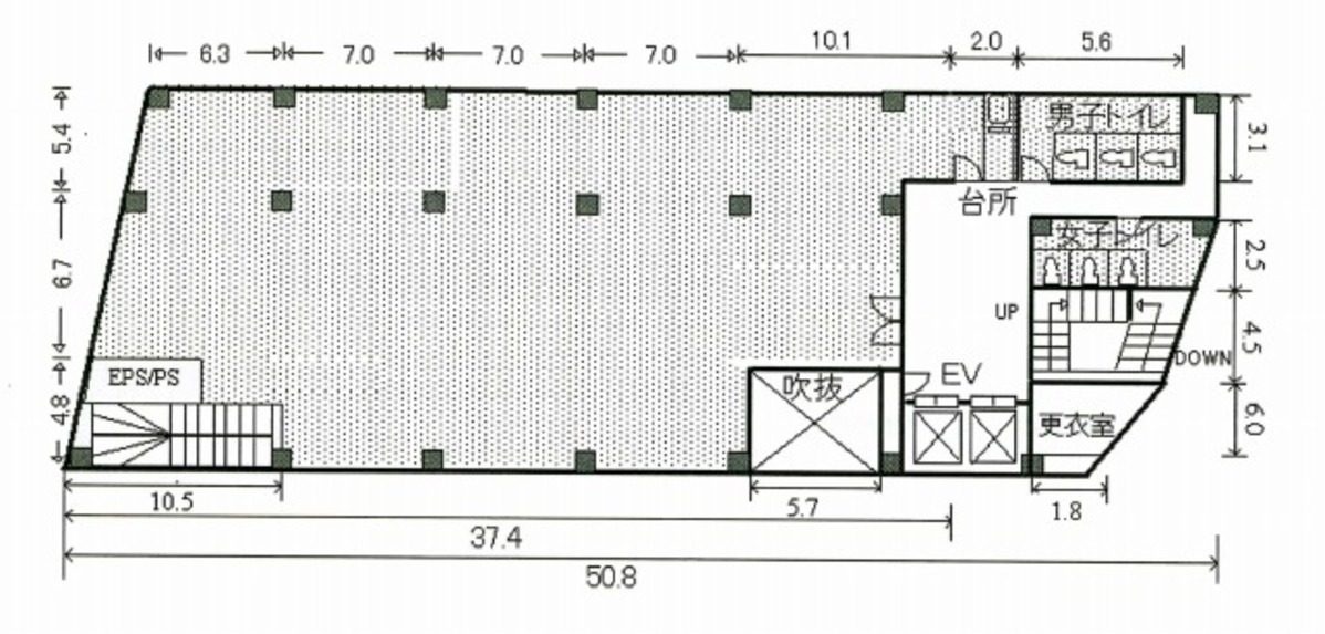
物件情報
設備詳細
| 空調 | 個別空調 |
|---|---|
| トイレ | 男女別トイレ室内 |
| 床仕様 | - |
| エレベータ | 2 基 |
| 駐車場設備 | 空有 |
| その他 | 大型ビル / 新耐震基準 / オートロック / 24時間利用可 / 光ファイバー / 管理人常駐 |
第7小池ビルの賃貸オフィス・事務所に関するお問い合わせ
第7小池ビルについて
第7小池ビルは、東京都品川区南品川2丁目に位置する、SOHOおよび事務所利用が可能なマンション型ビルです。本ビルは1987年に竣工し、新耐震基準に則った安全性の高い構造で建設されました。ビルの外観は、落ち着いたグレーのタイル造りで、品川区の街並みに溶け込むとともに、高い品質を象徴しています。 ビル内の設備については、利便性と快適性を兼ね備えています。まず、2基のエレベーターが設置されており、スムーズな移動をサポートします。また、駐車場もビル内に完備しており、空き状況に応じて利用が可能です。これにより、車を利用するビジネスパーソンにとってもアクセスしやすい環境を提供しています。 立地に関しては、最寄駅である青物横丁駅と大井町駅からのアクセスが良く、品川区内外への移動が容易です。この立地は、ビジネスの機会を広げる上で大きな利点と言えるでしょう。また、ビルの1階に地方銀行が入居しているため、金融取引の便利さも魅力の一つです。 ビルの特色として、5階から7階にかけて電気システム関連の企業が入居している点が挙げられます。このことから、同業界の企業や技術系スタートアップにとって、有益なビジネスネットワークを築きやすい環境が整っていると言えます。 第7小池ビルは、新耐震基準に則った安全な建物構造、便利な立地、充実した設備、そして特定の業界に特化したテナント構成など、ビジネスにおける多様なニーズに対応できる魅力を備えています。これらの特徴は、SOHOや事務所を求める多くの企業や個人事業主にとって、高い価値を提供することでしょう。第7小池ビルは、品川区でのビジネス拠点構築を検討している方々にとって、最適な選択肢の一つです。
自分で探すより問い合わせる方が早いことがあります
WEB非公開物件があるから
オーナー様のご希望により「WEBでは非公開」にしている物件があります。 それらはWEBでいくら検索しても見つかりません。 先ずは条件などお知らせ頂けましたら非公開物件含め ピッタリのオフィスをご提案させて頂きます。 無理なお勧めはしておりませんので、お気軽にお問い合わせください。
対面でのご相談も受け付けております
ご来店も歓迎です
オフィス移転は社内・社外ともに非公開に行われることが殆どです。そのためアットオフィスでは、基本的に訪問によるコンサルティングを行っておりますが、ご来店の相談も歓迎です。お一人おひとりに親身にご対応させて頂きたい為、要予約とさせて頂いております。ご来店の際は先ずは下記よりご予約下さい。
募集終了のテナント区画
| 階数 | 坪数 | 賃料 + 共益費 | 敷金/礼金敷金 礼金 | 検討 |
|---|---|---|---|---|
| 1階 | 139.87坪 (462.38m²) | 募集終了 | - | - |
| 2階 | 176坪 (581.82m²) | 募集終了 | - | - |
| 3階 | 189坪 (624.79m²) | 募集終了 | - | - |
| 4階 | 171坪 (565.29m²) | 募集終了 | - | - |
| 4階 | 206坪 (680.3m²) | 募集終了 | - | - |
| 7階 | 112.75坪 (372.73m²) | 募集終了 | - | - |
読込中...
品川/大崎/大井エリアで第7小池ビルに似た条件の物件
読込中...
| 取扱様態 | 仲介 |
|---|---|
| 取扱会社 | 株式会社 アットオフィス |