三宅ビルの賃料条件
| 階数 | 坪数 | 賃料 + 共益費 | 敷金/礼金敷金 礼金 | 検討 |
|---|---|---|---|---|
| 1-2階 | 190.71坪 (630.44m²) | 3,814,200円 (坪:20,000 円) | 12ヶ月 無12ヶ月/無 | |
| 3階 | 111.02坪 (367m²) | 1,498,770円 (坪:13,500 円) | 10ヶ月 無10ヶ月/無 |
※このサイトに記載がある賃貸条件は、敷金・保証金などの預かり金を除き、別途消費税がかかります。
設備詳細
| 空調 | - |
|---|---|
| トイレ | - |
| 床仕様 | - |
| エレベータ | 3 基 |
| 駐車場設備 | - |
| その他 | 機械警備 / 24時間利用可 / 大型ビル / 光ファイバー / 新耐震基準 / 管理人常駐 / 店舗可(飲食可) / スケルトン / 1階の物件 / 天井高3m以上 / 店舗可(飲食不可) |
三宅ビルの賃貸オフィス・事務所に関するお問い合わせ
三宅ビルについて
東戸塚駅徒歩2分ほどでアクセス可能な駅近物件です。SRC造の地下1階付地上9階建で1991年10月竣工の駅近くのビルになります。 大通りに面していて視認性もよく、アナウンスもしやすいです。お隣に西武百貨店の複合商業施設もあって、買い物等にも不便はございません。 開放感・清潔感を感じるエントランスや個別口調でフレキシブルな温度設定が可能です。耐荷重にも耐えれる物件で室内の中心部はガラスの造りで開けており、開放感もございます。 機械警備も完備、室外男女別トイレも設置されております。地下スペースに駐車場の機械式や平置きも完備されていて、車アクセスも良好です! エレベーターが3基ついているグレード感のある物件であり、共用廊下の中央は吹き抜けになっており、開放感を感じられる仕様で、搬入出エレベーターも1基あります。
自分で探すより問い合わせる方が早いことがあります
WEB非公開物件があるから
オーナー様のご希望により「WEBでは非公開」にしている物件があります。 それらはWEBでいくら検索しても見つかりません。 先ずは条件などお知らせ頂けましたら非公開物件含め ピッタリのオフィスをご提案させて頂きます。 無理なお勧めはしておりませんので、お気軽にお問い合わせください。
対面でのご相談も受け付けております
ご来店も歓迎です
オフィス移転は社内・社外ともに非公開に行われることが殆どです。そのためアットオフィスでは、基本的に訪問によるコンサルティングを行っておりますが、ご来店の相談も歓迎です。お一人おひとりに親身にご対応させて頂きたい為、要予約とさせて頂いております。ご来店の際は先ずは下記よりご予約下さい。
募集終了のテナント区画
| 階数 | 坪数 | 賃料 + 共益費 | 敷金/礼金敷金 礼金 | 検討 |
|---|---|---|---|---|
| 2階 | 18.09坪 (59.8m²) | 募集終了 | - | - |
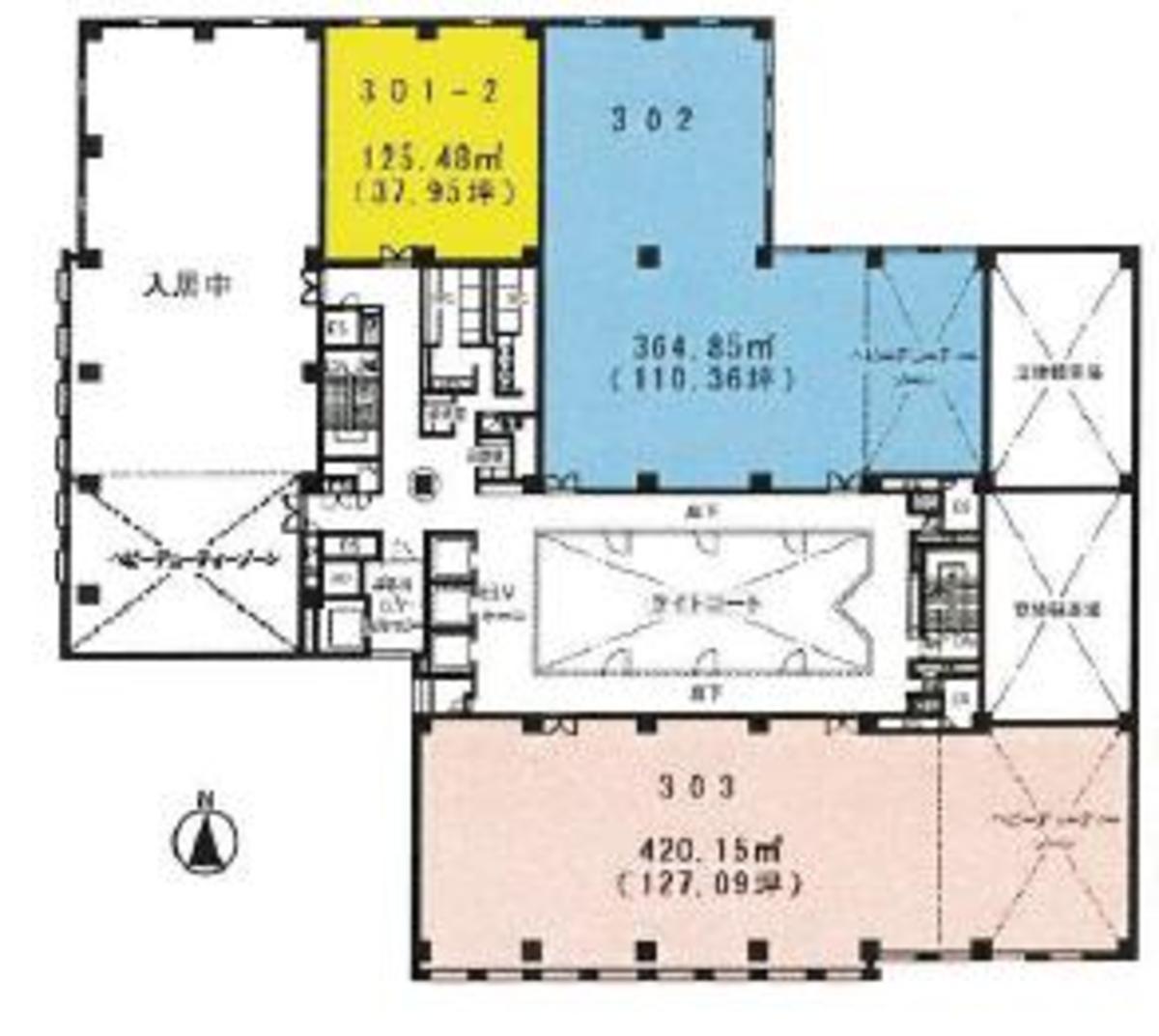
| 3階 | 110.36坪 (364.85m²) | 募集終了 | - | - |
| 3階 | 37.95坪 (125.48m²) | 募集終了 | - | - |
| 3階 | 127.09坪 (420.15m²) | 募集終了 | - | - |
| 3階 | 72.28坪 (238.94m²) | 募集終了 | - | - |
| 3階 | 38.08坪 (125.88m²) | 募集終了 | - | - |
| 4階 | 62.97坪 (208.17m²) | 募集終了 | - | - |
| 4階 | 51.33坪 (169.71m²) | 募集終了 | - | - |
| 4階 | 187.73坪 (620.6m²) | 募集終了 | - | - |
| 4階 | 20.35坪 (67.27m²) | 募集終了 | - | - |
| 4階 | 66.45坪 (219.7m²) | 募集終了 | - | - |
| 5階 | 38.08坪 (125.88m²) | 募集終了 | - | - |
| 5階 | 148.8坪 (491.9m²) | 募集終了 | - | - |
| 5階 | 110.36坪 (364.83m²) | 募集終了 | - | - |
| 5階 | 72.28坪 (238.94m²) | 募集終了 | - | - |
| 5階 | 51.33坪 (169.71m²) | 募集終了 | - | - |
| 5階 | 83.53坪 (276.13m²) | 募集終了 | - | - |
| 6階 | 37.02坪 (122.38m²) | 募集終了 | - | - |
| 6階 | 51.14坪 (169.06m²) | 募集終了 | - | - |
| 6階 | 127.09坪 (420.13m²) | 募集終了 | - | - |
| 6階 | 127.09坪 (420.13m²) | 募集終了 | - | - |
| 6階 | 73.34坪 (242.45m²) | 募集終了 | - | - |
| 6階 | 37.76坪 (124.83m²) | 募集終了 | - | - |
| 6階 | 73.34坪 (242.45m²) | 募集終了 | - | - |
| 6階 | 13.42坪 (44.36m²) | 募集終了 | - | - |
| 7階 | 143.29坪 (473.69m²) | 募集終了 | - | - |
| 7階 | 110.36坪 (364.83m²) | 募集終了 | - | - |
| 7階 | 66.22坪 (218.91m²) | 募集終了 | - | - |
| 7階 | 28.01坪 (92.6m²) | 募集終了 | - | - |
| 7階 | 113.38坪 (374.81m²) | 募集終了 | - | - |
| 7階 | 120.77坪 (399.23m²) | 募集終了 | - | - |
| 7階 | 72.28坪 (238.94m²) | 募集終了 | - | - |
| 8階 | 91.94坪 (303.93m²) | 募集終了 | - | - |
| 8階 | 72.88坪 (240.93m²) | 募集終了 | - | - |
| 8階 | 106.55坪 (352.23m²) | 募集終了 | - | - |
| 8階 | 31.72坪 (104.85m²) | 募集終了 | - | - |
| 9階 | 106.55坪 (352.23m²) | 募集終了 | - | - |
| 9階 | 89.09坪 (294.51m²) | 募集終了 | - | - |
| 9階 | 57.03坪 (188.53m²) | 募集終了 | - | - |
| 9階 | 49.52坪 (163.7m²) | 募集終了 | - | - |
読込中...
戸塚区エリアで三宅ビルに似た条件の物件
読込中...
| 取扱様態 | 仲介 |
|---|---|
| 取扱会社 | 株式会社 アットオフィス |