MBS音羽ビル9階の賃貸情報
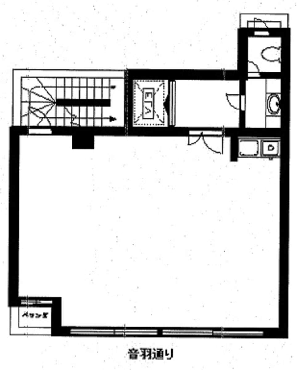
21.17 坪 (69.99m²)
※このサイトに記載がある賃貸条件は、敷金・保証金などの預かり金を除き、別途消費税がかかります。
MBS音羽ビルの建物概要
設備詳細
| 空調 | - |
|---|---|
| トイレ | - |
| 床仕様 | - |
| エレベータ | 1 基 |
| 駐車場設備 | - |
| その他 | 機械警備 / 新耐震基準 / 24時間利用可 / 東京賃料が坪11000円以下 |
MBS音羽ビルについて
文京区音羽に位置するMBS音羽ビルは、1989年に竣工された9階建てのオフィスビルで、東京メトロ有楽町線護国寺駅から徒歩3分という絶好の立地にあります。このビルは、新耐震基準に適合した構造であり、安全性に優れていることが一つの大きな特徴です。オフィススペースは約20坪から21坪の基準階面積を持ち、個別空調システムにより快適な職場環境が保たれています。 外観はガラス張りで現代的なデザインが施されており、自然光が豊富に取り入れられています。これにより、明るく開放感のあるオフィス空間が実現されています。ビル内には機械警備が完備されており、24時間使用可能なセキュリティシステムにより安心して業務を行うことができます。 利便性の高さもMBS音羽ビルの大きな魅力の一つです。護国寺駅はもちろん、江戸川橋駅も徒歩圏内にあり、都心へのアクセスが容易です。周辺には郵便局やコンビニエンスストアがあり、日常の業務に必要なサービスがすぐに利用できます。また、多彩な飲食店が立ち並ぶエリアであり、ビジネスランチやアフター5の社交場としても最適です。 オフィスの内装についても、無柱空間で正方形に近い間取りが特徴で、柔軟なレイアウト変更が可能となっています。これにより、さまざまな業種の企業に適応しやすく、効率的なオフィス運営が期待できます。また、エレベーターホールに設置された専用トイレや給湯設備が各フロアに完備されており、利便性が高く評価されています。 MBS音羽ビルは、その立地、設備、安全性を兼ね備えたオフィスビルとして、多くの企業にとって魅力的な選択肢であることは間違いありません。ビジネスの拠点としての機能性と快適性を追求する企業には特におすすめの物件です。このビルで新たなビジネスの成功を築き上げてみてはいかがでしょうか。
自分で探すより問い合わせる方が早いことがあります
WEB非公開物件があるから
オーナー様のご希望により「WEBでは非公開」にしている物件があります。 それらはWEBでいくら検索しても見つかりません。 先ずは条件などお知らせ頂けましたら非公開物件含め ピッタリのオフィスをご提案させて頂きます。 無理なお勧めはしておりませんので、お気軽にお問い合わせください。
対面でのご相談も受け付けております
ご来店も歓迎です
オフィス移転は社内・社外ともに非公開に行われることが殆どです。そのためアットオフィスでは、基本的に訪問によるコンサルティングを行っておりますが、ご来店の相談も歓迎です。お一人おひとりに親身にご対応させて頂きたい為、要予約とさせて頂いております。ご来店の際は先ずは下記よりご予約下さい。
湯島/本郷/後楽園エリアでMBS音羽ビルに似た条件の物件
読込中...
MBS音羽ビルと同じ最寄駅の物件
読込中...
| 取扱様態 | 仲介 |
|---|---|
| 取扱会社 | 株式会社 アットオフィス |