大佳板橋ビル7階の賃貸情報
面積
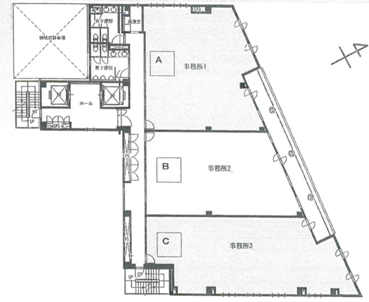
128.1 坪 (423.47m²)
賃料
共益費-
敷金 / 礼金 / 保証金-
償却-
更新料-
※このサイトに記載がある賃貸条件は、敷金・保証金などの預かり金を除き、別途消費税がかかります。
大佳板橋ビルの建物概要
設備詳細
| 空調 | 個別空調 |
|---|---|
| トイレ | 男女別トイレ |
| 床仕様 | OA対応床(フリーアクセス) |
| エレベータ | 2 基 / エレベーター有 |
| 駐車場設備 | 空有 / 敷地内駐車場 |
| その他 | 機械警備 / 24時間利用可 / 大型ビル / 光ファイバー / 大通り面する / 新耐震基準 / オートロック / フリーレント / 東京賃料が坪11000円以下 |
大佳板橋ビル7階の賃貸オフィス・事務所に関するお問い合わせ
大佳板橋ビルについて
このビルのおすすめポイント 大佳板橋ビルは、JR埼京線板橋駅と都営三田線新板橋駅からアクセスできる好立地のビルで、中山道に面しており、首都高速中央環状線が目の前にあるため、車でのアクセスも良いです。1992年竣工の新耐震ビルで、男女別お手洗い、エレベーター2台、機械警備も完備等設備の整った板橋駅の大型ビルです。
自分で探すより問い合わせる方が早いことがあります
WEB非公開物件があるから
オーナー様のご希望により「WEBでは非公開」にしている物件があります。 それらはWEBでいくら検索しても見つかりません。 先ずは条件などお知らせ頂けましたら非公開物件含め ピッタリのオフィスをご提案させて頂きます。 無理なお勧めはしておりませんので、お気軽にお問い合わせください。
WEBから条件問い合わせをする(無料)
対面でのご相談も受け付けております
ご来店も歓迎です
オフィス移転は社内・社外ともに非公開に行われることが殆どです。そのためアットオフィスでは、基本的に訪問によるコンサルティングを行っておりますが、ご来店の相談も歓迎です。お一人おひとりに親身にご対応させて頂きたい為、要予約とさせて頂いております。ご来店の際は先ずは下記よりご予約下さい。
来店予約をする
板橋区エリアで大佳板橋ビルに似た条件の物件
読込中...
大佳板橋ビルと同じ最寄駅の物件
読込中...
| 取扱様態 | 仲介 |
|---|---|
| 取扱会社 | 株式会社 アットオフィス |