神宮前董友ビルⅠ7階の賃貸情報
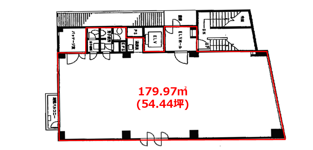
54.44 坪 (179.96m²)
お問合せ下さい (坪:-)
※このサイトに記載がある賃貸条件は、敷金・保証金などの預かり金を除き、別途消費税がかかります。
神宮前董友ビルⅠの建物概要
設備詳細
| 空調 | 個別空調 |
|---|---|
| トイレ | 男女別トイレ室内 |
| 床仕様 | OA対応床(フリーアクセス) |
| エレベータ | 1 基 |
| 駐車場設備 | - |
| その他 | 24時間利用可 / 光ファイバー / 新耐震基準 |
神宮前董友ビルⅠ7階の賃貸オフィス・事務所に関するお問い合わせ
神宮前董友ビルⅠについて
原宿董友ビルは、ビジネスの舞台として理想的な環境を提供します。1986年に新耐震基準に基づいて施工されたこの物件は、安全性と機能美を兼ね備えています。まず、立地の優位性について触れずにはいられません。渋谷区神宮前6丁目、つまり東京のファッションとカルチャーの中心地、原宿に位置しています。明治神宮前駅から徒歩わずか2分というアクセスの良さは、従業員やクライアントの利便性を大幅に向上させます。また、明治通りに面しているため、視認性が非常に高く、企業のブランド価値を高めることにも繋がります。 このビルのもう一つの特徴は、ワンフロア1テナント制を採用している点です。この独自の構造は、テナントにプライバシーと専有性を提供し、自社のアイデンティティを反映した空間作りを可能にします。オフィス環境は、従業員の生産性や創造性に直接影響を与えるため、このような特徴は非常に価値が高いと言えます。 さらに、ビル内に駐車場が完備されていることも見逃せません。都心では珍しいこの設備は、車でのアクセスを重視するテナントにとって大きな魅力です。事前に空き状況を確認することが可能ですので、利便性を確保しながらプランニングできます。 エレベーターは1機設置されており、スムーズな移動をサポートします。建物の規模に見合ったこの設備は、日常のオフィスライフを快適にします。 周辺環境も魅力的です。アパレル関連のショップが多く密集するこのエリアは、常に最新のトレンドが息づいています。事務所を出てすぐに表参道に出られる立地は、ビジネスだけでなく、社外での活動にも刺激を与えてくれるでしょう。 原宿董友ビルは、安全性、利便性、プライバシー、そして文化的な豊かさを兼ね備えた、ビジネスのための理想的な空間です。ファッションの発信地原宿で、独自のビジネスを展開したい企業にとって、このビルは最適な選択肢となるでしょう。是非、その可能性を探るためにも、お近くにお越しの際はご内見ください。
自分で探すより問い合わせる方が早いことがあります
WEB非公開物件があるから
オーナー様のご希望により「WEBでは非公開」にしている物件があります。 それらはWEBでいくら検索しても見つかりません。 先ずは条件などお知らせ頂けましたら非公開物件含め ピッタリのオフィスをご提案させて頂きます。 無理なお勧めはしておりませんので、お気軽にお問い合わせください。
対面でのご相談も受け付けております
ご来店も歓迎です
オフィス移転は社内・社外ともに非公開に行われることが殆どです。そのためアットオフィスでは、基本的に訪問によるコンサルティングを行っておりますが、ご来店の相談も歓迎です。お一人おひとりに親身にご対応させて頂きたい為、要予約とさせて頂いております。ご来店の際は先ずは下記よりご予約下さい。
表参道/外苑前エリアで神宮前董友ビルⅠに似た条件の物件
読込中...
神宮前董友ビルⅠと同じ最寄駅の物件
読込中...
| 取扱様態 | 仲介 |
|---|---|
| 取扱会社 | 株式会社 アットオフィス |