※このサイトに記載がある賃貸条件は、敷金・保証金などの預かり金を除き、別途消費税がかかります。
物件情報
設備詳細
| 空調 | 個別空調 |
|---|---|
| トイレ | 男女別トイレ室外 |
| 床仕様 | OA対応床(フリーアクセス) |
| エレベータ | 3 基 |
| 駐車場設備 | - |
| その他 | 機械警備 |
ヒューリックJP赤坂ビルの賃貸オフィス・事務所に関するお問い合わせ
ヒューリックJP赤坂ビルについて
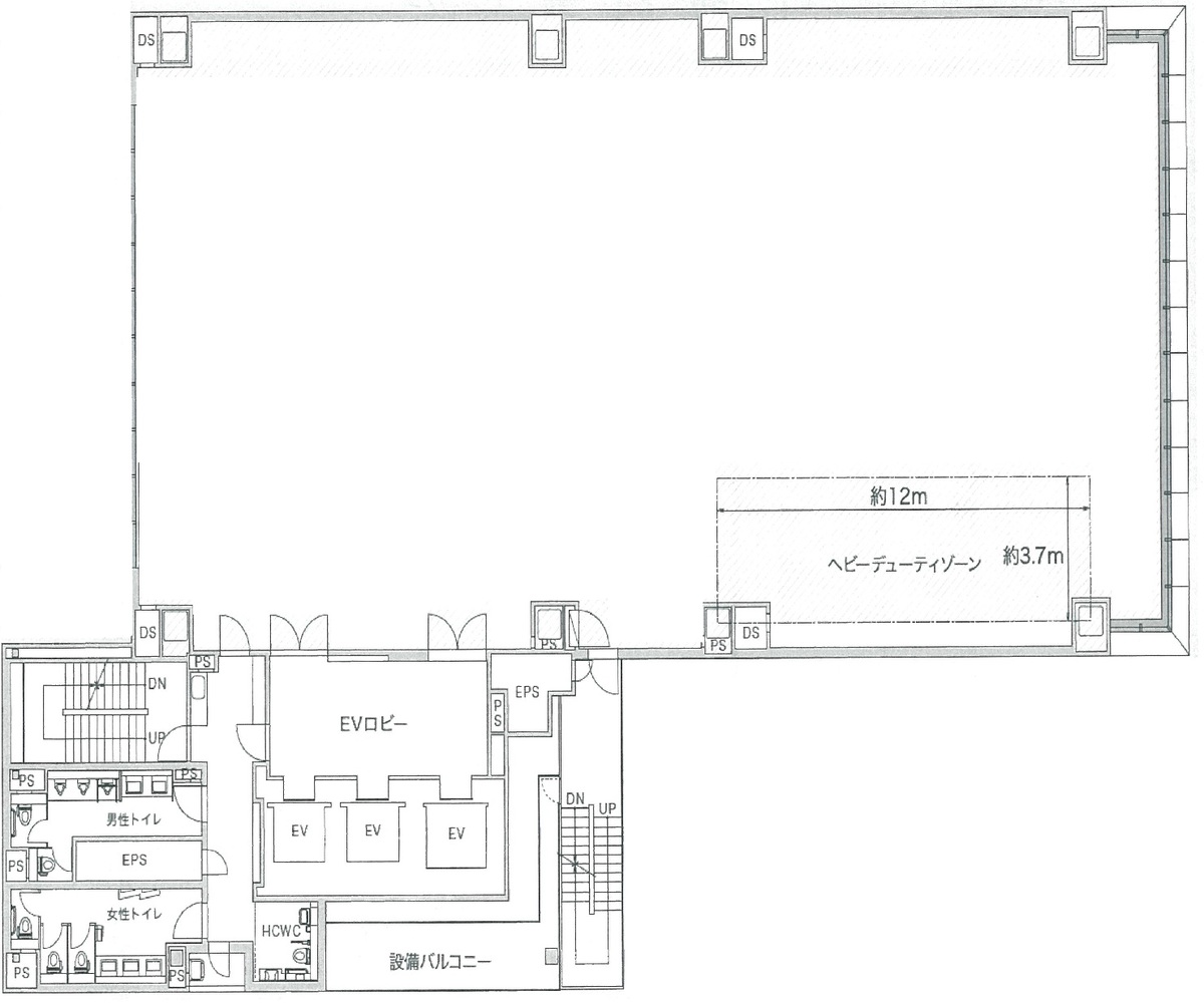
2020年に竣工されたヒューリックJP赤坂ビルは、現代のビジネスニーズに対応した先進的なオフィス環境を提供します。港区赤坂、外堀通り沿いに位置するこの物件は、その立地と設備で注目を集めています。非接触型ICカードによるセキュリティシステムや、自然素材を用いた暖かみのあるエントランスデザインは、働く人々にとって安心かつ快適な環境を提供します。 立地に関して言えば、ヒューリックJP赤坂ビルは、東京メトロ銀座線・南北線の溜池山王駅からわずか徒歩2分、さらには東京メトロ千代田線の赤坂駅や国会議事堂前駅からも徒歩5分圏内と、複数の駅にアクセスしやすい絶好の立地条件を誇ります。このように、主要な交通網への素晴らしいアクセスは、従業員やクライアントにとって大きな利点となります。 12階建てのこのビルは、基準階約165坪の広大なスペースを提供し、各フロアはワンフロア・ワンテナント制を採用しています。これにより、企業は自社の文化やアイデンティティに合わせたカスタマイズが可能です。また、エレベーターは3基設置されており、高い利便性と効率的な移動を実現しています。加えて、免震構造の採用により、万一の地震発生時も安全性が保たれる設計になっております。 ビルの周辺環境も魅力的です。多彩な飲食店が徒歩圏内に存在し、日々のランチやビジネスディナーに便利です。また、ファミリーマートや三井住友銀行、日枝神社などが近くに位置しており、日常の様々なニーズに応えることができます。 ヒューリックJP赤坂ビルは、最新の設備と利便性の高い立地、安全性への配慮を兼ね備えたビルです。これらの特徴は、働く人々の生産性と満足度を高め、ビジネスの発展に貢献するでしょう。立地、設備、サービスの全てにおいて、ヒューリックJP赤坂ビルは、あなたのビジネスを次のレベルへと導く理想的な選択肢です。
ヒューリックJP赤坂ビルのこだわり
自分で探すより問い合わせる方が早いことがあります
WEB非公開物件があるから
オーナー様のご希望により「WEBでは非公開」にしている物件があります。 それらはWEBでいくら検索しても見つかりません。 先ずは条件などお知らせ頂けましたら非公開物件含め ピッタリのオフィスをご提案させて頂きます。 無理なお勧めはしておりませんので、お気軽にお問い合わせください。
対面でのご相談も受け付けております
ご来店も歓迎です
オフィス移転は社内・社外ともに非公開に行われることが殆どです。そのためアットオフィスでは、基本的に訪問によるコンサルティングを行っておりますが、ご来店の相談も歓迎です。お一人おひとりに親身にご対応させて頂きたい為、要予約とさせて頂いております。ご来店の際は先ずは下記よりご予約下さい。
募集終了のテナント区画
| 階数 | 坪数 | 賃料 + 共益費 | 敷金/礼金敷金 礼金 | 検討 |
|---|---|---|---|---|
| 3階 | 165.25坪 (546.28m²) | 募集終了 | - | - |
| 4階 | 165.25坪 (546.28m²) | 募集終了 | - | - |
| 5階 | 165.25坪 (546.28m²) | 募集終了 | - | - |
| 6階 | 165.25坪 (546.28m²) | 募集終了 | - | - |
| 7階 | 165.25坪 (546.28m²) | 募集終了 | - | - |
| 8階 | 165.25坪 (546.28m²) | 募集終了 | - | - |
| 9階 | 165.25坪 (546.28m²) | 募集終了 | - | - |
| 10階 | 165.25坪 (546.28m²) | 募集終了 | - | - |
| 12階 | 165.25坪 (546.28m²) | 募集終了 | - | - |
読込中...
赤坂/六本木/麻布エリアでヒューリックJP赤坂ビルに似た条件の物件
読込中...
| 取扱様態 | 仲介 |
|---|---|
| 取扱会社 | 株式会社 アットオフィス |