TQ茅場町7階の賃貸情報
52.61 坪 (173.94m²)
※このサイトに記載がある賃貸条件は、敷金・保証金などの預かり金を除き、別途消費税がかかります。
TQ茅場町の建物概要
設備詳細
| 空調 | 個別空調 |
|---|---|
| トイレ | 男女別トイレ室内 |
| 床仕様 | OA対応床(フリーアクセス) |
| エレベータ | - |
| 駐車場設備 | - |
| その他 | 機械警備 / 24時間利用可 / 光ファイバー / セットアップ / フリーレント |
部屋の雰囲気
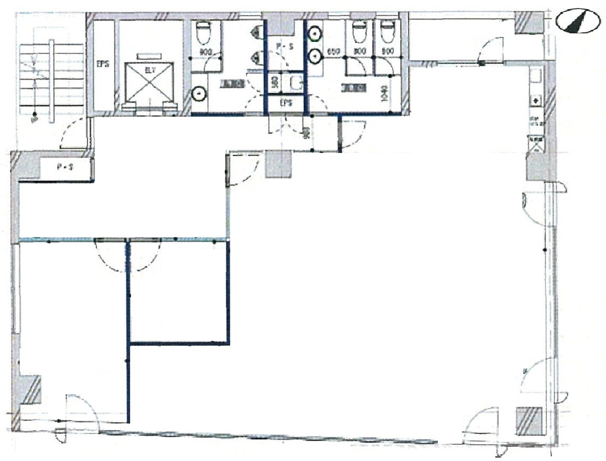
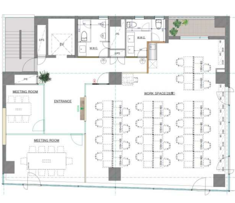
レイアウト図面
室内写真
室内写真
室内写真
室内写真
室内写真
室内写真
お手洗い
TQ茅場町について
【TQ茅場町ビルのご紹介】 今日は中央区日本橋蛎殻町に位置する「TQ茅場町ビル」のご紹介をさせていただきます。このビルは、ビジネスの中心地である東京都中央区にありながら、快適なオフィス環境と優れたアクセス性を併せ持つ、非常に魅力的な賃貸オフィス物件です。 まず、立地の良さに触れずにはいられません。TQ茅場町は、東京メトロ半蔵門線「水天宮前駅」から徒歩3分、日比谷線・東西線「茅場町駅」からは徒歩5分の場所にあります。さらに、都営浅草線「人形町駅」も徒歩5分圏内と、3駅利用可能な立地はビジネスの機動性を高めます。車通りの多い新大橋通り沿いに位置しており、視認性が高いことも特徴の一つです。周辺には飲食店やコンビニエンスストアが充実しており、日常の利便性が高い点も見逃せません。 次に、ビルの構造および設備についてです。TQ茅場町は、1989年に竣工された鉄骨鉄筋コンクリート造の地下1階地上9階建てのビルで、新耐震基準にも適合しています。基準階の貸室面積は約50坪となっており、広々とした空間でのオフィス利用が可能です。オフィス内は個別空調、OAフロア完備で、光ファイバー対応の高速インターネット環境も整っています。また、24時間利用可能な機械警備システムや、男女別トイレ等の設備も充実しており、セキュリティと快適性に優れています。 ビルのデザインにも注目してください。2019年には全面リニューアル工事が実施され、ハイセンスなデザインで現代のビジネスニーズに応える空間へと生まれ変わりました。エントランスや共有部分の洗練されたデザインは、訪れる人々に良い印象を与え、企業イメージの向上にも貢献するでしょう。 TQ茅場町は、複数の駅が徒歩圏内にあり、ビジネスの拠点としてのアクセスの良さ、さらには優れた設備と快適なオフィス環境を求める企業に最適な物件です。日々の業務がよりスムーズに、かつ充実したものになるよう、TQ茅場町でのオフィスライフをぜひご検討ください。
TQ茅場町のこだわり
自分で探すより問い合わせる方が早いことがあります
WEB非公開物件があるから
オーナー様のご希望により「WEBでは非公開」にしている物件があります。 それらはWEBでいくら検索しても見つかりません。 先ずは条件などお知らせ頂けましたら非公開物件含め ピッタリのオフィスをご提案させて頂きます。 無理なお勧めはしておりませんので、お気軽にお問い合わせください。
対面でのご相談も受け付けております
ご来店も歓迎です
オフィス移転は社内・社外ともに非公開に行われることが殆どです。そのためアットオフィスでは、基本的に訪問によるコンサルティングを行っておりますが、ご来店の相談も歓迎です。お一人おひとりに親身にご対応させて頂きたい為、要予約とさせて頂いております。ご来店の際は先ずは下記よりご予約下さい。
近くのエリアで探してみる
人形町/馬喰町/浜町エリアでTQ茅場町に似た条件の物件
読込中...
TQ茅場町と同じ最寄駅の物件
読込中...
| 取扱様態 | 仲介 |
|---|---|
| 取扱会社 | 株式会社 アットオフィス |