SNビル1階の賃貸情報
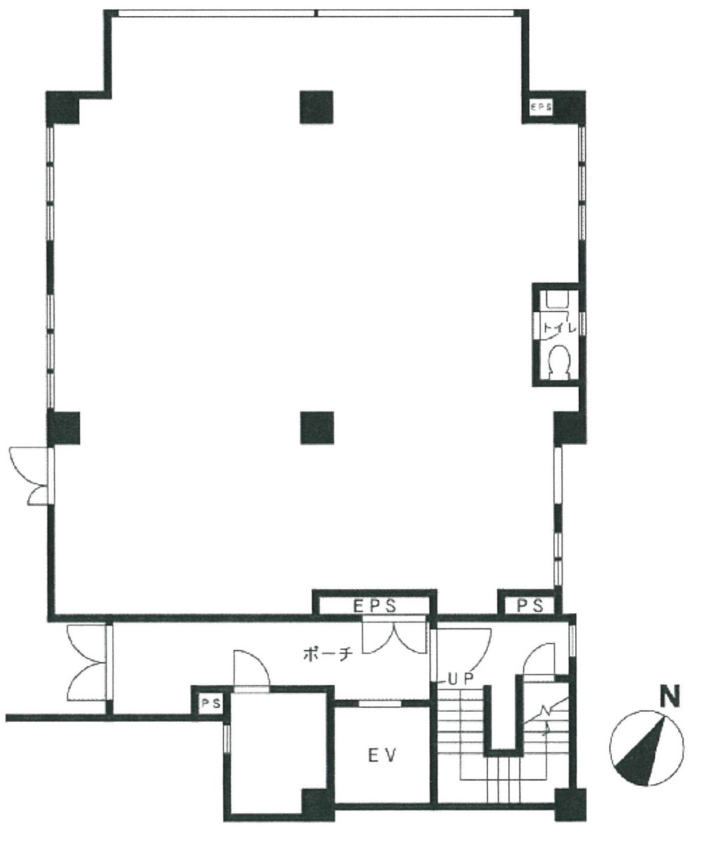
41.01 坪 (135.58m²)
※このサイトに記載がある賃貸条件は、敷金・保証金などの預かり金を除き、別途消費税がかかります。
SNビルの建物概要
設備詳細
| 空調 | - |
|---|---|
| トイレ | - |
| 床仕様 | - |
| エレベータ | 1 基 |
| 駐車場設備 | 空無 |
| その他 | オートロック / 機械警備 / スケルトン / 1階の物件 |
SNビルについて
町田市成瀬が丘2丁目に位置する「SN」は、地上5階建ての事業用賃貸物件です。横浜線「成瀬駅」から徒歩1分、東急田園都市線「長津田駅」から徒歩2分の距離にあり、複数路線の利用が可能です。田園都市線「つくし野駅」も徒歩圏内となっています。 建物にはオートロックと機械警備が導入されており、入退館管理やセキュリティを重視した設計がなされています。エレベーターが1基設置されており、上階への移動も容易です。事務所や店舗など様々な事業用途での利用を想定した設計となっており、フロアごとに分割利用や一棟利用など、利用方法についてもご相談いただけます。 「SN」は、周辺環境や交通の選択肢を重視する法人に向けた物件です。駅からのアクセス経路も分かりやすく、従業員や来訪者の動線設計がしやすい立地です。事務所拠点やサービス拠点など、駅近接の特性を活かした事業展開にもご検討いただけます。 詳細はお問い合わせください。
SNビルのこだわり
自分で探すより問い合わせる方が早いことがあります
WEB非公開物件があるから
オーナー様のご希望により「WEBでは非公開」にしている物件があります。 それらはWEBでいくら検索しても見つかりません。 先ずは条件などお知らせ頂けましたら非公開物件含め ピッタリのオフィスをご提案させて頂きます。 無理なお勧めはしておりませんので、お気軽にお問い合わせください。
対面でのご相談も受け付けております
ご来店も歓迎です
オフィス移転は社内・社外ともに非公開に行われることが殆どです。そのためアットオフィスでは、基本的に訪問によるコンサルティングを行っておりますが、ご来店の相談も歓迎です。お一人おひとりに親身にご対応させて頂きたい為、要予約とさせて頂いております。ご来店の際は先ずは下記よりご予約下さい。
町田市エリアでSNビルに似た条件の物件
読込中...
SNビルと同じ最寄駅の物件
読込中...
| 取扱様態 | 仲介 |
|---|---|
| 取扱会社 | 株式会社 アットオフィス |