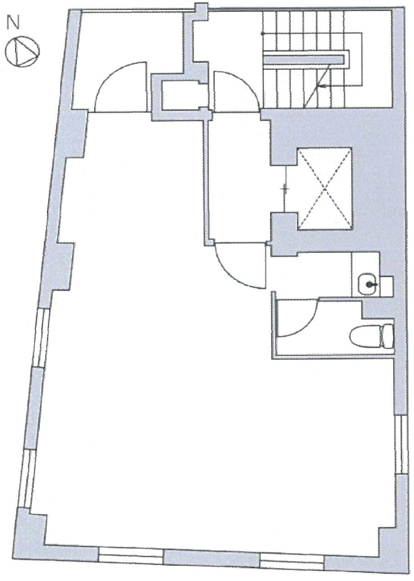
BND bldg.6階の賃貸情報
10.73 坪 (35.87m²)
※このサイトに記載がある賃貸条件は、敷金・保証金などの預かり金を除き、別途消費税がかかります。
BND bldg.の建物概要
設備詳細
| 空調 | - |
|---|---|
| トイレ | - |
| 床仕様 | - |
| エレベータ | 1 基 |
| 駐車場設備 | - |
| その他 | 機械警備 / 光ファイバー |
BND bldg.について
### 目黒区大橋に佇む「BNDビル」:ビジネスの新たな拠点 東京都目黒区の大橋1丁目に位置する「BNDビル」は、ビジネスの中心地としての利便性と快適なオフィス環境を兼ね備えた賃貸オフィスビルです。このビルは、ビジネスの成長をサポートするための様々な特徴と設備を備えています。 #### 立地の利便性 BNDビルの所在地である大橋1丁目は、目黒区の中でも特に交通の便に優れたエリアです。近隣には主要な鉄道駅やバス停が点在し、都心部へのアクセスも良好です。特に、渋谷や恵比寿へのアクセスが容易で、ビジネスの中心地へも短時間で移動できます。また、周辺にはカフェやレストラン、コンビニエンスストアなどの飲食・商業施設が充実しており、働く人々にとって非常に便利な環境が整っています。 #### 設備と構造 BNDビルは、モダンなデザインと機能性を兼ね備えた建物です。ビル内にはエレベーターが1機設置されており、各階への移動がスムーズです。オフィスフロアは広々としており、自由なレイアウトが可能なため、企業のニーズに合わせたオフィス設計が可能です。また、ビル内は適切に管理されており、清潔で快適な作業環境が保たれています。 #### 独自の魅力とビジネスの利点 BNDビルの最大の魅力は、その立地と設備に加えて、ビジネスの成長を支援する環境が整っている点です。例えば、ビル周辺の大橋エリアは、クリエイティブな企業やスタートアップが集まる地域として注目されており、新たなビジネスチャンスが期待できます。さらに、地域コミュニティやビジネスネットワークが活発であり、コラボレーションやパートナーシップの機会が豊富に存在します。 また、BNDビルはセキュリティ面でも優れた対策が施されており、安心して業務に集中できる環境が整っています。ビル全体の管理体制も非常にしっかりしており、トラブルやメンテナンスの際には迅速な対応が期待できます。 #### 結論 大橋1丁目に位置するBNDビルは、その立地の利便性、充実した設備、そしてビジネスを支援する環境が整った理想的なオフィス賃貸物件です。このビルを拠点にすることで、ビジネスの更なる成長と発展が期待できます。提供される快適な作業環境と共に、BNDビルでの新たなビジネスの可能性をぜひご検討ください。
BND bldg.のこだわり
自分で探すより問い合わせる方が早いことがあります
WEB非公開物件があるから
オーナー様のご希望により「WEBでは非公開」にしている物件があります。 それらはWEBでいくら検索しても見つかりません。 先ずは条件などお知らせ頂けましたら非公開物件含め ピッタリのオフィスをご提案させて頂きます。 無理なお勧めはしておりませんので、お気軽にお問い合わせください。
対面でのご相談も受け付けております
ご来店も歓迎です
オフィス移転は社内・社外ともに非公開に行われることが殆どです。そのためアットオフィスでは、基本的に訪問によるコンサルティングを行っておりますが、ご来店の相談も歓迎です。お一人おひとりに親身にご対応させて頂きたい為、要予約とさせて頂いております。ご来店の際は先ずは下記よりご予約下さい。
近くのエリアで探してみる
目黒/中目黒/青葉台エリアでBND bldg.に似た条件の物件
読込中...
BND bldg.と同じ最寄駅の物件
読込中...
| 取扱様態 | 仲介 |
|---|---|
| 取扱会社 | 株式会社 アットオフィス |