文京グリーンコートセンターオフィスの賃料条件
| 階数 | 坪数 | 賃料 + 共益費 | 敷金/礼金敷金 礼金 | 検討 |
|---|---|---|---|---|
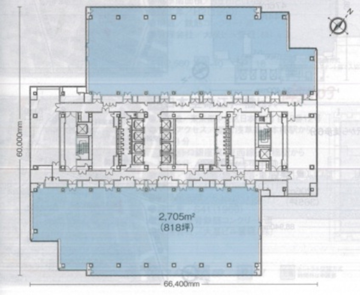
| 10階 | 301坪 (995.89m²) | お問合せ下さい (坪:-) | 相談 無相談/無 | |
| 17階 | 146坪 (482.64m²) | お問合せ下さい (坪:-) | 相談 無相談/無 | |
| 18階 | 37坪 (122.15m²) | お問合せ下さい (坪:-) | 相談 無相談/無 |
※このサイトに記載がある賃貸条件は、敷金・保証金などの預かり金を除き、別途消費税がかかります。
物件情報
設備詳細
| 空調 | 個別空調 / セントラル空調 |
|---|---|
| トイレ | 男女別トイレ |
| 床仕様 | OA対応床(フリーアクセス) |
| エレベータ | 20 基 / エレベーター有 |
| 駐車場設備 | 空有 / 機械式駐車場 / 敷地内駐車場 |
| その他 | 大型ビル / 高層ビル / 機械警備 / 24時間利用可 / 新耐震基準 |
文京グリーンコートセンターオフィスの賃貸オフィス・事務所に関するお問い合わせ
文京グリーンコートセンターオフィスについて
文京グリーンコートセンターオフィスは、東京都文京区本駒込に位置する地上23階、地下3階建ての大型オフィスビルです。この1998年竣工のビルは、新耐震基準に適合しており、充実した設備と共にビジネス環境の最先端を体現しています。最寄りの千石駅から徒歩わずか3分という抜群のアクセスの良さを誇り、周辺には文京エリアの豊かな緑や歴史ある六義園が広がり、都市生活と自然が調和する環境が魅力です。 ビルの基準階面積は818坪に及び、広々としたフロアは多様なビジネスニーズに対応可能です。高い天井とOAフロアを備え、最新のLED照明システムにより、快適なオフィス環境を提供しています。また、ビル内には20基のエレベーターが設置され、大人数の移動もスムーズに行える設計となっています。 文京グリーンコートセンターオフィスは、オフィスだけでなく、住居棟や商業施設棟も併設する複合施設としての役割を果たしており、ビル内には食堂や貸会議室、郵便局、銀行ATMといった便利な施設が整っています。これらの設備はビジネスの効率化はもちろん、働く人々の生活の質をも向上させる要素となっています。 ビルの設計においては、緑豊かな外観と共に、広いエントランスホールが訪れる人々を迎え入れます。このエントランスは、ビジネスの顔としての役割を果たすことに加え、開放感あふれる空間でありながらもプライバシーが保たれるよう配慮されています。 周辺環境としては、文京区は教育機関や文化施設が豊富で、ビジネスだけでなく学術や研究の拠点としても最適な地域です。また、近隣には多数の飲食店があり、ビジネスランチやアフター5の社交の場としても恵まれています。六義園の近くに位置することから、オフィスワーカーにとってはリフレッシュできる空間としても非常に価値があります。 文京グリーンコートセンターオフィスは、これらすべての要素が融合することで、単なるオフィス施設を超えた、働く人々のための生活とビジネスが共存する場として提供されています。ビジネスの成功と働く環境の質の向上を求める企業にとって、文京グリーンコートセンターオフィスは最適な選択肢と言えるでしょう。
自分で探すより問い合わせる方が早いことがあります
WEB非公開物件があるから
オーナー様のご希望により「WEBでは非公開」にしている物件があります。 それらはWEBでいくら検索しても見つかりません。 先ずは条件などお知らせ頂けましたら非公開物件含め ピッタリのオフィスをご提案させて頂きます。 無理なお勧めはしておりませんので、お気軽にお問い合わせください。
対面でのご相談も受け付けております
ご来店も歓迎です
オフィス移転は社内・社外ともに非公開に行われることが殆どです。そのためアットオフィスでは、基本的に訪問によるコンサルティングを行っておりますが、ご来店の相談も歓迎です。お一人おひとりに親身にご対応させて頂きたい為、要予約とさせて頂いております。ご来店の際は先ずは下記よりご予約下さい。
募集終了のテナント区画
読込中...
白山/千石/根津エリアで文京グリーンコートセンターオフィスに似た条件の物件
読込中...
| 取扱様態 | 仲介 |
|---|---|
| 取扱会社 | 株式会社 アットオフィス |