吉村ビル3階の賃貸情報
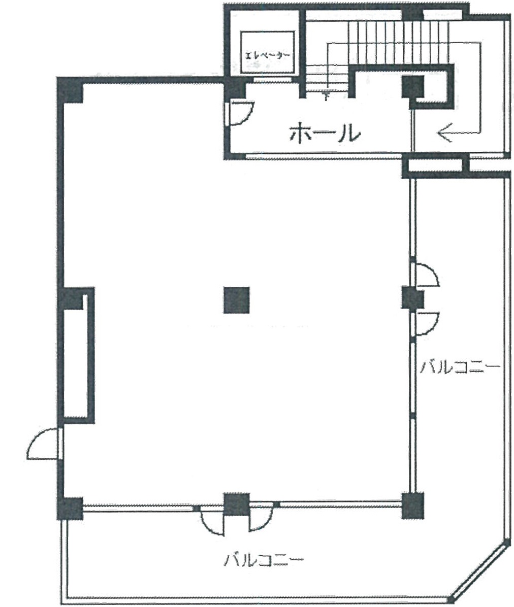
38.63 坪 (127.72m²)
410,000円 (坪:10,613 円)
※このサイトに記載がある賃貸条件は、敷金・保証金などの預かり金を除き、別途消費税がかかります。
吉村ビルの建物概要
設備詳細
| 空調 | - |
|---|---|
| トイレ | - |
| 床仕様 | - |
| エレベータ | 1 基 |
| 駐車場設備 | - |
| その他 | 24時間利用可 / クリニック |
吉村ビル3階の賃貸オフィス・事務所に関するお問い合わせ
吉村ビルについて
吉村ビルは、厚木市中町3丁目に位置する地上6階建ての事業用賃貸ビルです。最寄りの小田急電鉄小田原線「本厚木駅」からは徒歩3分と、駅からの距離が近く、日常の移動や業務上の来訪者対応にも配慮しやすい立地となっています。また、小田原線および相模線「厚木駅」からも利用が可能です(それぞれ徒歩18分、19分)。このエリアは、周辺に多様な業種のオフィスや店舗が集積しており、事業活動の拠点としやすい環境が整っています。 建物にはエレベーターが1基設置されており、各階への移動がスムーズです。6階建ての構造は、事業の規模や用途に合わせてフロアを検討する際にも柔軟性があります。敷地内や近隣の道路状況についても、歩行者や自動車の利用を考えた際に計画しやすいエリアとなっています。駅からのアクセス方法や、ビジネスに必要な周辺施設についても現地にてご確認いただけます。詳細はお問い合わせください。
吉村ビルのこだわり
自分で探すより問い合わせる方が早いことがあります
WEB非公開物件があるから
オーナー様のご希望により「WEBでは非公開」にしている物件があります。 それらはWEBでいくら検索しても見つかりません。 先ずは条件などお知らせ頂けましたら非公開物件含め ピッタリのオフィスをご提案させて頂きます。 無理なお勧めはしておりませんので、お気軽にお問い合わせください。
対面でのご相談も受け付けております
ご来店も歓迎です
オフィス移転は社内・社外ともに非公開に行われることが殆どです。そのためアットオフィスでは、基本的に訪問によるコンサルティングを行っておりますが、ご来店の相談も歓迎です。お一人おひとりに親身にご対応させて頂きたい為、要予約とさせて頂いております。ご来店の際は先ずは下記よりご予約下さい。
厚木市エリアで吉村ビルに似た条件の物件
読込中...
吉村ビルと同じ最寄駅の物件
読込中...
| 取扱様態 | 仲介 |
|---|---|
| 取扱会社 | 株式会社 アットオフィス |