芝浦クリスタル銀座ビル6階の賃貸情報
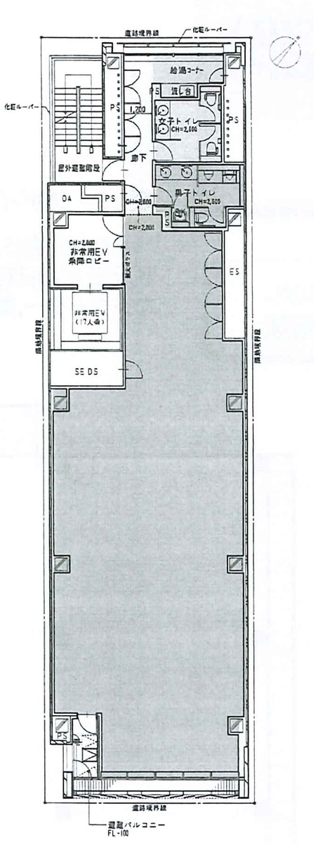
62.33 坪 (206.06m²)
※このサイトに記載がある賃貸条件は、敷金・保証金などの預かり金を除き、別途消費税がかかります。
芝浦クリスタル銀座ビルの建物概要
設備詳細
| 空調 | 個別空調 |
|---|---|
| トイレ | - |
| 床仕様 | OA対応床(フリーアクセス) |
| エレベータ | 2 基 |
| 駐車場設備 | - |
| その他 | 機械警備 |
芝浦クリスタル銀座ビル6階の賃貸オフィス・事務所に関するお問い合わせ
芝浦クリスタル銀座ビルについて
芝浦クリスタル銀座ビルは、東京都中央区銀座に位置し、2020年に竣工した賃貸オフィスビルでございます。この物件は、東京メトロ各線が乗り入れる「銀座」駅から徒歩約1分という、アクセスの良さが抜群の立地にございます。銀座という地名が示す通り、このエリアは国内外からの観光客やビジネスマンが集まる東京の中心地であり、多様な業種の企業が活動するビジネスの要所です。また、「銀座一丁目」駅も近く、さらに利便性を高めております。 当ビルは、中央通り沿いに立地しており、周辺にはハイブランドの店舗や飲食店が多数存在します。対面には松屋銀座などの複合商業施設があり、ビジネスに必要な生活インフラが整っている点も大きな魅力の一つです。このような立地条件は、従業員の方々の日常生活においても、ビジネスゲストの迎え入れにおいても、大きなメリットとなります。 建物自体は10階建てで、基準階約62坪の賃貸スペースを提供しております。外観は黒を基調としたスタイリッシュなデザインで、現代的なビジネスシーンを象徴するような洗練された雰囲気を持っています。また、エレベーターは1基設置されており、日々の業務においても円滑な移動をサポートいたします。 内装設備においても、高品質な仕様が採用されており、入居企業様が快適に業務を遂行できる環境が整えられています。最新のセキュリティシステムの導入や、高速インターネット環境の構築など、ビジネスが求める機能性と快適性を融合させたオフィス空間となっております。 芝浦クリスタル銀座ビルは、その立地、デザイン、設備ともに、ビジネスの成功を支える要素を兼ね備えた賃貸オフィス物件でございます。この物件は、企業のブランドイメージ向上にも寄与し、従業員様の働きやすい環境を提供することで、企業の成長をサポートいたします。ビジネスの拠点として、また新たな価値を生み出す場として、芝浦クリスタル銀座ビルをぜひご検討ください。
芝浦クリスタル銀座ビルのこだわり
自分で探すより問い合わせる方が早いことがあります
WEB非公開物件があるから
オーナー様のご希望により「WEBでは非公開」にしている物件があります。 それらはWEBでいくら検索しても見つかりません。 先ずは条件などお知らせ頂けましたら非公開物件含め ピッタリのオフィスをご提案させて頂きます。 無理なお勧めはしておりませんので、お気軽にお問い合わせください。
対面でのご相談も受け付けております
ご来店も歓迎です
オフィス移転は社内・社外ともに非公開に行われることが殆どです。そのためアットオフィスでは、基本的に訪問によるコンサルティングを行っておりますが、ご来店の相談も歓迎です。お一人おひとりに親身にご対応させて頂きたい為、要予約とさせて頂いております。ご来店の際は先ずは下記よりご予約下さい。
銀座エリアで芝浦クリスタル銀座ビルに似た条件の物件
読込中...
芝浦クリスタル銀座ビルと同じ最寄駅の物件
読込中...
| 取扱様態 | 仲介 |
|---|---|
| 取扱会社 | 株式会社 アットオフィス |