+SHIFT TSUKIJI2階の賃貸情報
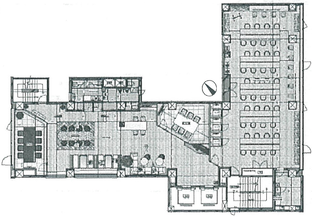
101.53 坪 (335.64m²)
※このサイトに記載がある賃貸条件は、敷金・保証金などの預かり金を除き、別途消費税がかかります。
+SHIFT TSUKIJIの建物概要
設備詳細
| 空調 | 個別空調 |
|---|---|
| トイレ | 男女別トイレ室内 |
| 床仕様 | OA対応床(フリーアクセス) |
| エレベータ | 2 基 |
| 駐車場設備 | - |
| その他 | 機械警備 / 光ファイバー / オフィス居抜き特集 / セットアップ / フリーレント |
部屋の雰囲気
+SHIFT TSUKIJI2階の賃貸オフィス・事務所に関するお問い合わせ
+SHIFT TSUKIJIについて
東京の中央区築地に位置する+SHIFT TSUKIJIは、1996年竣工の賃貸オフィスビルであり、地上7階建て、地下1階建ての構造を持つ。2021年には、外観、室内、共用部の大幅なリニューアル工事を施し、新耐震基準も満たしていることから、安全性と快適性を兼ね備えたモダンなオフィス空間へと生まれ変わった。本物件は、基準階約101坪の広さを誇り、柔軟なレイアウトが可能な整形の執務室エリアを持つことが特徴である。また、専用のテレカンファレンスブースが実装されており、個別空調やOAフロア仕様、男女別トイレを完備していることから、機能性と利便性の高いオフィス環境を提供している。 リニューアルによって追加されたラウンジスペースは、ハイカウンターやソファスペースを備え、打ち合わせやピッチコンテスト、パーティーなど様々な用途での利用が可能である。このように、+SHIFT TSUKIJIは働く人々のライフワークバランスを重視し、「柔軟にシフトする」をコンセプトに掲げる。ビル内のデザインは、設計会社「DRAFT」による監修で、緑色を基調に木目調が融合したデザイン性の高い空間が広がっている。 安全性に関しても、エレベーターにセキュリティ装置を設置し、機械警備システムを導入している。こうした設備は、テナント企業にとっての安心材料となるだろう。ビルの立地も魅力の一つで、東京メトロ日比谷線の築地駅からは徒歩2分、有楽町線新富町駅からは徒歩5分と、複数の路線が利用可能なアクセスの良さを誇る。さらに、周辺にはコンビニエンスストアや飲食店、銀行などが豊富にあり、ビジネスだけでなく日常生活においても利便性が高い。 +SHIFT TSUKIJIは、オフィスビルとしての基本機能を十分に備えるとともに、テナント企業が求める「何か」をプラスすることで、働く人々の創造性や生産性を高める環境を提供している。その洗練されたデザイン、充実した設備、そして優れた立地条件は、ビジネスの拠点として理想的な空間を実現し、多様なワークスタイルに対応する現代のオフィスニーズに応えている。
+SHIFT TSUKIJIのこだわり
その他の区画
| 階数 | 坪数 | 賃料 + 共益費 | 敷金/礼金敷金 礼金 | 検討 |
|---|---|---|---|---|
| 5階 | 88.71坪 (293.28m²) | 2,395,170円 (坪:27,000 円) | 8ヶ月 無8ヶ月/無 | |
| 6階 | 59坪 (195.06m²) | 1,593,000円 (坪:27,000 円) | 7ヶ月 無7ヶ月/無 |
自分で探すより問い合わせる方が早いことがあります
WEB非公開物件があるから
オーナー様のご希望により「WEBでは非公開」にしている物件があります。 それらはWEBでいくら検索しても見つかりません。 先ずは条件などお知らせ頂けましたら非公開物件含め ピッタリのオフィスをご提案させて頂きます。 無理なお勧めはしておりませんので、お気軽にお問い合わせください。
対面でのご相談も受け付けております
ご来店も歓迎です
オフィス移転は社内・社外ともに非公開に行われることが殆どです。そのためアットオフィスでは、基本的に訪問によるコンサルティングを行っておりますが、ご来店の相談も歓迎です。お一人おひとりに親身にご対応させて頂きたい為、要予約とさせて頂いております。ご来店の際は先ずは下記よりご予約下さい。
新富/築地エリアで+SHIFT TSUKIJIに似た条件の物件
読込中...
+SHIFT TSUKIJIと同じ最寄駅の物件
読込中...
| 取扱様態 | 仲介 |
|---|---|
| 取扱会社 | 株式会社 アットオフィス |