グランジット日本橋馬喰町ビル1階の賃貸情報
13.22 坪 (43.72m²)
※このサイトに記載がある賃貸条件は、敷金・保証金などの預かり金を除き、別途消費税がかかります。
グランジット日本橋馬喰町ビルの建物概要
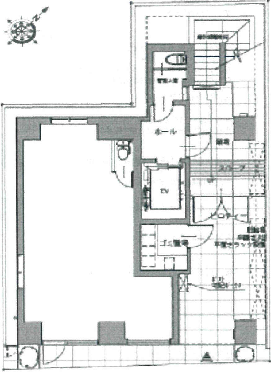
設備詳細
| 空調 | 個別空調 |
|---|---|
| トイレ | 男女共用トイレ・室外 |
| 床仕様 | - |
| エレベータ | - |
| 駐車場設備 | - |
| その他 | 光ファイバー / 1階の物件 |
グランジット日本橋馬喰町ビル1階の賃貸オフィス・事務所に関するお問い合わせ
グランジット日本橋馬喰町ビルについて
グランジット日本橋馬喰町は、中央区日本橋馬喰町1丁目に位置する地上7階建ての事業用建物です。総武線「馬喰町駅」から徒歩1分、浅草線「東日本橋駅」まで2分、都営新宿線「馬喰横山駅」へも3分という立地で、複数路線・複数駅が徒歩圏内にあります。この立地特性により、オフィスや事業所としての利用を検討されている法人様にとって、通勤や来客時の駅への移動の選択肢が多い建物です。 建物には光ファイバーが導入されており、インターネット環境の整備が必要なテナントにも対応しています。地上7階建ての構造は、各フロアで事業内容や規模に応じたレイアウトを検討する際の参考となるでしょう。周辺はオフィスや商業施設が立ち並ぶエリアとなっており、ビジネス拠点としての利用を想定しやすい場所です。 複数路線が利用可能なため、各方面からのアクセスにも幅があり、従業員や取引先の動線計画にも配慮しやすい点が特徴です。事業拡大や移転を検討されている企業様にとって、立地や建物規模を踏まえた多様な利用イメージが考えられます。詳細はお問い合わせください。
グランジット日本橋馬喰町ビルのこだわり
自分で探すより問い合わせる方が早いことがあります
WEB非公開物件があるから
オーナー様のご希望により「WEBでは非公開」にしている物件があります。 それらはWEBでいくら検索しても見つかりません。 先ずは条件などお知らせ頂けましたら非公開物件含め ピッタリのオフィスをご提案させて頂きます。 無理なお勧めはしておりませんので、お気軽にお問い合わせください。
対面でのご相談も受け付けております
ご来店も歓迎です
オフィス移転は社内・社外ともに非公開に行われることが殆どです。そのためアットオフィスでは、基本的に訪問によるコンサルティングを行っておりますが、ご来店の相談も歓迎です。お一人おひとりに親身にご対応させて頂きたい為、要予約とさせて頂いております。ご来店の際は先ずは下記よりご予約下さい。
近くのエリアで探してみる
人形町/馬喰町/浜町エリアでグランジット日本橋馬喰町ビルに似た条件の物件
読込中...
グランジット日本橋馬喰町ビルと同じ最寄駅の物件
読込中...
| 取扱様態 | 仲介 |
|---|---|
| 取扱会社 | 株式会社 アットオフィス |