湘南パールビル6階の賃貸情報
面積
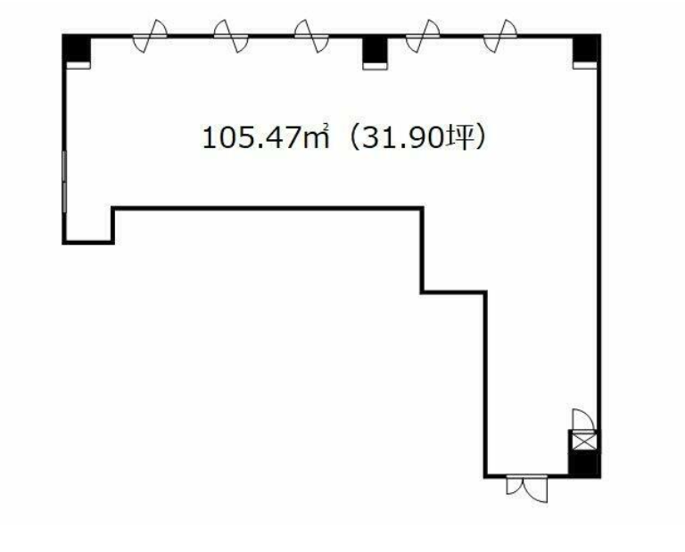
31.9 坪 (105.47m²)
賃料
共益費-
敷金 / 礼金 / 保証金-
償却-
更新料-
※このサイトに記載がある賃貸条件は、敷金・保証金などの預かり金を除き、別途消費税がかかります。
設備詳細
| 空調 | 個別空調 |
|---|---|
| トイレ | - |
| 床仕様 | - |
| エレベータ | 1 基 |
| 駐車場設備 | 空有 |
| その他 | 機械警備 / 神奈川賃料が10000円以下 |
湘南パールビル6階の賃貸オフィス・事務所に関するお問い合わせ
湘南パールビルについて
JR東海道線「辻堂駅」南口から徒歩1分、駅からのアクセスが抜群によい物件です。 地下1階、地上11階の構造で竣工年数は2003年10月、ワンフロアは約200坪です。 エレベーター、男女別トイレ(共用部)の設備に加え、駅正面から2階共用部にかけてエスカレーターも設置済みと 来客を想定した造りとなっています。 立地、設備に優れているため、事務所はもちろんのこと、店舗をお探しの方にお勧めの物件です。(詳しい業種は事前に確認が必要です。)
湘南パールビルのこだわり
自分で探すより問い合わせる方が早いことがあります
WEB非公開物件があるから
オーナー様のご希望により「WEBでは非公開」にしている物件があります。 それらはWEBでいくら検索しても見つかりません。 先ずは条件などお知らせ頂けましたら非公開物件含め ピッタリのオフィスをご提案させて頂きます。 無理なお勧めはしておりませんので、お気軽にお問い合わせください。
WEBから条件問い合わせをする(無料)
対面でのご相談も受け付けております
ご来店も歓迎です
オフィス移転は社内・社外ともに非公開に行われることが殆どです。そのためアットオフィスでは、基本的に訪問によるコンサルティングを行っておりますが、ご来店の相談も歓迎です。お一人おひとりに親身にご対応させて頂きたい為、要予約とさせて頂いております。ご来店の際は先ずは下記よりご予約下さい。
来店予約をする
藤沢市エリアで湘南パールビルに似た条件の物件
読込中...
湘南パールビルと同じ最寄駅の物件
読込中...
| 取扱様態 | 仲介 |
|---|---|
| 取扱会社 | 株式会社 アットオフィス |