イサミヤビル2階の賃貸情報
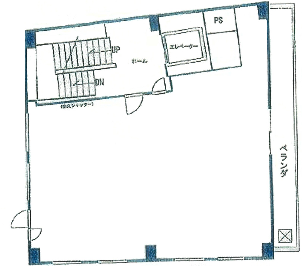
28.75 坪 (95.04m²)
※このサイトに記載がある賃貸条件は、敷金・保証金などの預かり金を除き、別途消費税がかかります。
イサミヤビルの建物概要
設備詳細
| 空調 | - |
|---|---|
| トイレ | - |
| 床仕様 | - |
| エレベータ | - |
| 駐車場設備 | - |
| その他 | スケルトン / クリニック |
イサミヤビルについて
イサミヤビルは、世田谷区北沢2丁目に位置し、小田原線および井の頭線「下北沢駅」から徒歩2分、さらに井の頭線「池ノ上駅」へも徒歩6分で到着できる場所に建つ建物です。複数の路線と駅を利用できるため、周辺エリアからのアクセスや移動手段を検討される法人様にも選択肢の幅が広がります。建物の所在する北沢2丁目周辺は、駅前の活気や多様な商業施設に近接している一方で、周辺環境は落ち着いた雰囲気も持ち合わせています。来訪者や従業員が集まりやすい立地であり、オフィスやサービス拠点など、さまざまな事業用途での運用イメージが描きやすいロケーションです。建物の詳細や利用ご希望の場合は、お気軽にお問い合わせください。
イサミヤビルのこだわり
自分で探すより問い合わせる方が早いことがあります
WEB非公開物件があるから
オーナー様のご希望により「WEBでは非公開」にしている物件があります。 それらはWEBでいくら検索しても見つかりません。 先ずは条件などお知らせ頂けましたら非公開物件含め ピッタリのオフィスをご提案させて頂きます。 無理なお勧めはしておりませんので、お気軽にお問い合わせください。
対面でのご相談も受け付けております
ご来店も歓迎です
オフィス移転は社内・社外ともに非公開に行われることが殆どです。そのためアットオフィスでは、基本的に訪問によるコンサルティングを行っておりますが、ご来店の相談も歓迎です。お一人おひとりに親身にご対応させて頂きたい為、要予約とさせて頂いております。ご来店の際は先ずは下記よりご予約下さい。
世田谷区エリアでイサミヤビルに似た条件の物件
読込中...
イサミヤビルと同じ最寄駅の物件
読込中...
| 取扱様態 | 仲介 |
|---|---|
| 取扱会社 | 株式会社 アットオフィス |