※このサイトに記載がある賃貸条件は、敷金・保証金などの預かり金を除き、別途消費税がかかります。
物件情報
設備詳細
| 空調 | - |
|---|---|
| トイレ | - |
| 床仕様 | - |
| エレベータ | - |
| 駐車場設備 | - |
| その他 | - |
千住野村證券ビルの賃貸オフィス・事務所に関するお問い合わせ
千住野村證券ビルについて
千住野村證券ビルは、足立区千住寿町に所在し、千代田線および常磐線「北千住駅」から徒歩6分、常磐緩行線「北千住駅」から徒歩7分の場所に位置しています。最寄駅から複数路線が利用可能で、周辺のビジネスエリアや居住地との行き来を想定した事業活動に適した立地となっています。建物は地上5階、地下1階の構成で、フロアを分割した活用や、複数部門による利用を検討している法人にも対応しやすい造りです。オフィスや事業拠点、来客対応のスペースなど、企業の多様な活動の拠点としてご検討いただけます。周辺には商業店舗や各種施設が点在し、従業員の通勤や日々の業務活動も見据えた活用ができます。利用イメージや具体的な区画条件など、詳細はお問い合わせください。
千住野村證券ビルのこだわり
自分で探すより問い合わせる方が早いことがあります
WEB非公開物件があるから
オーナー様のご希望により「WEBでは非公開」にしている物件があります。 それらはWEBでいくら検索しても見つかりません。 先ずは条件などお知らせ頂けましたら非公開物件含め ピッタリのオフィスをご提案させて頂きます。 無理なお勧めはしておりませんので、お気軽にお問い合わせください。
対面でのご相談も受け付けております
ご来店も歓迎です
オフィス移転は社内・社外ともに非公開に行われることが殆どです。そのためアットオフィスでは、基本的に訪問によるコンサルティングを行っておりますが、ご来店の相談も歓迎です。お一人おひとりに親身にご対応させて頂きたい為、要予約とさせて頂いております。ご来店の際は先ずは下記よりご予約下さい。
募集終了のテナント区画
| 階数 | 坪数 | 賃料 + 共益費 | 敷金/礼金敷金 礼金 | 検討 |
|---|---|---|---|---|
| 5階 | 46.4坪 (153.39m²) | 募集終了 | - | - |
| 5階 | 3.4坪 (11.24m²) | 募集終了 | - | - |
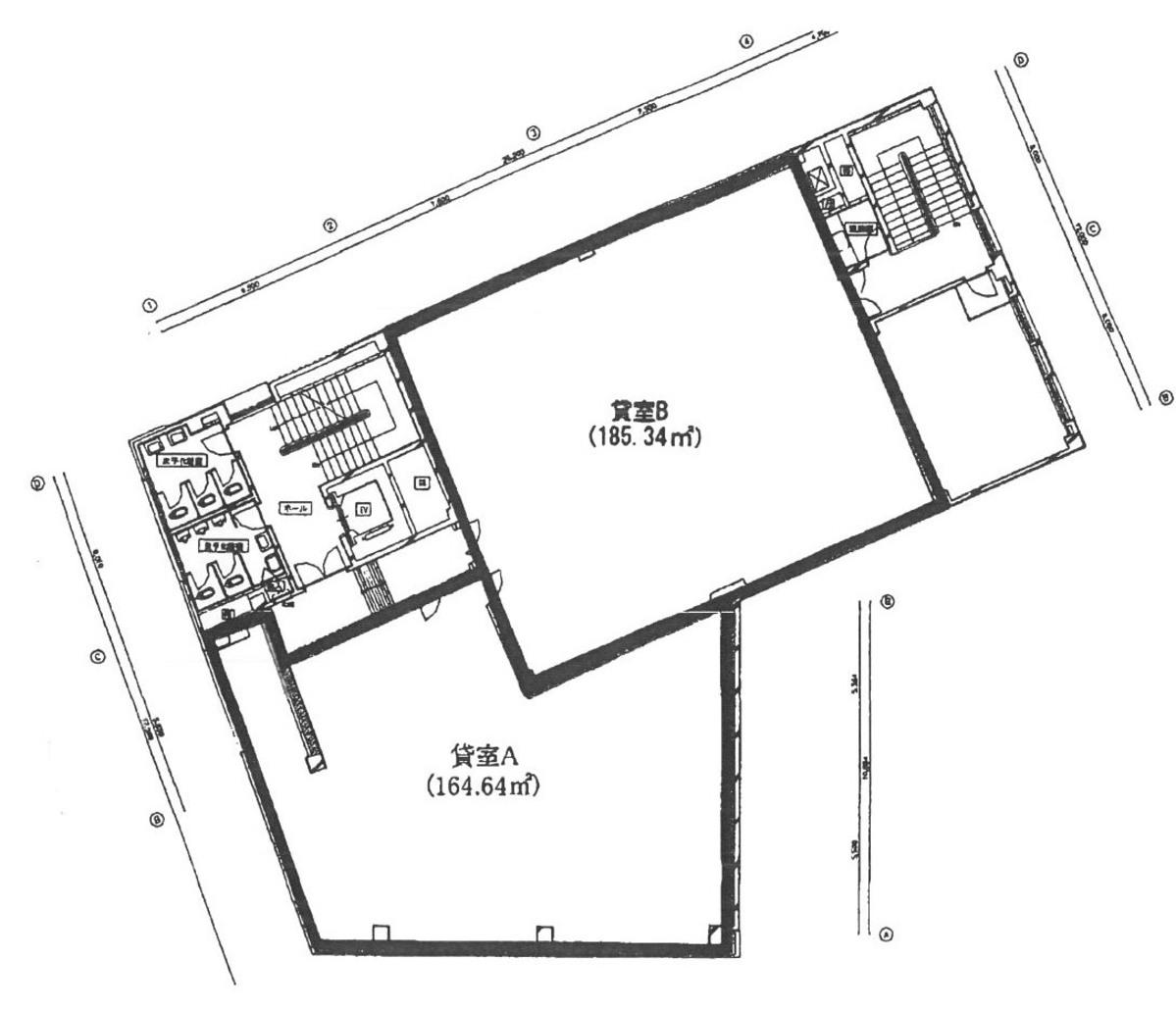
| 5階 | 56.06坪 (185.32m²) | 募集終了 | - | - |
| 5階 | 49.8坪 (164.63m²) | 募集終了 | - | - |
読込中...
足立区エリアで千住野村證券ビルに似た条件の物件
読込中...
| 取扱様態 | 仲介 |
|---|---|
| 取扱会社 | 株式会社 アットオフィス |