人形町PREX9階の賃貸情報
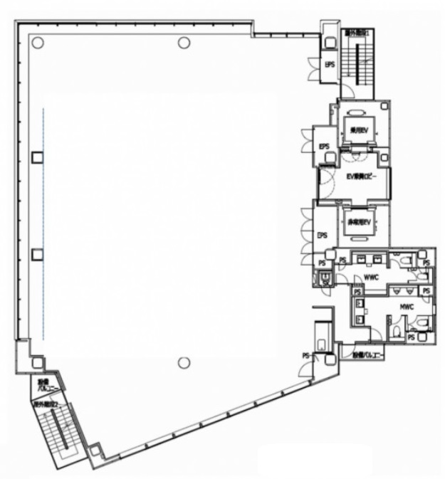
158.06 坪 (522.51m²)
※このサイトに記載がある賃貸条件は、敷金・保証金などの預かり金を除き、別途消費税がかかります。
人形町PREXの建物概要
設備詳細
| 空調 | 個別空調 |
|---|---|
| トイレ | - |
| 床仕様 | OA対応床(フリーアクセス) |
| エレベータ | - |
| 駐車場設備 | - |
| その他 | セットアップ |
人形町PREXについて
東京都中央区日本橋堀留町に位置する人形町PREXは、2022年に竣工した最先端の賃貸オフィスビルです。この物件は、ビジネスの中心地でありながら、最新のオフィス環境とリーズナブルな初期投資を兼ね備えた、新しい「働き方」を実現します。 立地において、人形町PREXは複数の駅にアクセスが容易であり、東京メトロ日比谷線人形町駅からは徒歩4分、小伝馬町駅からは徒歩5分、水天宮前駅からは徒歩7分と、ビジネスマンにとって理想的なアクセスの良さを誇ります。さらに、周辺には多数の飲食店やショッピングモールがあり、ビジネスのみならず生活利便性も高い立地です。 設備面では、人形町PREXは先進的なオフィスニーズに応える機能を満載しています。全フロアにOAフロアを採用し、最大限の柔軟性を実現。また、3段階セキュリティ機能(エントランス、エレベーター、専有部)を装備し、テナント企業の安全を確保します。加えて、駐車場は15台分を確保し、共用部には屋上ワークプレイスを完備しており、非日常的な働き方も支援します。 物件のスペックについても、人形町PREXは高い評価を受けています。基準階約158坪の広大なスペースは、レイアウトの自由度が高く、企業のニーズに合わせたオフィスデザインが可能です。また、窓面が多く取り入れられており、自然光がたっぷりと入る明るいオフィス環境を提供しています。天井高は2700mmと開放的で、快適なワークスペースを実現します。 さらに、人形町PREXは新耐震基準を満たした鉄骨造の10階建てで、エレベーターは2基設置されています。ガラス張りのエントランスは洗練されたデザインで、訪れる人々に良い印象を与えます。 最新のオフィス環境を求め、立地の良さと設備の充実を重視する企業にとって、人形町PREXは、ビジネスの成功に不可欠な要素をすべて備えた、理想的なオフィススペースです。
人形町PREXのこだわり
その他の区画
| 階数 | 坪数 | 賃料 + 共益費 | 敷金/礼金敷金 礼金 | 検討 |
|---|---|---|---|---|
| 5階 | 158.06坪 (522.53m²) | 4,700,000円 (坪:29,735 円) | 6ヶ月 無6ヶ月/無 |
自分で探すより問い合わせる方が早いことがあります
WEB非公開物件があるから
オーナー様のご希望により「WEBでは非公開」にしている物件があります。 それらはWEBでいくら検索しても見つかりません。 先ずは条件などお知らせ頂けましたら非公開物件含め ピッタリのオフィスをご提案させて頂きます。 無理なお勧めはしておりませんので、お気軽にお問い合わせください。
対面でのご相談も受け付けております
ご来店も歓迎です
オフィス移転は社内・社外ともに非公開に行われることが殆どです。そのためアットオフィスでは、基本的に訪問によるコンサルティングを行っておりますが、ご来店の相談も歓迎です。お一人おひとりに親身にご対応させて頂きたい為、要予約とさせて頂いております。ご来店の際は先ずは下記よりご予約下さい。
近くのエリアで探してみる
人形町/馬喰町/浜町エリアで人形町PREXに似た条件の物件
読込中...
人形町PREXと同じ最寄駅の物件
読込中...
| 取扱様態 | 仲介 |
|---|---|
| 取扱会社 | 株式会社 アットオフィス |