日本橋水野ビル7階の賃貸情報
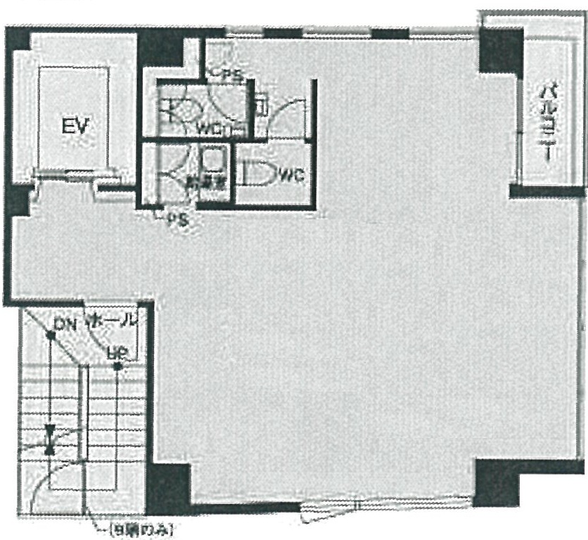
15.78 坪 (52.15m²)
※このサイトに記載がある賃貸条件は、敷金・保証金などの預かり金を除き、別途消費税がかかります。
日本橋水野ビルの建物概要
設備詳細
| 空調 | 個別空調 |
|---|---|
| トイレ | 男女別トイレ室内 |
| 床仕様 | OA対応床(フリーアクセス) |
| エレベータ | 1 基 |
| 駐車場設備 | - |
| その他 | 新耐震基準 |
日本橋水野ビル7階の賃貸オフィス・事務所に関するお問い合わせ
日本橋水野ビルについて
私達が誇りを持ってお勧めするのは、高級感あふれる外観が魅力のこの物件です。ビジネスの中心地、日本橋駅からほど近い立地に位置しており、アクセスの良さは抜群。徒歩圏内には多様な商業施設や飲食店があり、ビジネスのみならず、日々の生活にも便利な環境が整っています。 このビルの内装は、天井スケルトンで仕上げられたスタイリッシュなデザインが特徴。スポットライト照明が施されており、洗練された雰囲気の中でビジネスを行うことができます。加えて、広々とした空間は自由度の高いレイアウトが可能で、オフィスとしてだけでなく、店舗利用にも最適。業種には制限がありますが、多くのビジネスシーンでの活躍が期待できるでしょう。 さらに、この物件は高級感のある外観が魅力的な点も見逃せません。ビジネスパートナーや顧客を迎える際にも、この物件の印象が強力なサポートとなることは間違いありません。第一印象を大切にするビジネスマンにとって、この物件は理想的な選択肢と言えるでしょう。 立地、デザイン、機能性を兼ね備えたこのビルは、新たなビジネスの拠点として、また、新しい事業のスタートに最適な環境を提供します。日本橋という日本経済の中心地で、あなたのビジネスを一段と輝かせるチャンスをぜひ掴んでください。この物件には、成功への第一歩を踏み出すためのすべてが揃っています。
自分で探すより問い合わせる方が早いことがあります
WEB非公開物件があるから
オーナー様のご希望により「WEBでは非公開」にしている物件があります。 それらはWEBでいくら検索しても見つかりません。 先ずは条件などお知らせ頂けましたら非公開物件含め ピッタリのオフィスをご提案させて頂きます。 無理なお勧めはしておりませんので、お気軽にお問い合わせください。
対面でのご相談も受け付けております
ご来店も歓迎です
オフィス移転は社内・社外ともに非公開に行われることが殆どです。そのためアットオフィスでは、基本的に訪問によるコンサルティングを行っておりますが、ご来店の相談も歓迎です。お一人おひとりに親身にご対応させて頂きたい為、要予約とさせて頂いております。ご来店の際は先ずは下記よりご予約下さい。
近くのエリアで探してみる
八重洲/日本橋/三越前エリアで日本橋水野ビルに似た条件の物件
読込中...
日本橋水野ビルと同じ最寄駅の物件
読込中...
| 取扱様態 | 仲介 |
|---|---|
| 取扱会社 | 株式会社 アットオフィス |