+SHIFT KANDA4階の賃貸情報
24.99 坪 (82.63m²)
※このサイトに記載がある賃貸条件は、敷金・保証金などの預かり金を除き、別途消費税がかかります。
+SHIFT KANDAの建物概要
設備詳細
| 空調 | 個別空調 |
|---|---|
| トイレ | - |
| 床仕様 | OA対応床(フリーアクセス) |
| エレベータ | 1 基 |
| 駐車場設備 | - |
| その他 | 機械警備 / 24時間利用可 / 管理人常駐 / 保証金・敷金+礼金が3か月以下 / セットアップ / 原状回復義務なし |
+SHIFT KANDA4階の賃貸オフィス・事務所に関するお問い合わせ
+SHIFT KANDAについて
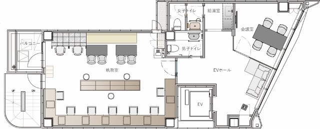
千代田区神田岩本町に位置する+SHIFTKANDAは、2021年に竣工された最新の賃貸オフィスビルです。この物件は、岩本町駅から徒歩わずか2分、秋葉原駅から4分という優れた立地条件を誇ります。また、ビジネスの中心地である神田駅からもアクセスが可能で、多方面からのアプローチが容易な点が最大の特徴です。 +SHIFTKANDAは、12階建ての鉄骨造となっており、耐震性に優れた構造を持っています。基準階約24坪のオフィススペースは、柔軟なレイアウトが可能で、各企業のニーズに応じたオフィス作りが可能です。また、すべてのオフィスには個別空調が完備され、快適な職場環境を保つことができます。 内装においては、洗練されたデザインと暖かみのある雰囲気が魅力です。家具付きの居抜き物件であり、即戦力として利用することが可能です。オフィス内にはカウンタースペースやミーティングスペースが設けられており、ビジネスシーンにおける多様な活動を支援します。また、床はOAフロア仕様で、ケーブルやコンセントの配線が容易です。 24時間利用が可能であり、セキュリティ設備もしっかりと整っているため、安心して業務を行うことができます。男女別のトイレや給湯スペースも完備されており、オフィスでの快適性を高めています。 周辺環境も非常に充実しています。飲食店やホテル、クリニックはもちろん、コンビニや郵便局など、ビジネスをサポートする施設が揃っています。また、昭和通り沿いに位置し、国道4号線と首都高速1号線が近接しているため、車でのアクセスも良好です。 +SHIFTKANDAは、最新の設備と快適な環境、そして抜群の立地条件を兼ね備えたビルです。これから新しいオフィスを検討されている企業にとって、最適な選択肢の一つと言えるでしょう。ビジネスのさらなる発展を目指す皆様に、是非ともこの機会をお勧めします。
+SHIFT KANDAのこだわり
自分で探すより問い合わせる方が早いことがあります
WEB非公開物件があるから
オーナー様のご希望により「WEBでは非公開」にしている物件があります。 それらはWEBでいくら検索しても見つかりません。 先ずは条件などお知らせ頂けましたら非公開物件含め ピッタリのオフィスをご提案させて頂きます。 無理なお勧めはしておりませんので、お気軽にお問い合わせください。
対面でのご相談も受け付けております
ご来店も歓迎です
オフィス移転は社内・社外ともに非公開に行われることが殆どです。そのためアットオフィスでは、基本的に訪問によるコンサルティングを行っておりますが、ご来店の相談も歓迎です。お一人おひとりに親身にご対応させて頂きたい為、要予約とさせて頂いております。ご来店の際は先ずは下記よりご予約下さい。
神田/秋葉原エリアで+SHIFT KANDAに似た条件の物件
読込中...
+SHIFT KANDAと同じ最寄駅の物件
読込中...
| 取扱様態 | 仲介 |
|---|---|
| 取扱会社 | 株式会社 アットオフィス |