N.A BILD3階の賃貸情報
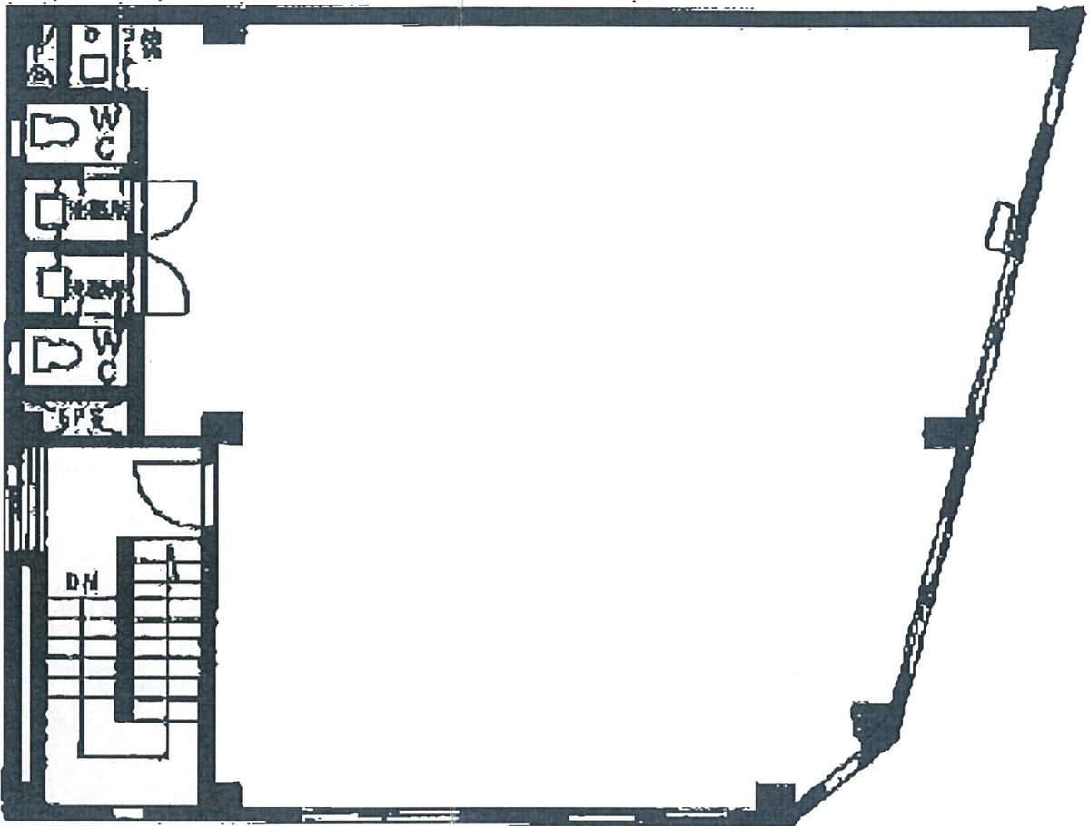
31.44 坪 (103.94m²)
※このサイトに記載がある賃貸条件は、敷金・保証金などの預かり金を除き、別途消費税がかかります。
N.A BILDの建物概要
設備詳細
| 空調 | - |
|---|---|
| トイレ | 男女別トイレ室内 |
| 床仕様 | - |
| エレベータ | - |
| 駐車場設備 | - |
| その他 | エレベーター無 / 店舗可(飲食不可) / 東京賃料が坪11000円以下 |
N.A BILD3階の賃貸オフィス・事務所に関するお問い合わせ
N.A BILDについて
NABILD(中央区日本橋人形町)は、ビジネスの中心地に位置しながらも、閑静な環境が魅力の賃貸オフィスビルです。1997年に竣工したこの3階建ての物件は、新耐震基準に適合しており、安全性に優れた構造が特徴です。基準階約31坪の広さは、様々なビジネスニーズに対応可能で、2面採光による明るく開放的なオフィス環境を提供します。 NABILDは、人形町駅からわずか3分の距離にあり、小伝馬町駅と水天宮前駅も利用できるため、公共交通機関を利用したアクセスの良さが大きな利点です。また、人形町通りから一歩中に入った立地は、喧騒から離れた落ち着いた環境でありながら、飲食店が豊富にある便利なエリアです。ランチタイムやアフター5のビジネスシーンを支える多様な選択肢が周辺にはあります。 設備面においても、NABILDは男女別トイレを完備しており、日常的な快適さを追求しています。エレベーターは設置されていないため、健康的な歩行を促す環境も提供します。このように、NABILDは機能性と快適性を兼ね備えた賃貸オフィスビルとして、企業の成長を支える理想の場所です。 ビジネスの成功はロケーションと環境によって大きく左右されます。NABILDはその両方を提供することで、企業の様々な要望に応えることができるのです。新耐震基準に適合した構造は、安心して業務に専念できる環境を保証します。また、2面採光の開放的なオフィス空間は、働く従業員の創造性と生産性の向上を促します。 まとめると、NABILD(中央区日本橋人形町)は、優れた耐震性、絶好の立地、そして快適なオフィス環境を提供する賃貸オフィスビルです。ビジネスの拠点として、また新たなステージへの一歩として、NABILDはあなたの期待を超える価値を提供します。
自分で探すより問い合わせる方が早いことがあります
WEB非公開物件があるから
オーナー様のご希望により「WEBでは非公開」にしている物件があります。 それらはWEBでいくら検索しても見つかりません。 先ずは条件などお知らせ頂けましたら非公開物件含め ピッタリのオフィスをご提案させて頂きます。 無理なお勧めはしておりませんので、お気軽にお問い合わせください。
対面でのご相談も受け付けております
ご来店も歓迎です
オフィス移転は社内・社外ともに非公開に行われることが殆どです。そのためアットオフィスでは、基本的に訪問によるコンサルティングを行っておりますが、ご来店の相談も歓迎です。お一人おひとりに親身にご対応させて頂きたい為、要予約とさせて頂いております。ご来店の際は先ずは下記よりご予約下さい。
近くのエリアで探してみる
人形町/馬喰町/浜町エリアでN.A BILDに似た条件の物件
読込中...
N.A BILDと同じ最寄駅の物件
読込中...
| 取扱様態 | 仲介 |
|---|---|
| 取扱会社 | 株式会社 アットオフィス |