南太田トーセイビル3階の賃貸情報
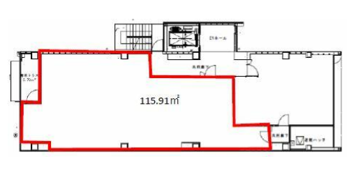
52.43 坪 (173.34m²)
お問合せ下さい (坪:-)
※このサイトに記載がある賃貸条件は、敷金・保証金などの預かり金を除き、別途消費税がかかります。
南太田トーセイビルの建物概要
設備詳細
| 空調 | 空調なし |
|---|---|
| トイレ | - |
| 床仕様 | - |
| エレベータ | 1 基 |
| 駐車場設備 | - |
| その他 | クリニック / スケルトン / 店舗可(飲食不可) |
部屋の雰囲気
南太田トーセイビル3階の賃貸オフィス・事務所に関するお問い合わせ
南太田トーセイビルについて
南太田トーセイビルは、神奈川県横浜市南区南太田1丁目に位置し、京急本線「南太田」駅から徒歩わずか3分の好立地にあります。このエリアは閑静で落ち着いた環境が広がっており、オフィスを構えるには最適な場所です。南太田駅からのアクセスが非常に良いため、通勤やビジネスの移動もスムーズに行えます。さらに、周辺には「吉野町」駅や「黄金町」駅も徒歩圏内にあり、ビジネスの幅を広げる多様なアクセス手段を提供しています。 南太田トーセイビルは2017年9月に竣工した鉄骨造の地上6階建てのビルで、新耐震基準を満たしており、安全性にも配慮されています。ビルは24時間使用可能で、エレベーターも完備されているため、時間を問わず業務を行うことができます。基準階面積は40.57坪で、シンプルな形状のため、レイアウトがしやすく、ワンフロア・ワンテナントのオフィス空間は使い勝手が非常に良好です。 この物件の大きな魅力の一つは、光ファイバーが整備されているため、高速インターネット環境をすぐに利用できる点です。これにより、IT関連の業務や、頻繁なオンラインミーティングを行う企業にも最適です。また、普通借家契約が可能で、保証契約も用意されているため、初めてオフィスを開設する企業や、移転を考えている企業にとっても安心して契約できる点がポイントです。 周辺環境も魅力的で、静かな住宅街の中にありながら、少し足を延ばせば飲食店やコンビニエンスストアなども充実しているため、ランチや業務後の食事にも困りません。また、南太田は歴史と文化が息づくエリアでもあり、地域の魅力を活かしたビジネス展開も期待できます。 南太田トーセイビルは、利便性と快適さを兼ね備えた物件であり、ビジネスの拠点として理想的な選択肢となることでしょう。あなたのビジネスの成功を後押しする環境がここには整っています。
南太田トーセイビルのこだわり
自分で探すより問い合わせる方が早いことがあります
WEB非公開物件があるから
オーナー様のご希望により「WEBでは非公開」にしている物件があります。 それらはWEBでいくら検索しても見つかりません。 先ずは条件などお知らせ頂けましたら非公開物件含め ピッタリのオフィスをご提案させて頂きます。 無理なお勧めはしておりませんので、お気軽にお問い合わせください。
対面でのご相談も受け付けております
ご来店も歓迎です
オフィス移転は社内・社外ともに非公開に行われることが殆どです。そのためアットオフィスでは、基本的に訪問によるコンサルティングを行っておりますが、ご来店の相談も歓迎です。お一人おひとりに親身にご対応させて頂きたい為、要予約とさせて頂いております。ご来店の際は先ずは下記よりご予約下さい。
南区エリアで南太田トーセイビルに似た条件の物件
読込中...
南太田トーセイビルと同じ最寄駅の物件
読込中...
| 取扱様態 | 仲介 |
|---|---|
| 取扱会社 | 株式会社 アットオフィス |