CIRCLES西新宿の賃料条件
| 階数 | 坪数 | 賃料 + 共益費 | 敷金/礼金敷金 礼金 | 検討 |
|---|---|---|---|---|
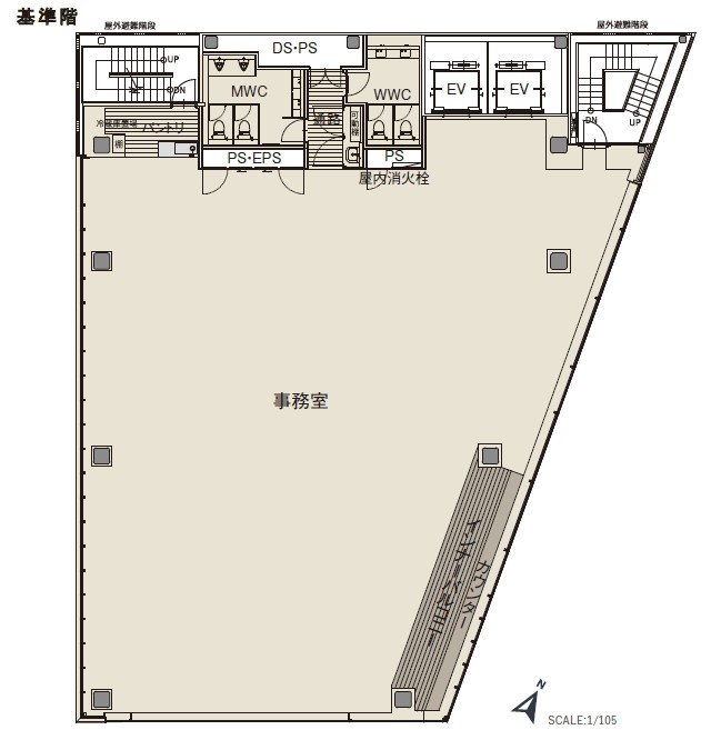
| 2階 | 123.21坪 (407.3m²) | お問合せ下さい (坪:-) | 6ヶ月 無6ヶ月/無 | |
| 4階 | 123.21坪 (407.3m²) | お問合せ下さい (坪:-) | 6ヶ月 無6ヶ月/無 | |
| 6階 | 123.21坪 (407.3m²) | お問合せ下さい (坪:-) | 6ヶ月 無6ヶ月/無 | |
| 7階 | 123.21坪 (407.3m²) | お問合せ下さい (坪:-) | 6ヶ月 無6ヶ月/無 | |
| 10階 | 123.21坪 (407.3m²) | お問合せ下さい (坪:-) | 6ヶ月 無6ヶ月/無 |
※このサイトに記載がある賃貸条件は、敷金・保証金などの預かり金を除き、別途消費税がかかります。
物件情報
設備詳細
| 空調 | 個別空調 |
|---|---|
| トイレ | 男女別トイレ室内 |
| 床仕様 | OA対応床(フリーアクセス) |
| エレベータ | 2 基 |
| 駐車場設備 | 空有 / 機械式駐車場 |
| その他 | 機械警備 / 居抜き / セットアップ |
CIRCLES西新宿の賃貸オフィス・事務所に関するお問い合わせ
CIRCLES西新宿について
CIRCLES西新宿は、2022年8月に竣工した、新宿区西新宿に位置する最先端の賃貸オフィスビルです。11階建てで、基準階面積約123坪の広々とした空間が特徴です。最新の設備と機能性を兼ね備えたこのビルは、ビジネスの成功をサポートする理想的な環境を提供します。 立地において、CIRCLES西新宿は群を抜いています。都営大江戸線「都庁前駅」から徒歩6分、JR・私鉄各線「新宿駅」から徒歩9分というアクセスの良さは、ビジネスにとって大きな強みとなるでしょう。複数の路線を利用できることで、都内外からのアクセスが容易になり、クライアントや従業員の利便性を高めます。 設備面では、CIRCLES西新宿は他のオフィスビルと一線を画します。全フロアにインナーバルコニーが設置されており、開放感のある作業空間を提供します。さらに、2基のエレベーターと14台収容可能な機械式駐車場、ICカードによる2段階セキュリティシステムなど、ビルの安全性と機能性を高める設備が整っています。 リフレッシュスペースとしては、1階に設置されたラウンジスペースや屋上のテラスがあり、緑化された屋上テラスからは新宿の街並みを一望できます。また、1階エントランスにはテレカンブースも設置されており、カウンターやコーヒーマシンを備え、ビジネスシーンにおける快適なコミュニケーションスペースを提供しています。 外観においても、木ルーバーを使用したファサードが特徴的で、都会の中の自然の温もりを感じさせます。このようなデザインは、ビルに入るたびに心を落ち着かせ、クリエイティブな発想を促すでしょう。 CIRCLES西新宿は、ビジネスのための最先端設備と快適な作業環境を提供する、新宿で際立つ賃貸オフィスビルです。その立地の良さ、機能性とセキュリティ、そしてリフレッシュスペースの充実が、あなたのビジネスを次のレベルへと導くでしょう。新宿でのオフィス探しにおいて、CIRCLES西新宿は見逃せない選択肢です。
CIRCLES西新宿のこだわり
自分で探すより問い合わせる方が早いことがあります
WEB非公開物件があるから
オーナー様のご希望により「WEBでは非公開」にしている物件があります。 それらはWEBでいくら検索しても見つかりません。 先ずは条件などお知らせ頂けましたら非公開物件含め ピッタリのオフィスをご提案させて頂きます。 無理なお勧めはしておりませんので、お気軽にお問い合わせください。
対面でのご相談も受け付けております
ご来店も歓迎です
オフィス移転は社内・社外ともに非公開に行われることが殆どです。そのためアットオフィスでは、基本的に訪問によるコンサルティングを行っておりますが、ご来店の相談も歓迎です。お一人おひとりに親身にご対応させて頂きたい為、要予約とさせて頂いております。ご来店の際は先ずは下記よりご予約下さい。
募集終了のテナント区画
| 階数 | 坪数 | 賃料 + 共益費 | 敷金/礼金敷金 礼金 | 検討 |
|---|---|---|---|---|
| 1階 | 74.01坪 (244.67m²) | 募集終了 | - | - |
| 3階 | 123.42坪 (407.3m²) | 募集終了 | - | - |
| 5階 | 123.21坪 (407.3m²) | 募集終了 | - | - |
| 8階 | 123.21坪 (407.3m²) | 募集終了 | - | - |
| 9階 | 108.64坪 (359.14m²) | 募集終了 | - | - |
読込中...
新宿/西新宿エリアでCIRCLES西新宿に似た条件の物件
読込中...
| 取扱様態 | 仲介 |
|---|---|
| 取扱会社 | 株式会社 アットオフィス |