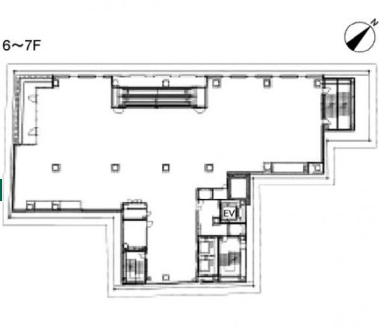
プライム銀座柳通りビル7階の賃貸情報
99.54 坪 (328.95m²)
※このサイトに記載がある賃貸条件は、敷金・保証金などの預かり金を除き、別途消費税がかかります。
プライム銀座柳通りビルの建物概要
設備詳細
| 空調 | 個別空調 |
|---|---|
| トイレ | 男女別トイレ |
| 床仕様 | OA対応床(フリーアクセス) |
| エレベータ | 4 基 / エレベーター有 |
| 駐車場設備 | 機械式駐車場 / 敷地内駐車場 |
| その他 | 機械警備 / 24時間利用可 / 管理人常駐 / 新耐震基準 / 大通り面する / フリーレント / クリニック / 天井高3m以上 |
プライム銀座柳通りビルについて
【プライム銀座柳通りビル:ビジネスの中心に立つ、魅力あふれるオフィススペース】 銀座一丁目駅から徒歩わずか1分という絶好のロケーションに位置する「プライム銀座柳通りビル」をご紹介いたします。このビルは、ビジネスとアクセスの利便性を追求される皆様にとって、まさに理想のオフィススペースと言えるでしょう。 まず目を引くのは、その立地の良さです。銀座一丁目駅から徒歩1分、銀座駅からは徒歩4分というアクセスの良さは、ビジネスシーンでの時間の大切さを考えると、非常に魅力的なポイントです。さらに京橋駅、宝町駅、有楽町駅も徒歩圏内と、複数の路線が利用可能で、ビジネスの機会を広げるのに最適な立地条件を備えています。 ビル自体は、2010年8月に竣工された10階建てのハイグレードなオフィスビルです。基準階面積は約218坪と広々としており、天井高3100mmの開放的な空間が、快適なオフィス環境を提供します。また、1~3階は完全スケルトンで、ビジネスのニーズに合わせて自由にレイアウトできる点も大きな魅力です。 セキュリティ面では、機械警備を完備し、安心してビジネスを行うことができます。また、エレベーターは乗用2基、非常用1基、地下1階店舗専用1基を設置しており、スムーズな移動が可能です。個別空調、男女別トイレ、給湯室、誰でもトイレなど、ビル内設備も充実しており、快適なオフィスライフをサポートします。 オフィスの外観は、銀座柳通り沿いに位置しており、視認性も抜群です。銀座という日本を代表するビジネスとショッピングの中心地にオフィスを構えることで、企業イメージの向上にもつながります。 周辺環境もまた、ビジネスを行う上で非常に魅力的です。飲食店やコンビニが点在しており、日々のランチやちょっとした買い物に困ることはありません。また、ビジネスパートナーやクライアントとの打ち合わせに便利なカフェやレストランも充実しています。 プライム銀座柳通りビルは、その立地の良さ、機能性、そして周辺環境の豊かさを兼ね備えた、ビジネスの成功に欠かせないオフィススペースです。皆様のビジネスを一歩前進させるための最適な選択となるでしょう。ご興味のある方は、ぜひ一度足を運んでみてください。
自分で探すより問い合わせる方が早いことがあります
WEB非公開物件があるから
オーナー様のご希望により「WEBでは非公開」にしている物件があります。 それらはWEBでいくら検索しても見つかりません。 先ずは条件などお知らせ頂けましたら非公開物件含め ピッタリのオフィスをご提案させて頂きます。 無理なお勧めはしておりませんので、お気軽にお問い合わせください。
対面でのご相談も受け付けております
ご来店も歓迎です
オフィス移転は社内・社外ともに非公開に行われることが殆どです。そのためアットオフィスでは、基本的に訪問によるコンサルティングを行っておりますが、ご来店の相談も歓迎です。お一人おひとりに親身にご対応させて頂きたい為、要予約とさせて頂いております。ご来店の際は先ずは下記よりご予約下さい。
銀座エリアでプライム銀座柳通りビルに似た条件の物件
読込中...
プライム銀座柳通りビルと同じ最寄駅の物件
読込中...
| 取扱様態 | 仲介 |
|---|---|
| 取扱会社 | 株式会社 アットオフィス |